
Flat to rent 2 bedroom • 37 m² without real estateRačianska, Nové Mesto - Nové Mesto, Bratislavský Region
Račianska, Nové Mesto - Nové Mesto, Bratislavský RegionPublic transport 1 minute of walking • Equipped • Lift • Parking • Garage • Balcony 4.1 m² • Cellar 4 m²Liability insurance requiredVerification of debt-free status requiredInterested?
Communicate all private owners and save €650 on commissions.
Štýlový 1,5-izbový byt na prenájom – Pri Mýte III
Ponúkame na prenájom moderný, dizajnovo zariadený 1,5-izbový byt, navrhnutý architektkou s dôrazom na funkčnosť a komfort. Byt sa nachádza v prémiovom projekte Pri Mýte III na 6. poschodí a je ideálny pre jednotlivca alebo pár.
Základné informácie:
Rozloha: 33,2 m² + balkón 4,1 m² + pivnica 2 m²
Lokalita: Račianska, Bratislava
Poschodie: 6. podlažie s výťahom
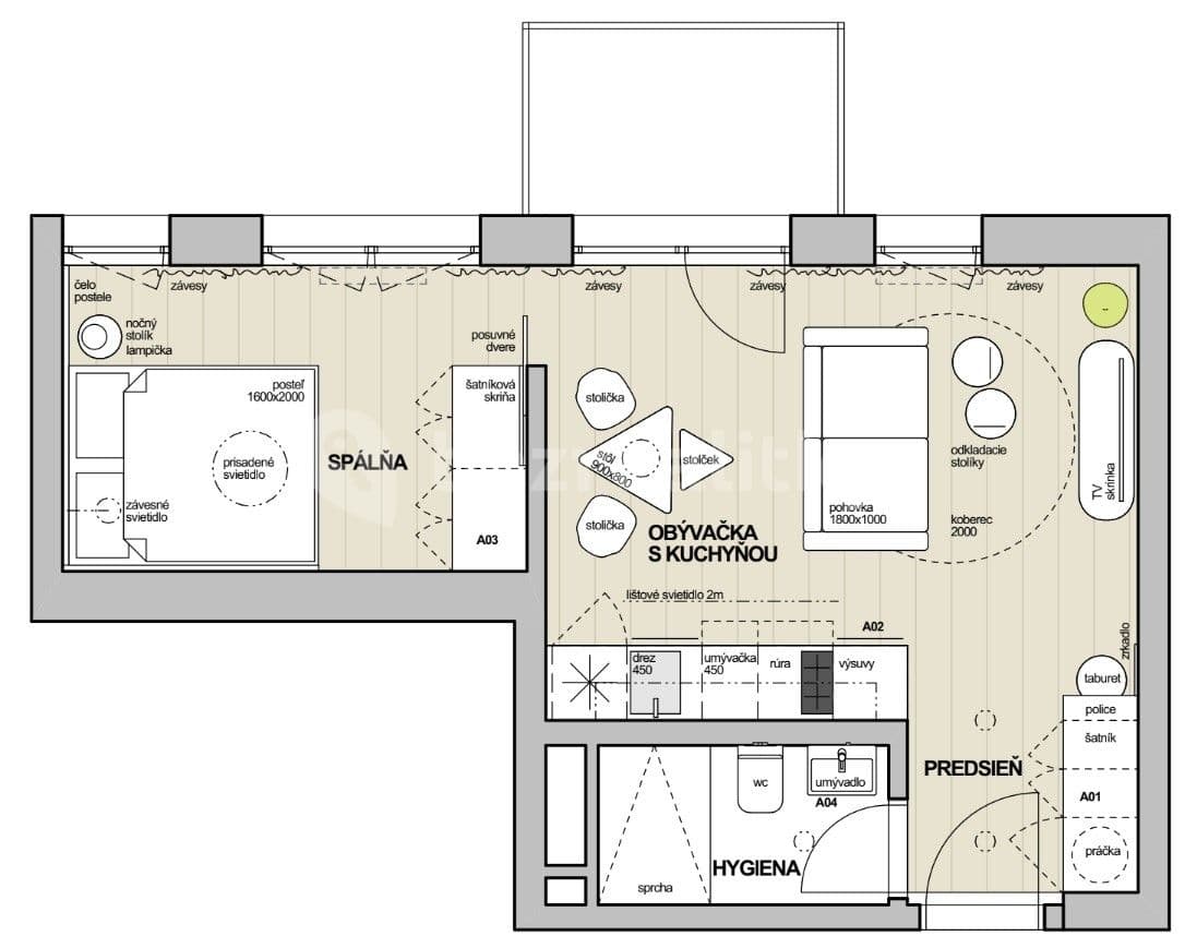
Dispozícia:
Obývacia izba spojená s kuchyňou
Plnohodnotná spálňa uzatvárateľná posuvnými dverami
Kúpeľňa s WC
Vstupná chodba
Balkón
Vybavenie a benefity:
- Kompletne zariadený – moderný nábytok na mieru, kvalitné materiály
- Plnohodnotná spálňa so samostatným uzatvorením posuvnými dverami
- Práčka so sušičkou
- Umývačka riadu
- Exteriérové žalúzie
- Parkovacie miesto v podzemnej garáži
- Pivničná kobka pre extra úložný priestor
- Výhľad na časť Malých Karpát
- Plná občianska vybavenosť
- Výborná dostupnosť do centra, blízko MHD (15 min. do centra mesta)
Podmienky prenájmu (pre 1 osobu):
- Nájom: 650 €/mesiac
- Energie: 170 €/mesiac (vrátane optického internetu)
- Garážové státie: možnosť prenájmu v podzemnej garáži v rámci projektu
- Možná zľava pri dlhodobom nájme a serióznom jednaní
- Bez fajčiarov a domácich zvierat
Pre viac informácií alebo dohodnutie obhliadky nás neváhajte kontaktovať!
RK prosím kontaktovať len s konkrétnym záujemcom!
Upozornenie: Všetky použité fotografie sú majetkom majiteľa a sú chránené autorským právom. Ich kopírovanie, šírenie alebo iné použitie bez súhlasu je zakázané.
Stylish 1.5-Bedroom Apartment for Rent – Pri Mýte III
We offer for rent a modern, architecturally designed, and never-before-lived-in 1.5-bedroom apartment, thoughtfully designed by an architect with an emphasis on functionality and comfort. The apartment is on the 6th floor of the premium Pri Mýte III project and is ideal for an individual or a couple.
Basic Information:
Size: 33.2 m² + 4.1 m² balcony + 2 m² cellar
Location: Račianska, Bratislava
Floor: 6th floor with an elevator
Layout:
The living room connected to the kitchen
Full bedroom with sliding doors
Bathroom with WC
Entrance hallway
Balcony
Features and Benefits:
- Fully furnished – custom-made modern furniture, high-quality materials
- Full bedroom with sliding doors for privacy
- Washer and dryer
- Dishwasher
- Exterior shutters
- Underground parking space
- Storage room for additional storage
- View of the Little Carpathians
- Full civic amenities
- Excellent access to the city centre, close to public transport (15 minutes to the city centre)
Rental Conditions:
- Rent: 650 €/month
- Utilities: 170 €/month (including optical internet)
- Parking: 100 €/month (as an option)
- Possible discount for long-term rental and serious negotiations
- No smoking or pets allowed
For more information or to arrange a viewing, feel free to contact us!
Property characteristics
| Age | Up to 10 years |
|---|---|
| Condition | New-build |
| Layout | 2 bedroom |
| Floor | 6. floor out of 7 |
| Heating | Central |
| Location | Quiet area |
| Price per unit | €18 / m2 |
| Available from | 03/02/2025 |
|---|---|
| Building construction | Skeleton |
| Fully furnished | Fully furnished |
| Design | Luxurious |
| Listing ID | 880270 |
| Usable area | 37 m² |
What does this listing have to offer?
| Balcony: 4.1 m² | |
| Basement: 4 m² | |
| Lift | |
| MHD 1 minute on foot |
| Wheelchair accessible | |
| Garage | |
| Parking |
What you will find nearby
Interested?
Communicate all private owners and save €650 on commissions.
Still looking for the right one?
Set up a watchdog. You will receive a summary of your customized offers 1 time a day by email. With the Premium profile, you have 5 watchdogs at your fingertips and when something comes up, they notify you immediately.














