Flat for sale 4+1 • 87 m² without real estateAntonína Slavíčka, Svitavy - Čtyřicet Lánů, Pardubický Region
Antonína Slavíčka, Svitavy - Čtyřicet Lánů, Pardubický RegionPublic transport 3 minutes by car • Partially equipped • Parking • Cellar 7 m² • Loggia 4 m²Prodej bytu 4+1 s lodžií, 87 m², Svitavy – klidná lokalita
Cena: 3 390 000 Kč
Nabízíme k prodeji prostorný byt 4+1 s lodžií ve vyhledávané a klidné části Svitav. Byt se nachází v cihlovém domě, který právě prochází vnější kompletní rekonstrukcí – nová okna, střecha, zasklené balkony, zateplená fasáda. Kupující tak nečekají žádné další investice do domu.
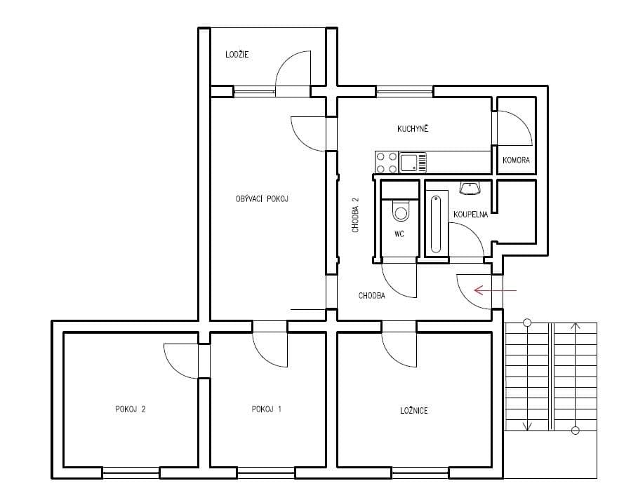
Byt o celkové ploše 87 m² disponuje velmi příjemnou a praktickou dispozicí:
obývací pokoj 20 m² s výstupem na zasklenou lodžii
kuchyně 8,2 m² + komora/spíž 2 m²
tři samostatné pokoje (12,24 m², 12,24 m², 12 m²)
koupelna 4,5 m²
samostatné WC
prostorná předsíň 7,2 m²
Topení zajišťuje vlastní plynový kotel, v kuchyni se nachází kombinovaný sporák. Interiér bytu je v původním stavu a je připravený k rekonstrukci dle vlastních představ. Exteriér domu je aktuálně v rekonstrukci, komplet hotové bude na jaře 2026, což představuje výraznou úsporu do budoucna.
K bytu náleží 2 sklepy – jeden vlastní samostatný, druhý sdílený s další rodinou – a také přilehlé pozemky patřící k budově. Parkování je možné přímo u domu.
Byt je ideální pro rodinu, která hledá prostorné bydlení, nebo pro každého, kdo oceňuje možnost upravit si interiér podle svého stylu. Vzhledem k velikosti, dispozici a stavu domu jde o mimořádně atraktivní nabídku v cenové hladině do 3,4 mil. Kč.
Prohlídky jsou možné kdykoliv po domluvě.
Rád vám byt osobně představím.
Property characteristics
| Age | 30 - 50 years |
|---|---|
| Condition | Before reconstruction |
| Layout | 4+1 |
| Floor | 4. floor out of 4 |
| Heating | Gas boiler |
| Ownership | Personal |
| Reconstruction | Interior |
| Usable area | 87 m² |
| Available from | 05/12/2025 |
|---|---|
| Building construction | Brick |
| Fully furnished | Partly |
| Design | Standard |
| Listing ID | 804792 |
| EPC | G - Extremely uneconomical |
| Location | Quiet area |
| Price per unit | CZK 38,966 / m2 |
Are you choosing a apartment?
Make sure you have all the important information!
What does this listing have to offer?
| Basement: 7 m² | |
| Parking |
| Loggia balcony: 4 m² | |
| MHD 3 minutes by car |
What you will find nearby
Still looking for the right one?
Set up a watchdog. You will receive a summary of your customized offers 1 time a day by email. With the Premium profile, you have 5 watchdogs at your fingertips and when something comes up, they notify you immediately.















