House to rent 5+kk • 119 m² without real estateJahodová, Černošice - Černošice, Středočeský Region
Interested?
Communicate all private owners and save CZK 39,500 on commissions.
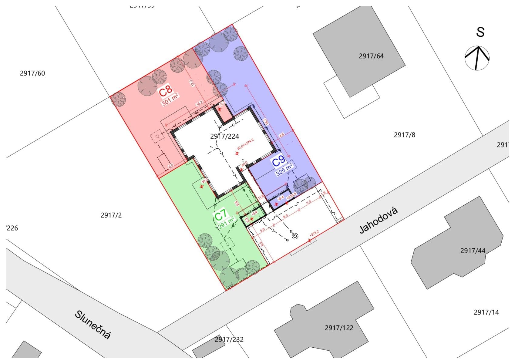
K pronájmu jediná jednotka 5+KK ve 2 roky starém trojdomu v Jahodová č.p. 1554 vč. samostatné oplocené zahrady a vyhrazeného parkování pro 2 auta (pro každou jednotku), v klidném prostředí nejžádanější rezidenční lokality Černošic - Stará Vráž, v těsném sousedství CHKO Český kras.
Jedná se o bytovou jednotku C8, velikosti 5+KK vč. ateliéru o celk. podlah. ploše 119 m2 (vč. zahradního domku).
Tato jednotka je ideální jak pro fyzickou osobu (rodinu), tak pro firmu/podnikatele-plátce DPH (např. sídlo/provozovna firmy se služebním bytem, showroom, pracovnou, ateliér apod.). Možno účtovat/fakturovat firmě/podnikateli buď celé či jen část s DPH (zbytek na bytové účely).
(Další dvě jednotky C7 a C9 jsou dlouhodobě pronajaty.)
Krom 5+KK je součástí jednotky ještě komora, spíž, prádelna, 2.WC, zahradní domek, terasa se zastřešenou pergolou a vnitřní parking pro 2 auta na vlast. pozemku. Vlastní oplocená zahrada.
Neplatí se žádná provize - přímý majitel. Kauce je zhruba 2 nájmy vč. části služeb (80.000 Kč). Kauce je nájemci úročena hrubým úrokem 3,53% p.a. (čistým 3%); úrok se každý měsíc odečítá z nájmu (nájem je tak o 200 Kč/měs. nižší).
Podrobné informace jsou na webu, který zde nesmím uvést, pošlu adresu (především stránka CENY).
Vlastník/pronajímatel: Ing. Jan Hlaváč, tel. a mail se zde též nesmí uvádět.
Vybavení: vytápění moderním nízkoenergetickým tepelným čerpadlem. Vestavěné a vybavené šatní skříně, věšák, botníky, kuchyně s barovým pultem s vestav. varnou deskou, troubou, digestoří, MW a myčkou. Podlahové krytiny: zátěžový vinyl, osvětlovací tělesa, žaluzie ve všech oknech, na západních okne jsou předokenní screenové rolety atd.
Zahradní domek, prádelna a spíž jsou vybaveny regálovým systémem. Velká francouzská okna s trojitým zasklením. Bez volného nábytku. Koupelna vybavena velkou vanou se sprch. koutem, 2 umyvadly, WC a bidetem a 2 skříňkami; 2.WC s umyvadlem a skříňkou v přízemí. Dřevěné obložkové dveře. Fasáda částečně obložena dřevem. Každá jednotka má samostatnou TV anténu (na střeše) a rozvody STA (televizní anténa pro pozem. vysílání) napojené do každého pokoje, střešní přípojku pro bezdrát. internet. a přípravu pro klimatizaci.
Property characteristics
| Available from | 01/06/2026 |
|---|---|
| Building construction | Brick |
| Fully furnished | Partly |
| Heating | Electric boiler |
| Low-energy | Yes |
| Location of the house | Corner |
| Usable area | 119 m² |
| Price per unit | CZK 331.93 / m2 |
| Condition | New-build |
|---|---|
| Layout | 5+kk |
| Floor | 1. floor out of 2 |
| Listing ID | 782602 |
| EPC | B - Very economical |
| Location | Quiet area |
| Land space | 330 m² |
What does this listing have to offer?
| Parking | |
| Terrace: 20 m² |
| MHD 1 minute on foot |
What you will find nearby
Interested?
Communicate all private owners and save CZK 39,500 on commissions.
Still looking for the right one?
Set up a watchdog. You will receive a summary of your customized offers 1 time a day by email. With the Premium profile, you have 5 watchdogs at your fingertips and when something comes up, they notify you immediately.



















