
Flat to rent 2 bedroom • 62 m² without real estateTeyschlova, Brno - Bystrc, Jihomoravský Region
Interested?
Communicate all private owners and save CZK 20,000 on commissions.
K dlouhodobému pronájmu nabízím zrekonstruovaný byt (rok 2015) o dispozici 2+1 v klidné lokalitě Brno-Bystrc na ulici Teyschlova.
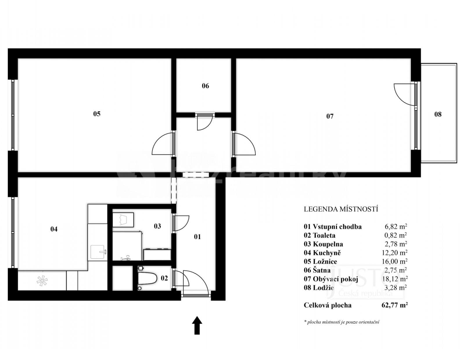
Byt s podlahovou plochou 62,77 m2 se nachází ve 4. patře panelového domu s výtahem. K bytu patří zasklený balkón o velikosti 3,28 m2 a také jedna prázdná místnost navíc (2,75 m2), která může posloužit například jako šatna.
Veškeré pokoje jsou neprůchozí. V příloze naleznete půdorys s detailními rozměry.
Kuchyň (12,2 m2) je vybavena vestavěnými spotřebiči jako je lednička, trouba s varnou deskou, digestoř, myčka a mikrovlnná trouba. Součástí kuchyně je jídelní stůl a židle. Obývací pokoj (18,12 m2) je zařízený sedačkou, konferenčním stolem a stolkem pod televizi. Z obývacího pokoje je vstup na zasklený balkón. V prostorné ložnici (16 m2) naleznete postel a skříň, v koupelně sprchový kout a pračku. WC je samostatně.
Autobusová zastávka se od domu nachází do 2 minut, tramvajová do 10 minut. Příjemnou procházkou lesem se na přehradu dostanete do půl hodiny. V blízkém okolí najdete supermarket Albert, mateřskou školu, pekárnu, pizzerii, kavárnu Objekt či bistro Bratrs. Přímo za domem je skvěle vybavené dětské hřiště.
Měsíční nájem činí 20 000,- Kč. Výše záloh za energie a služby pro 1 osobu je 4500,- Kč/měs.
Internet je od firmy O2 a stojí 400,- Kč/měs.
Jistota (vratná kauce) je 30 000,- Kč.
Preferuji nekuřáky bez domácích mazlíčků. Prohlídky dle domluvy.
Byt je volný od 1. března 2026.
Property characteristics
| Available from | 01/03/2026 |
|---|---|
| Building construction | Precast concrete |
| Fully furnished | Partly |
| Listing ID | 760361 |
| Location | Quiet area |
| Price per unit | CZK 323 / m2 |
| Condition | Very good |
|---|---|
| Layout | 2 bedroom |
| Floor | 4. floor out of 8 |
| EPC | G - Extremely uneconomical |
| Usable area | 62 m² |
What does this listing have to offer?
| Balcony: 3.28 m² | |
| MHD 4 minutes on foot |
| Lift |
What you will find nearby
Interested?
Communicate all private owners and save CZK 20,000 on commissions.
Still looking for the right one?
Set up a watchdog. You will receive a summary of your customized offers 1 time a day by email. With the Premium profile, you have 5 watchdogs at your fingertips and when something comes up, they notify you immediately.




















