
Flat to rent Studio • 23 m² without real estateNa Rokytce, Říčany - Říčany-Radošovice, Středočeský Region
Na Rokytce, Říčany - Říčany-Radošovice, Středočeský RegionPublic transport 3 minutes of walking • Partially equipped • ParkingInterested?
Communicate all private owners and save CZK 20,000 on commissions.
Dlouhodobý pronájem 1+kk bungalovu v Říčanech u Prahy – soukromí, zahrádka, výborná dostupnost do centra!
Nabízím k dlouhodobému pronájmu nový, energeticky úsporný bungalov (1+kk) o užitné ploše 23 m² (celková plocha 30 m²), ideálně pro jednotlivce nebo pár, kteří hledají klidné bydlení s perfektní dostupností do Prahy (MHD do centra za 25 minut).
🏡 Lokalita:
Nachází se ve staré zástavbě Říčan – klidná, rezidenční oblast s výbornou občanskou vybaveností v dosahu.
V dochozí vzdálenosti se nachází koupaliště a restaurace Jureček.
🔑 Dispozice a vybavení:
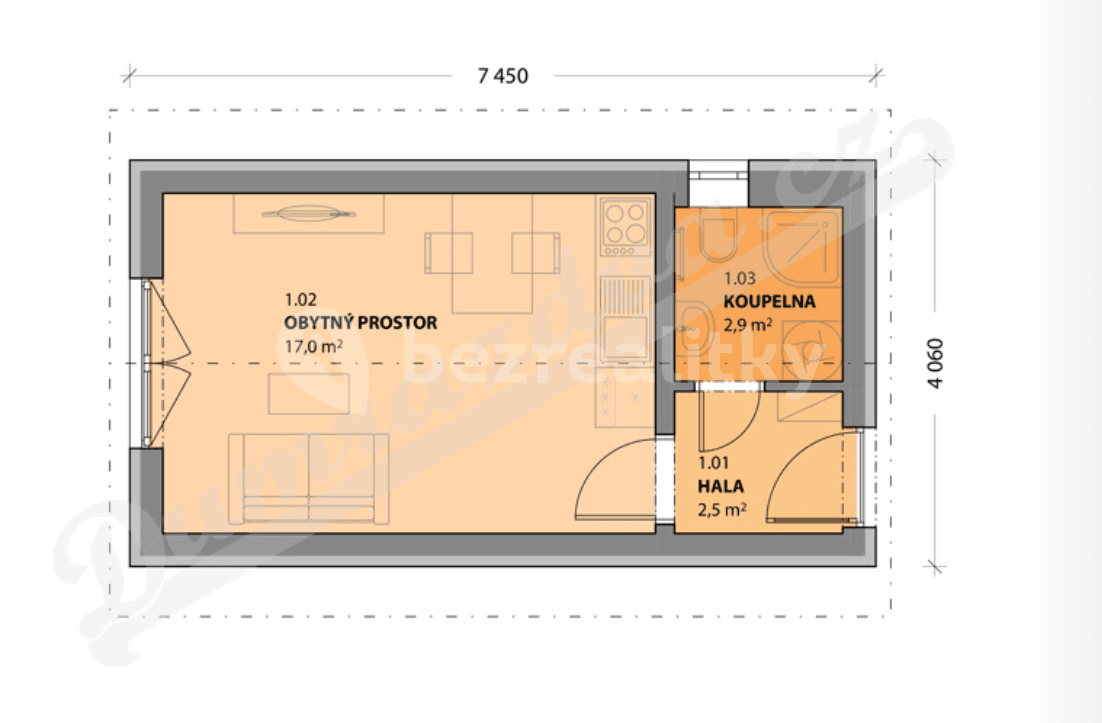
Vstupní hala
Obytný prostor s plně vybavenou kuchyňskou linkou (lednice, varná deska, mikrovlnná trouba, digestoř, LED podsvícení)
Koupelna se sprchovým koutem, toaletou, pračkou a skříňkou s umyvadlem
Vlastní vstup a naprosté soukromí – jednotka je stavebně oddělena od hlavního rodinného domu
🌿 Exteriér:
K dispozici soukromá zahrádka cca 100 m², oddělená od hlavního pozemku – ideální na relax nebo pěstování bylinek (aktuálně se v realizaci).
Vstup přes hliníkové bezpečnostní dveře
🔥 Technologie a úspory:
Nízkoenergetická dřevostavba (sendvičový systém)
Vytápění a chlazení pomocí tepelného čerpadla a split jednotky LG (topí i chladí) – velmi nízké provozní náklady
💡 Ideální pro ty, kdo hledají moderní, úsporné a bezstarostné bydlení – stačí se jen nastěhovat.
📅 K nastěhování v průběhu srpna .
🚭 Preferujeme nekuřáky, domácí mazlíčci dle domluvy.
📞 Pro více informací nebo domluvení prohlídky mě neváhejte kontaktovat.
Property characteristics
| Age | Up to 10 years |
|---|---|
| Condition | New-build |
| Layout | Studio |
| Floor | Ground floor |
| Heating | Other |
| EPC | B - Very economical |
| Location | Quiet area |
| Price per unit | CZK 870 / m2 |
| Available from | 31/08/2025 |
|---|---|
| Building construction | Mixed |
| Fully furnished | Partly |
| Design | Standard |
| Listing ID | 758760 |
| Reconstruction | Complete |
| Usable area | 23 m² |
What does this listing have to offer?
| Front garden 100 m² | |
| MHD 3 minutes on foot |
| Parking |
What you will find nearby
Interested?
Communicate all private owners and save CZK 20,000 on commissions.



Flat to rentNárodních hrdinů, Prague - Dolní Počernice- Studio
- 31 m²
CZK 19,900 + CZK 4,100CZK 21,000
Save CZK 1,100

Still looking for the right one?
Set up a watchdog. You will receive a summary of your customized offers 1 time a day by email. With the Premium profile, you have 5 watchdogs at your fingertips and when something comes up, they notify you immediately.










