Flat for sale 6+kk • 420 m² without real estateRůžová, Valtice - Valtice, Jihomoravský Region
Růžová, Valtice - Valtice, Jihomoravský RegionPublic transport 4 minutes of walking • Equipped • Parking • Garage • Terrace 100 m²CENA NA VYŽÁDÁNÍ
Nabízíme k prodeji velký rodinný byt v centru Vatlic s výhledem na náměstí.
Dispozice:
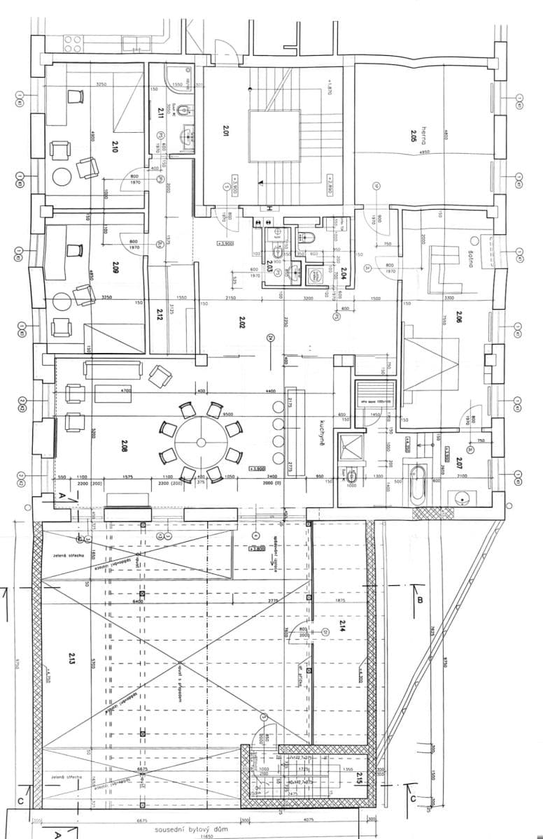
Obytné prostory bytu obsahují: (viz přiložený plán bytu)
(2.06 + 2.07) - ložnice s vlastní šatnou, saunou a koupelnou se sprchovým koutem a vanou
(2.05) Pokoj 25m2 velký s vestavěnou skříní
(2.10 a 2.09) Původně dva samostatné menší pokoje, nyní spojeno do jednoho jako ložnice + menší soukromý obývák.
(2.08) Kuchyně + obyvák + jídelna celkem cca 49.5m2 s vybavenou kuchyní, pultem
(2.04) Technická místnost, kde se nachází kotel, výlevka, sušička a pračka
(2.03) Záchod s umyvadlem
(2.11) Koupelna se sprchovým koutem, záchodem a umyvadlem
(2.12) Šatna/botník s úložným prostorem
(2.13) Z kuchyně se vchází na velkou terasu, která je z velké části zastřešená. Jakoby za stěnou terasy se nachází (2.14) úložný prostor pro venkovní nábytek atd.
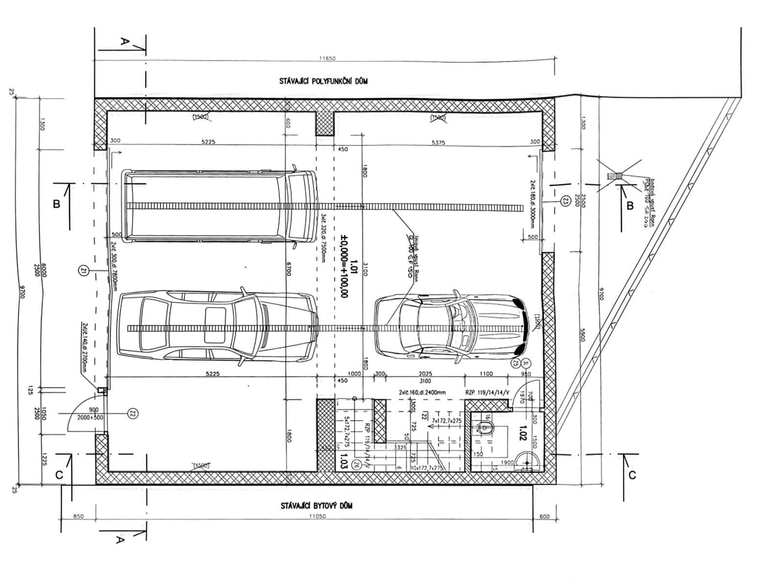
(2.15) Schodiště, kterým se z terasy schází do garáže (1.01), ve které je místo na 4 auta (pohodlně), několik kol/ motorky/ skútry a mnoho dalšího úložného prostoru (viz regály a velké skříně pod schodištěm)
Celková rozloha bytu:
Obytné prostory cca: 220m2
Terasa cca 100m2
Garáž cca 100m2
Přesně viz přiložený plán.
Byt je aktuálně obydlený a krom maličkostí ve výborném stavu. Po celé ploše bytu jsou dřevěné podlahy a obecně všechny materiály a zařízení bytu je velmi kvalitní.
Nábytek apod bychom nechali/vyklidili dle domluvy se zájemcem.
Byt je mimojiné kompletně klimatizován, je zaveden centrální vysavač ve většině místností, v obýváku je nainstalován audio systém od Bose, v domě je nainstalováno zabezpečení a mnohem více. Podrobnější informace při osobní prohlídce, nebo po telefonu.
Energetickou třídu jsme nuceni napsat G - nemáme oficiálně změřenou momentálně, ale dům je zateplen, okna nová atd.
Více fotografií pošleme do emailu.
Realitky nepište.
Property characteristics
| Available from | 01/07/2025 |
|---|---|
| Building construction | Brick |
| Fully furnished | Fully furnished |
| Listing ID | 727669 |
| EPC | G - Extremely uneconomical |
| Usable area | 420 m² |
| Condition | Very good |
|---|---|
| Layout | 6+kk |
| Floor | 2. floor out of 2 |
| Ownership | Personal |
| Location | Quiet area |
| Price per unit | CZK 35,714 / m2 |
What does this listing have to offer?
| Garage | |
| MHD 4 minutes on foot |
| Parking | |
| Terrace: 100 m² |
What you will find nearby
Still looking for the right one?
Set up a watchdog. You will receive a summary of your customized offers 1 time a day by email. With the Premium profile, you have 5 watchdogs at your fingertips and when something comes up, they notify you immediately.



















