
Flat to rent 2+kk • 61 m² without real estatePatočkova, Prague - Břevnov
Patočkova, Prague - BřevnovPublic transport less than a minute of walking • Partially equipped • Lift • Garage • Balcony 5 m² • Cellar 8 m²Interested?
Communicate all private owners and save CZK 23,000 on commissions.
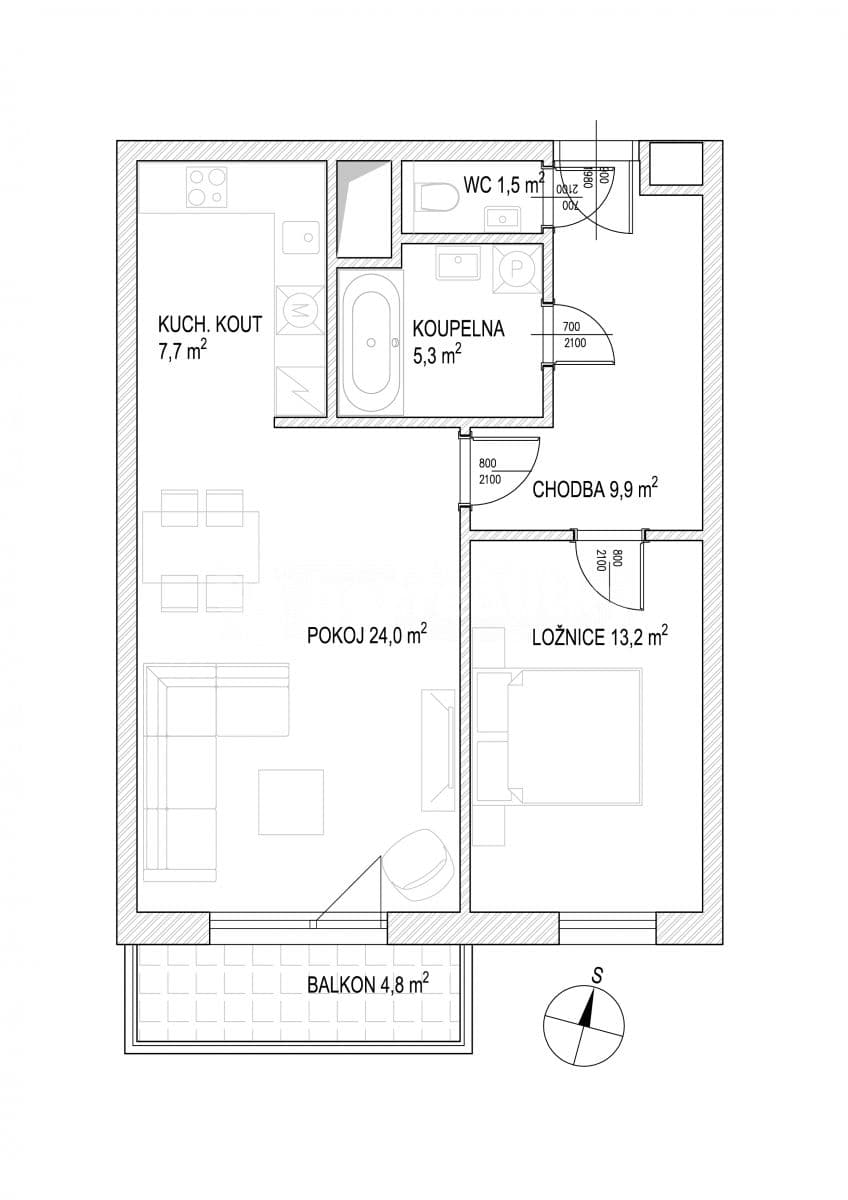
Pronajmu hezký, částečně zařízený (nábytek můžeme odvézt) byt s balkonem, ve 4. patře (5.NP) moderního domu (postaven r.2004) s výtahem. K bytu náleží příslušenství - parkovací stání v garáži a sklep 8m2. K dispozici je také místnost na kola / kočárky.
Dům je na třídě Patočkova, je orientovaný na jih do udržovaného vnitrobloku. Balkon je prostorný, okna jsou opatřena předokenními roletami. V okolí je plná občanská vybavenost (školy, pošta, restaurace, kavárny, obchody, lékaři, dětská hřiště), zastávka autobusu je přímo před domem, zastávka tramvaje 3min pěšky. Dům je v blízkosti Břevnovského kláštera, nedaleko Ladronky a obory Hvězda s možností sportovního vyžití.
K vybavení bytu patří kompletní kuchyňská linka vč. el. varné desky, trouby, myčky, lednice a digestoře, v případě zájmu je k dispozici pračka. Byt má samostatnou koupelnu s vanou a samostatné WC s umývadlem.
Byt je k dispozici ihned, POUZE PRO NEKUŘÁKY.
Odhad nákladů na bydlení při obsazenosti dvěma osobami: nájemné za byt vč. příslušenství (parkovací stání v garáži) 23.000,- + zálohy na služby (topení, voda studená i teplá, odvoz odpadu, osvětlení a úklid spol. prostor, provoz výtahu apod.) 5.150 + náklady na elektřinu (odběr převedeme na nájemce) 1.250 = celkem 29.400 (odhad závislý na spotřebě nájemce - stanoveno podle vyúčtování za r.2024
Property characteristics
| Age | 10 to 30 years |
|---|---|
| Condition | Very good |
| Layout | 2+kk |
| Floor | 5. floor out of 6 |
| Listing ID | 683284 |
| EPC | C - Economical |
| Usable area | 61 m² |
| Available from | 01/11/2025 |
|---|---|
| Building construction | Brick |
| Fully furnished | Partly |
| Design | Standard |
| Ownership | Personal |
| Location | Quiet area |
| Price per unit | CZK 377 / m2 |
What does this listing have to offer?
| Balcony: 5 m² | |
| Garage | |
| MHD 0 minutes on foot |
| Basement: 8 m² | |
| Lift |
What you will find nearby
Interested?
Communicate all private owners and save CZK 23,000 on commissions.
Still looking for the right one?
Set up a watchdog. You will receive a summary of your customized offers 1 time a day by email. With the Premium profile, you have 5 watchdogs at your fingertips and when something comes up, they notify you immediately.
























