
Office to rent • 132 m² without real estateKrakovská, Prague - Nové Město
Krakovská, Prague - Nové MěstoPublic transport 2 minutes of walking • ParkingKANCELÁŘE K PRONÁJMU - 132 m2
!! NEPLATÍTE PROVIZI !!
Firma Real Top s.r.o., která je přímým majitelem a správcem objektu, nabízí k pronájmu kancelářské prostory v administrativní budově BUSINESS RESIDENCE v Krakovské ulici.
Objekt se nachází v blízkosti Václavského náměstí, 300 m od stanice metra Muzeum, I. P. Pavlova. K dispozici je 24 hodinová ostraha, výtah, možnost parkování v zakladači.
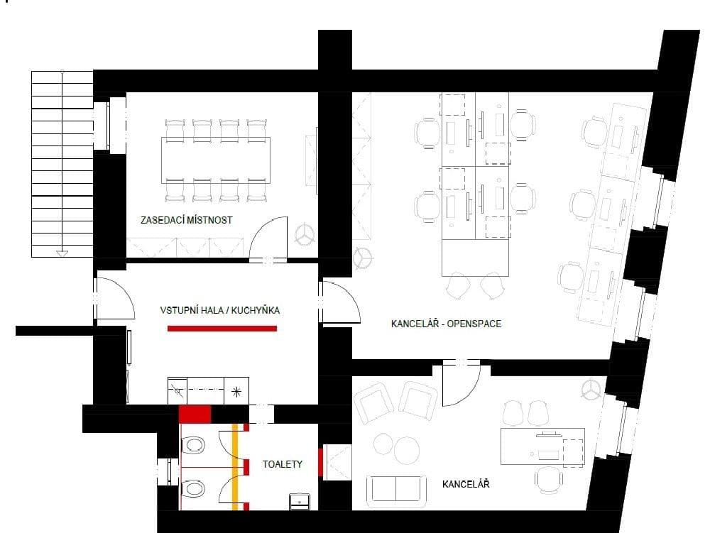
Nabízíme k pronájmu jednotku po celkové rekonstrukci o výměře 132m2 (vstupní hala s přípojkami na kuchyňku, 3 kanceláře, sociální zázemí) umístěná v 1NP.
Cena nájmu 295,-Kč/m2, provozní náklady 102 Kč/m2, topné náklady 36 Kč/m2.
Elektrická energie hrazena PŘÍMO DLE SPOTŘEBY NÁJEMCE (měřiče)
k nastěhování IHNED
Property characteristics
| Available from | 01/09/2025 |
|---|---|
| Building construction | Brick |
| Listing ID | 667332 |
| Location | Quiet area |
| Price per unit | CZK 295 / m2 |
| Condition | Good |
|---|---|
| Floor | 1. floor out of 6 |
| EPC | E - Wasteful |
| Land office | 132 m² |
What does this listing have to offer?
| Parking |
| MHD 2 minutes on foot |
What you will find nearby
Still looking for the right one?
Set up a watchdog. You will receive a summary of your customized offers 1 time a day by email. With the Premium profile, you have 5 watchdogs at your fingertips and when something comes up, they notify you immediately.
















