
Flat to rent 2+kk • 55 m² without real estate28. pluku, Prague - Vršovice
28. pluku, Prague - VršovicePublic transport 1 minute of walking • Equipped • Lift • Cellar 2 m² • Terrace 14 m²Interested?
Communicate all private owners and save CZK 25,500 on commissions.
Primo od majitele – pronájem bytu 2+kk ve Vršovicích
Adresa: 28. pluku 128/12, Praha 10, 101 00
Popis bytu:
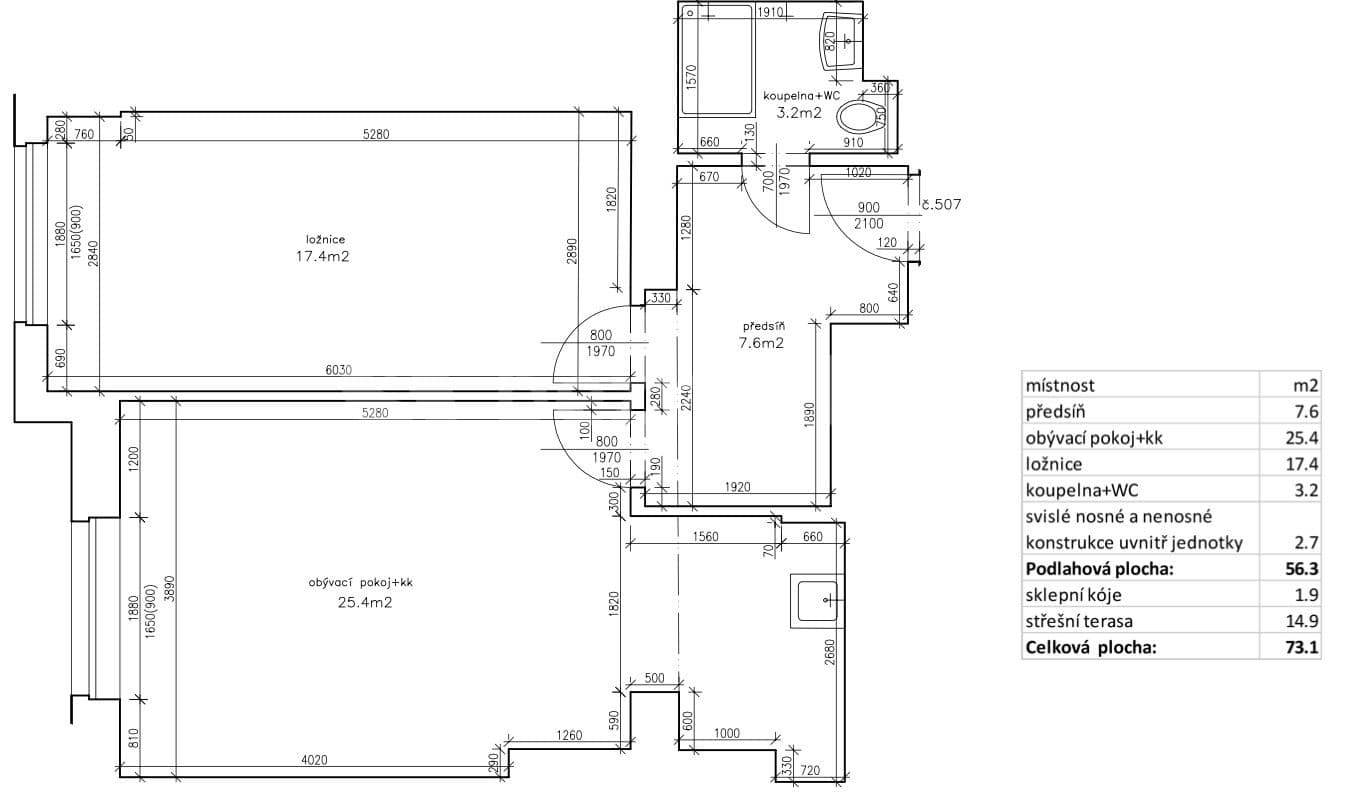
Rozloha: 55 m²
Dispozice: obývací pokoj s kuchyňským koutem, ložnice, koupelna se sprchovým koutem, samostatné WC, předsíň
Orientace: jihozápadní
Byt je součástí unikátní rezidence Císařského pluku s maximálním komfortem
K dispozici: sluneční terasa s fantastickým výhledem, malý fitness pouze pro obyvatele domu
Občanská vybavenost: 1,2 km do Havlíčkových sadů (15 min chůze)
Nábytek a vybavení:
Kuchyně: lednice, varná deska, trouba, digestoř, nová myčka
Ložnice: šatní skříň
Předsíň: vestavěná šatní skříň se zrcadlovými dveřmi
Další výhody:
Sklepní kóje v suterénu pro sezónní vybavení
Vyhrazená část střešní terasy pro byt
Finanční podmínky:
Nájemné: 25.500 Kč/měsíc
Zálohy na služby: 3.000 Kč/měsíc
Celkem: 28.500 Kč/měsíc
Vratná jistota: 22.000 Kč
Elektřina PRE (spotřebiče, osvětlení) se přepisuje na nájemce, záloha cca 750 Kč/měsíc
Dostupnost: od 1. 12. 2025
Prohlídky: kdykoliv po domluvě, komunikace možná i v angličtině
Více fotografií dostupných na WhatsApp.
Direct from Owner – 2+kk Apartment for Rent in Vršovice
Address: 28. pluku 128/12, Prague 10, 101 00
Apartment Description:
Size: 55 m²
Layout: living room with kitchenette, bedroom, bathroom with shower, separate WC, hallway
Orientation: southwest
Part of the unique Císařský pluk residence offering maximum comfort
Amenities: sunny terrace with fantastic views, small fitness room exclusively for residents
Local amenities: 1.2 km to Havlíčkovy Sady (15 min walk)
Furniture and Equipment:
Kitchen: fridge, hob, oven, extractor hood, new dishwasher
Bedroom: wardrobe
Hallway: built-in wardrobe with mirrored doors
Additional Features:
Basement storage unit for seasonal equipment
Reserved part of the rooftop terrace for the apartment
Financial Terms:
Rent: 25,500 CZK/month
Service charges: 3,000 CZK/month
Total: 28,500 CZK/month
Security deposit: 22,000 CZK
Electricity PRE (appliances and lighting) transferred to the tenant; advance payment approx. 750 CZK/month
Availability: from 1st December 2025
Viewings: at any time by appointment, English-speaking communication available
More photos available on WhatsApp.
Property characteristics
| Age | Up to 10 years |
|---|---|
| Condition | New-build |
| Layout | 2+kk |
| Floor | 4. floor |
| Heating | Central |
| Ownership | Personal |
| Reconstruction | Interior |
| Usable area | 55 m² |
| Available from | 01/12/2025 |
|---|---|
| Building construction | Brick |
| Fully furnished | Fully furnished |
| Design | Standard |
| Listing ID | 634974 |
| EPC | A - Extremely economical |
| Location | Quiet area |
| Price per unit | CZK 464 / m2 |
What does this listing have to offer?
| Basement: 2 m² | |
| MHD 1 minute on foot |
| Lift | |
| Terrace: 14 m² |
What you will find nearby
Interested?
Communicate all private owners and save CZK 25,500 on commissions.
Still looking for the right one?
Set up a watchdog. You will receive a summary of your customized offers 1 time a day by email. With the Premium profile, you have 5 watchdogs at your fingertips and when something comes up, they notify you immediately.
















