
Flat to rent 2+kk • 37 m² without real estateTolstého, Ústí nad Labem - Střekov, Ústecký Region
Tolstého, Ústí nad Labem - Střekov, Ústecký RegionPublic transport 2 minutes of walking • Partially equipped • Lift • Balcony 1.5 m² • Cellar 1.5 m²Interested?
Communicate all private owners and save CZK 9,800 on commissions.
Pronájem - Kompletně zrekonstruovaný byt 2+kk | Skvělá lokalita a výborná MHD
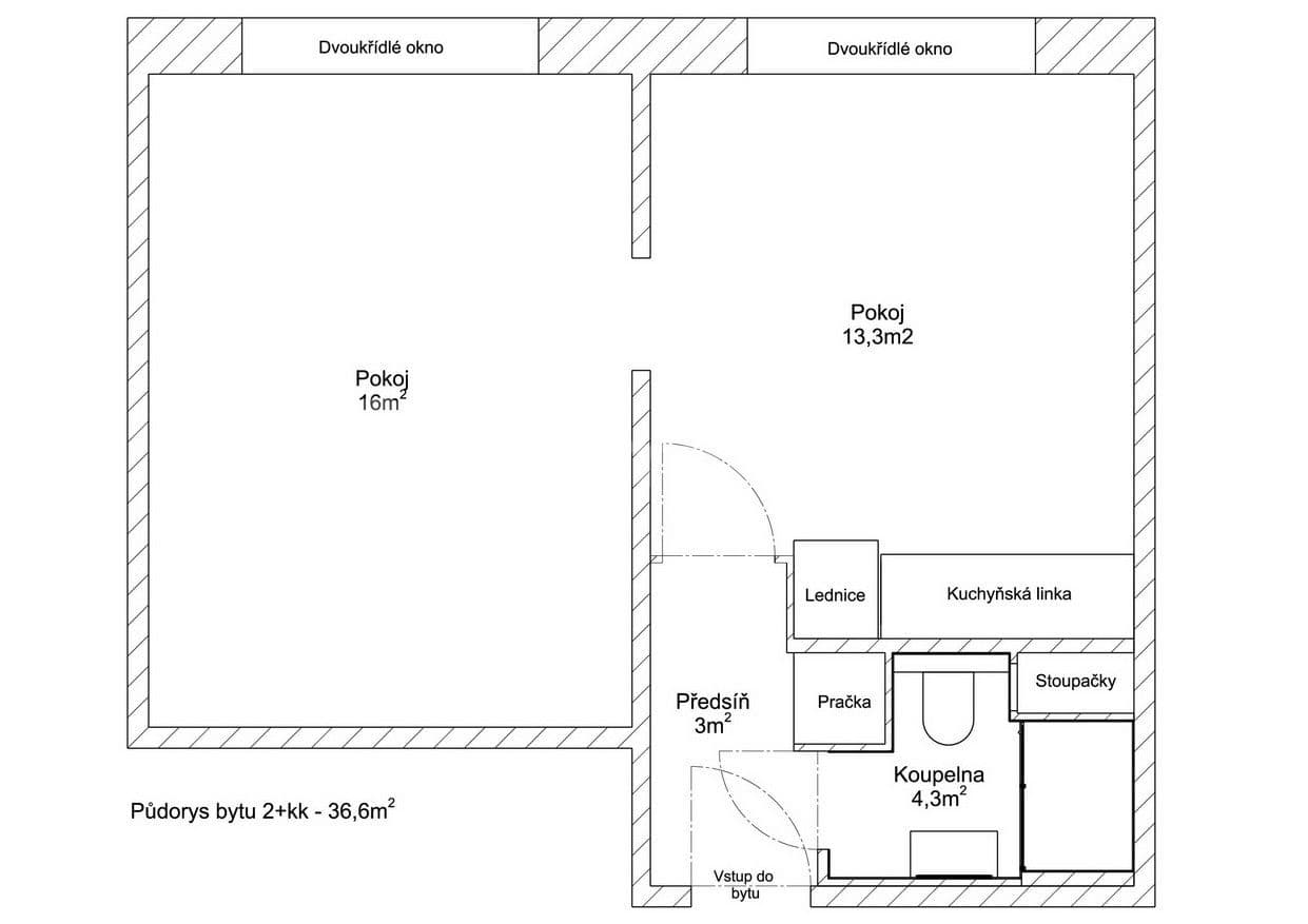
Nabízím k pronájmu vkusně zrekonstruovaný byt 2+kk na adrese Tolstého 1192/12. Byt se nachází ve 2. patře revitalizovaného, zatepleného panelového domu s NOVÝM výtahem.
✅ KLÍČOVÉ VÝHODY
* Byt po celkové rekonstrukci (zděný sprchový kout, moderní podlahy, plastová okna).
* Výborná dostupnost MHD (10 min. do centra, přímé linky k nemocnici a na Severní Terasu).
* Ultrarychlý internet 900 Mbit/s (ideální pro Home Office).
* Klidná lokalita v blízkosti přírody s veškerou občanskou vybaveností.
* K bytu náleží balkon v mezipatře a sklepní kóje.
✅ VYBAVENÍ A STAV BYTU
Byt je částečně zařízen kuchyňskou linkou a spotřebiči (vestavěná trouba, lednička, plynová varná deska). K dispozici je prostorná vestavěná skříň, další úložné prostory a kvalitní WiFi router.
Koupelna s moderním závěsným WC disponuje ZDĚNÝM SPRCHOVÝM KOUTEM s hlavovou a ruční sprchou. V chodbě a koupelně je položen moderní mramorový koberec, v pokojích kvalitní plovoucí podlahy (laminátová a dřevěná).
✅ LOKALITA
Lokalita je klidná, v těsné blízkosti přírody a zároveň s výbornou občanskou vybaveností (školka přímo pod domem). Perfektní dostupnost MHD – do centra města je to pouhých 10 minut.
---
✅ CENA A POPLATKY
* Nájem (pevná cena): 9 800 Kč
* Zálohy na služby: 2 215 Kč (včetně vytápění, vody a úklidu společných prostor).
* Poznámka: Zálohy na elektřinu a plyn se přepisují na nájemce (odhad nákladů cca 1000 Kč/měs.).
* Vratná kauce: 18 000 Kč.
✅ INTERNET A TV (TETAnet)
V bytě je aktuálně k dispozici kabelový internet s rychlostí 900 Mbit/s.
* Cena za internet: 440 Kč (možnost levnějšího balíčku již od 320 Kč).
* TV balíček (53 programů): 50 Kč.
Byt je k dispozici k nastěhování od 01.12.2025.
Apartment for Rent – Fully Renovated 2+kk | Great Location & Excellent Public Transport
I am offering for rent a tastefully renovated 2+kk apartment (one-bedroom apartment with a separate kitchen corner/open-plan kitchen and living room) at Tolstého 1192/12. The apartment is located on the 2nd floor of a revitalized, insulated panel building with a NEW elevator.
✅ KEY BENEFITS
Apartment after complete reconstruction (brick-walled shower, modern flooring, plastic windows).
Excellent public transport accessibility (10 min. to the city center, direct lines to the hospital and Severní Terasa).
Ultra-fast 900 Mbit/s internet (ideal for Home Office).
Quiet location close to nature with all civic amenities.
The apartment includes a balcony on the mezzanine floor and a cellar storage unit.
✅ APARTMENT EQUIPMENT AND CONDITION
The apartment is partially furnished with a kitchen unit and appliances (built-in oven, refrigerator, gas hob). A spacious built-in wardrobe, additional storage spaces, and a high-quality WiFi router are available.
The bathroom with a modern wall-hung toilet features a BRICK-WALLED SHOWER ENCLOSURE with a rainfall and hand shower. Modern marble carpet (terrazzo flooring) is laid in the hallway and bathroom; the rooms have high-quality floating floors (laminate and wooden).
✅ LOCATION
The location is quiet, in close proximity to nature, yet offers excellent civic amenities (kindergarten directly below the building). Perfect public transport access – only 10 minutes to the city center.
✅ PRICE AND FEES
Rent (fixed price): 9,800 CZK
Advance utility payments: 2,215 CZK (including heating, water, and cleaning of common areas).
Note: Electricity and gas advance payments are transferred to the tenant (estimated cost approx. 1,000 CZK/month).
Refundable security deposit: 18,000 CZK.
✅ INTERNET AND TV (TETAnet)
Ultra-fast cable internet with a speed of 900 Mbit/s is currently available in the apartment.
Internet price: 440 CZK (option for a cheaper package starting from 320 CZK).
TV package (53 channels): 50 CZK.
The apartment is available for move-in from December 1, 2025.
Property characteristics
| Available from | 01/12/2025 |
|---|---|
| Building construction | Precast concrete |
| Fully furnished | Partly |
| Design | Luxurious |
| Listing ID | 434961 |
| EPC | D - Less economical |
| Location | Quiet area |
| Price per unit | CZK 265 / m2 |
| Condition | Very good |
|---|---|
| Layout | 2+kk |
| Floor | 3. floor out of 5 |
| Heating | Distance |
| Ownership | Personal |
| Reconstruction | Complete |
| Usable area | 37 m² |
What does this listing have to offer?
| Balcony: 1.5 m² | |
| Basement: 1.5 m² | |
| MHD 2 minutes on foot |
| Wheelchair accessible | |
| Lift |
What you will find nearby
Interested?
Communicate all private owners and save CZK 9,800 on commissions.




Flat to rentSvojsíkova, Ústí nad Labem - Ústí nad Labem, Ústecký Region- 2 bedroom
- 60 m²
CZK 10,000 + CZK 5,000
Flat to rentJana Zajíce, Ústí nad Labem - Ústí nad Labem, Ústecký Region- 2 bedroom
- 55 m²
CZK 9,000 + CZK 4,000
Still looking for the right one?
Set up a watchdog. You will receive a summary of your customized offers 1 time a day by email. With the Premium profile, you have 5 watchdogs at your fingertips and when something comes up, they notify you immediately.

















