
Flat to rent 3+1 • 73 m² without real estateU Kostela, Jablonec nad Nisou - Mšeno nad Nisou, Liberecký Region
Interested?
Communicate all private owners and save CZK 14,500 on commissions.
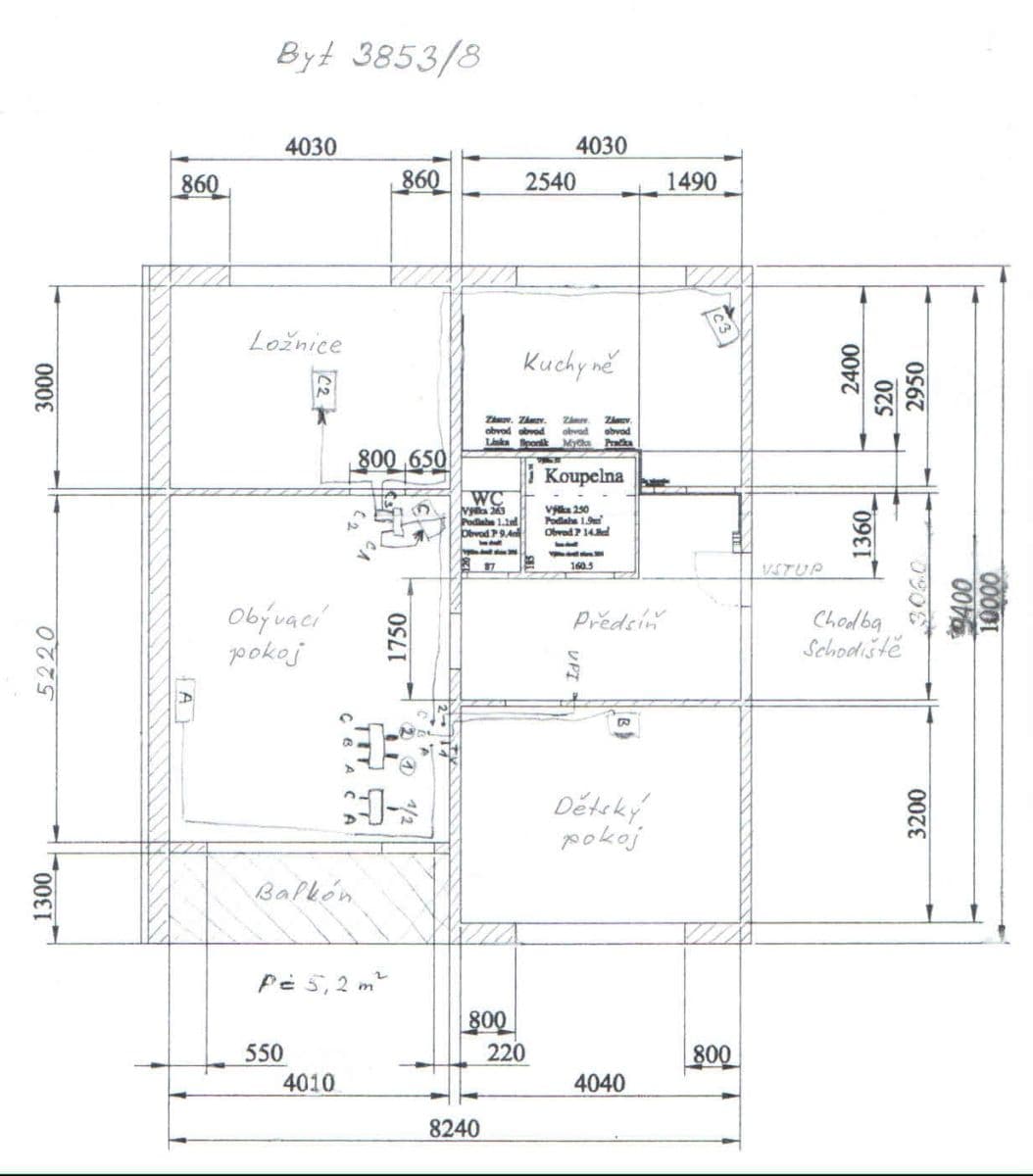
Nabízím dlouhodobý pronájem bytu 3+1 po celkové starší rekonstrukci s lodžií, 73 m2, ve 4. nadzemním podlaží s výtahem, se sklepní kójí, sklepní místnost pro kola v ulici U Kostela 3853/17, v Jablonci nad Nisou, s orientací na JZ.
Byt je v revitalizovaném-kompletně zatepleném bytovém domě se zasklenou lodžií, dokončená realizace bude 1.12.2025.
V bytě jsou nová plastová okna s trojskly, dlažba, v místnostech plovoucí podlaha, zátěžový koberec. Byt je částečně zařízen, kuchyňská linka, kombinovaný plynový sporák s elektrickou troubou, zařízená koupelna s vanou, zastavěné WC, dřevěný kryt na radiátoru v kuchyni, dřevěná světelná rampa a další.
Byt je kompletně vymalován.
Byt je vhodný pro rodinu s dětmi, pro 2 až 4 osoby, nekuřáci, bez větších zvířat.
Další vybavení, eventuálně úpravy si můžou zrealizovat ke své spokojenosti, dle svých představ uživatelé bytu.
Vytápění ústřední. Zajištěn úklid společných prostor domu. Sklepní zamykatelná místnost pro ukládání kol.
Cena za služby, energie dle počtu osob (záloha na služby je pro 1 osobu).
Cena nájmu: 14 500 Kč
Záloha na služby: 3 500 Kč (topení, tep. a st. voda, výtah, osvětlení spol. prost., pevný dom. odpad, úklid, správa...)
Záloha na energie: 1 500 Kč (elektřina, plyn - přihlášeno na pronajímatele)
Celková cena: 19 500 Kč
Vratná kauce: 35 000 Kč
Byt je k dispozici od 1.12.2025.
Bydlení na dobré adrese - supermarket Kaufland, Bus MHD, zdravotní středisko, lékárna, základní škola Arbesova, banka, sportoviště, tři přehrady ....
Property characteristics
| Age | 30 - 50 years |
|---|---|
| Condition | Very good |
| Layout | 3+1 |
| Floor | 4. floor out of 8 |
| Heating | Central |
| Ownership | Personal |
| Reconstruction | Complete |
| Usable area | 73 m² |
| Available from | 01/12/2025 |
|---|---|
| Building construction | Precast concrete |
| Fully furnished | Partly |
| Design | Standard |
| Listing ID | 341072 |
| EPC | C - Economical |
| Location | Quiet area |
| Price per unit | CZK 199 / m2 |
What does this listing have to offer?
| Basement: 3 m² | |
| Loggia balcony: 5.2 m² | |
| MHD 1 minute on foot |
| Lift | |
| Parking |
What you will find nearby
Interested?
Communicate all private owners and save CZK 14,500 on commissions.
Still looking for the right one?
Set up a watchdog. You will receive a summary of your customized offers 1 time a day by email. With the Premium profile, you have 5 watchdogs at your fingertips and when something comes up, they notify you immediately.




















