
Flat to rent 3+kk • 143 m² without real estate, Baden-Württemberg
, Baden-WürttembergPublic transport 1 minute of walking • GarageThe building is located in a central yet quiet residential area in Höchenschwand and features a large balcony with an Alpine panorama.
The entire apartment has been completely refurbished and is now available for immediate first occupancy.
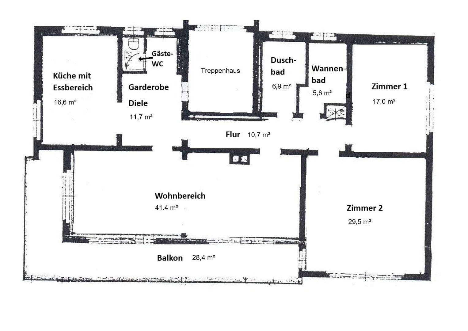
The apartment impresses with its spacious, bright, and well-thought-out layout, making it ideal for a small family or a couple in need of a home office.
Thanks to the accessible shower room, the apartment is also suitable for people with special needs.
The kitchen can be planned and installed individually according to your own ideas. In addition, the apartment includes a large separate basement room as well as its own garage.
During the renovation, comprehensive insulation was implemented to meet today's energy standards. The new windows also contribute sustainably to reducing energy costs.
The apartment is located in a central area of Höchenschwand. The bank, doctor, shopping facilities, primary and secondary schools, as well as public transport, are all within a few minutes' walk.
Property characteristics
| Age | Over 5050 years |
|---|---|
| Layout | 3+kk |
| Listing ID | 1018205 |
| Usable area | 143 m² |
| Condition | After reconstruction |
|---|---|
| Floor | 1. floor out of 2 |
| EPC | D - Less economical |
| Price per unit | €8.39 / m2 |
What does this listing have to offer?
| Balcony | |
| Basement | |
| MHD 1 minute on foot |
| Wheelchair accessible | |
| Garage |
What you will find nearby
Still looking for the right one?
Set up a watchdog. You will receive a summary of your customized offers 1 time a day by email. With the Premium profile, you have 5 watchdogs at your fingertips and when something comes up, they notify you immediately.










