
House for sale • 340 m² without real estate, Bavaria
Exclusive detached house with an in-law apartment, conservatory, covered swimming pool, and photovoltaic system
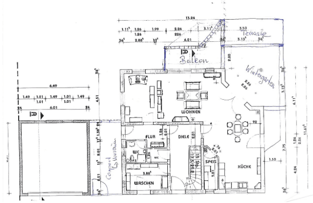
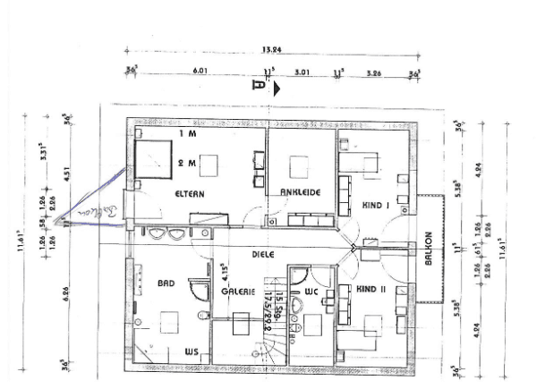
Ground floor + Upper floor + Attic
▪ Construction: Solid brick construction, 36.5 cm thick
▪ Roof: Gable roof with exposed truss structure and on-roof insulation
▪ Living area: approx. 340 m²
▪ Plot area: approx. 890 m²
Park-like, meticulously maintained garden.
The plot is completely overgrown and fenced
▪ First occupancy in 2001
▪ Conservatory at the corner
▪ Heating: Oil central heating system by Buderus, built in 2000, with underfloor heating and electronic control as well as partly additional radiators, solar system for hot water, modern plastic piping
▪ Tiled stove with a unique inset in the living room
▪ Condition: Very well maintained and renovated
▪ Insulation: On-roof insulation, aluminum foil coated
▪ Floor coverings: Granite, parquet, tiles, high-quality vinyl flooring with a real wood look
▪ Windows: Double-glazed, muntin plastic windows in white with roller shutters, partly electric
▪ Very upscale bathrooms, guest WC, guest bathroom with black "Granite" Nero Assoluto and designer tiles, (children’s) shower room, main bathroom in the attic exclusively equipped with black "Granite" Nero Assoluto
▪ Outdoor pool (8 m x 4 m x 1.50 m) with its own heat pump, built in 2022, and new liner from 2021/22
Pool equipment is located in the garden house
▪ Large terrace areas, partly covered outdoor seating areas
▪ Dry basement
▪ 2 modern fitted kitchens included
▪ Large double garage, fully basement with two electric gates as well as wallboxes and a passage into the house entrance area
▪ Garden house with a gable roof and outdoor seating area, equipped with lighting and power
▪ Photovoltaic system: A PV system with 9.9 kW and an 8 kW storage unit was installed on the house in 2020
Living and commercial use, family homes for large families, two-generation living, live-in rental, as well as complete rental
City of Vilshofen on the Danube, district of Alkofen
The house is located in a quiet and well-kept residential cul-de-sac on the outskirts of Alkofen.
An ideal residence for families
▪ Infrastructure:
All shopping and supply facilities
Kindergarten and elementary school
▪ Public transportation
School bus approx. 500 m away
Private sale, no additional broker commission!
For further information and images please provide complete contact details: name, address, email address, and telephone number.
Since the house is occupied, viewings will only be arranged with interested parties who can demonstrate their financing options for the property at the given purchase price.
Property characteristics
| Age | Over 5050 years |
|---|---|
| Listing ID | 1017789 |
| Usable area | 340 m² |
| Total floors | 3 |
| Condition | After reconstruction |
|---|---|
| EPC | B - Very economical |
| Land space | 890 m² |
| Price per unit | €1,997.06 / m2 |
What does this listing have to offer?
| Balcony | |
| Garage | |
| MHD 2 minutes on foot |
| Basement | |
| Parking | |
| Terrace |
What you will find nearby
Still looking for the right one?
Set up a watchdog. You will receive a summary of your customized offers 1 time a day by email. With the Premium profile, you have 5 watchdogs at your fingertips and when something comes up, they notify you immediately.


