
Flat for sale 3+1 • 114 m² without real estateHalle Giebichenstein Sachsen-Anhalt 06114
The two carriage houses are centrally located in the courtyard. They were built between 2023 and 2025 by adding floors to the existing carriage houses and boast a modern design, high-quality materials, as well as energy-efficient equipment featuring a heat pump and thermal insulation in a clinker appearance (energy certificate A+).
A parking space or garage spot can optionally be purchased directly in front of the house.
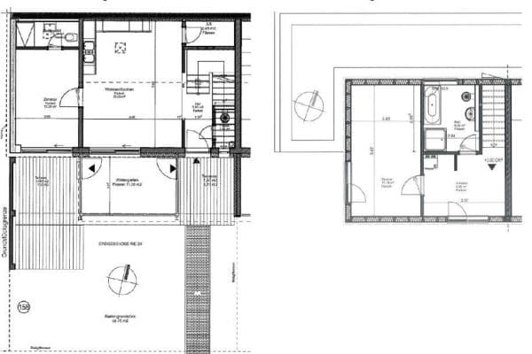
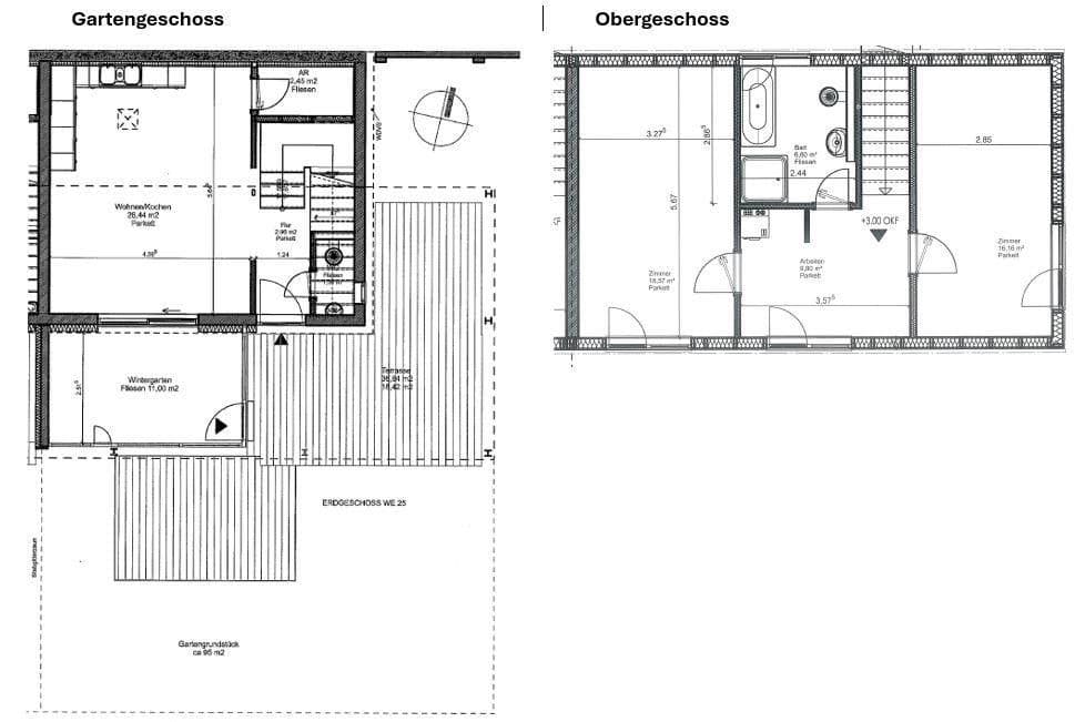
The right house (unit 25) spans two levels: on the garden level is the open-plan living and dining area with pre-installed kitchen connections. Adjacent to this is the high-quality conservatory, equipped with underfloor heating and all media connections. The conservatory provides two access options to the terrace and garden. The garden will be planted with lawn and hedges. A fruit tree and a magnolia are already present.
To ensure privacy, textile screens with both visibility and solar protection functions have been installed in the ground floor area. The screens can be controlled electrically via remote controls. They are designed so that visibility from the inside outward is maintained.
A guest toilet in the entrance area completes the floor plan. The large floor-to-ceiling windows, as well as a roof window above the kitchen, ensure plenty of daylight and air circulation.
On the upper floor are the two bedrooms, a modern bathroom with a bathtub and shower, as well as a utility room equipped with connections for a washing machine and dryer and additional storage options.
The floors are finished in high-quality oak parquet. The bathroom features underfloor heating and a towel radiator.
Mozartstraße runs horizontally from the east-located Paulusviertel towards the west-located Saale, cutting across the Giebichenstein district in the northern inner city.
The Giebichenstein district acquired its name from the Giebichenstein Castle, located directly on the Saale, which was built as far back as the 12th century. Since 1919, a part of the Art Campus of the Halle Academy of Art has been located on its grounds. The buildings in this district predominantly date from the 19th century and have been gradually renovated since 1990. In the vicinity of the zoo and towards the Saale riverbank, villa-style buildings with front gardens and valuable mature trees prevail. Due to the proximity to the Saale and the partly historic park and green areas (Amtsgarten, Reichardts Garten, Heinrich-Heine-Park), this neighborhood is one of the greenest. The district has about 10,000 residents.
House number 18 Mozartstraße is a very quiet address, located directly opposite the rear of the Natural History Museum.
In nearby Reilstraße there are various tram and bus stops.
The Volkspark, as well as other parks and even the Saale, can be reached in a few minutes' walk, in less than 500 meters.
The houses at Mozartstraße 16, 17, and 18 were built in a uniform style in the 1930s and now form an upgraded, listed residential complex. The three front houses were built without side wings or cross-buildings, creating a spacious courtyard area behind them. The carriage houses offered here belong to house number 18.
The carriage houses have been converted into a modern semi-detached house. The courtyard itself is spacious and green. Other carriage houses accommodate bicycle parking spaces, building services, and a garage. The carriage houses are accessible via the gate passage of house number 18.
During the roof extension of the three front houses, in addition to a new roof covering, the facades, entrance areas, stairwells, communal electrical systems, gate passage, and more were renovated.
Garage and/or parking space in the courtyard is possible (see brochure).
Property characteristics
| Age | Over 5050 years |
|---|---|
| Condition | After reconstruction |
| Listing ID | 1017704 |
| Usable area | 114 m² |
| Available from | 29/04/2026 |
|---|---|
| Layout | 3+1 |
| EPC | A - Extremely economical |
| Price per unit | €4,342.11 / m2 |
What does this listing have to offer?
| Basement | |
| Parking | |
| Terrace |
| Garage | |
| MHD 2 minutes on foot |
What you will find nearby
Still looking for the right one?
Set up a watchdog. You will receive a summary of your customized offers 1 time a day by email. With the Premium profile, you have 5 watchdogs at your fingertips and when something comes up, they notify you immediately.
































