
Flat to rent 3+1 • 72 m² without real estateLoppengasse 21 A, , Baden-Württemberg
Loppengasse 21 A, , Baden-WürttembergPublic transport 3 minutes of walking • ParkingFirst occupancy after renovation as of 01.06.26: In a quiet location in the center of Nussloch, two very attractive, completely renovated apartments with 72 and 32 square meters of living space respectively are available commission-free. Your new home features a lovely, peaceful balcony and will be equipped with high-quality, health-conscious materials. The finishes are top-notch, including porcelain stoneware tiles, solid wood windows (partially new), and parquet flooring.
Please note: The photos come from apartments in the front building that have already been completed. The two apartments offered here are currently being renovated.
Only individuals with a fixed full-time employment contract, or those presenting a guarantor, are eligible to rent. The security deposit amounts to three months’ cold rent.
Contracts for electricity and internet must be arranged by the tenants themselves, as these costs are not included in the advance operating costs payment.
Overview of the available apartments and their cold rents, plus the operating cost advance, electricity, and internet:
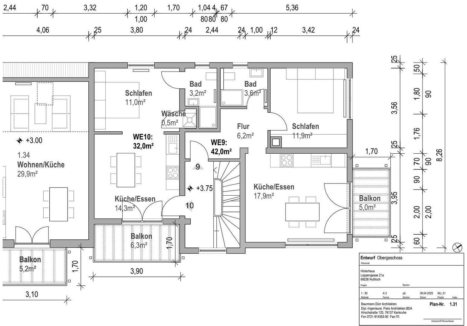
Apartments in the rear building, not yet fully renovated, available from 01.06.2026:
• Apartment 8 on the ground floor: approximately 72 m² with a balcony; cold rent 1,030 euros plus operating costs, electricity, and internet. Tentatively available from 01.06.26. An optional parking space is available for 70 euros per month.
• Apartment 10 on the first floor: approximately 32 m² with a balcony; cold rent 530 euros plus operating costs, electricity, and internet. Tentatively available from 01.06.26. An optional parking space is available for 70 euros per month.
The building is located close to the center of Nussloch. Shops, authorities, doctors, public transportation, and schools are in the immediate vicinity.
The fittings are of high quality, featuring porcelain stoneware tiles, solid wood windows (partially new), and parquet flooring. The walls have been smoothly finished and painted white.
Property characteristics
| Age | Over 5050 years |
|---|---|
| Layout | 3+1 |
| EPC | G - Extremely uneconomical |
| Price per unit | €14.31 / m2 |
| Condition | After reconstruction |
|---|---|
| Listing ID | 1017508 |
| Usable area | 72 m² |
What does this listing have to offer?
| Balcony | |
| MHD 3 minutes on foot |
| Parking |
What you will find nearby
Still looking for the right one?
Set up a watchdog. You will receive a summary of your customized offers 1 time a day by email. With the Premium profile, you have 5 watchdogs at your fingertips and when something comes up, they notify you immediately.














