
Flat to rent 3+1 • 104 m² without real estateAm Steinkart 5b, , Bavaria
Am Steinkart 5b, , BavariaPublic transport 5 minutes of walking • Lift • GarageDreamlike Living & Life in Bad Griesbach
Here, architecture and a sense of home come together. The apartments combine a pleasant feeling of quality and style. The generously sized, light-filled rooms impress with high-quality materials and timeless, elegant aesthetics.
In the beautiful residential area of Bad Griesbach, we are creating for you, in the most attractive location, an upscale new construction project with a total of four multi-family houses comprising 44 unique, modern residential units. In addition to quality, we place great importance on a contemporary architecture that fits the region when planning and executing. The property is wonderfully situated in an elevated position at the end of a settlement, offering unobstructed views of the mountains. The town center, doctors, and all daily amenities can be easily reached on foot.
The apartments convince with their spacious balconies, roof terraces, and terraces with gardens. The gardens of the ground floor apartments are for the exclusive use of the owner. The penthouse and upper floor apartments offer a dreamlike and unobstructed view with a panorama of the Alps. Elevators conveniently carry all residents from the underground garage to every floor. A large number of the apartments have barrier-free access.
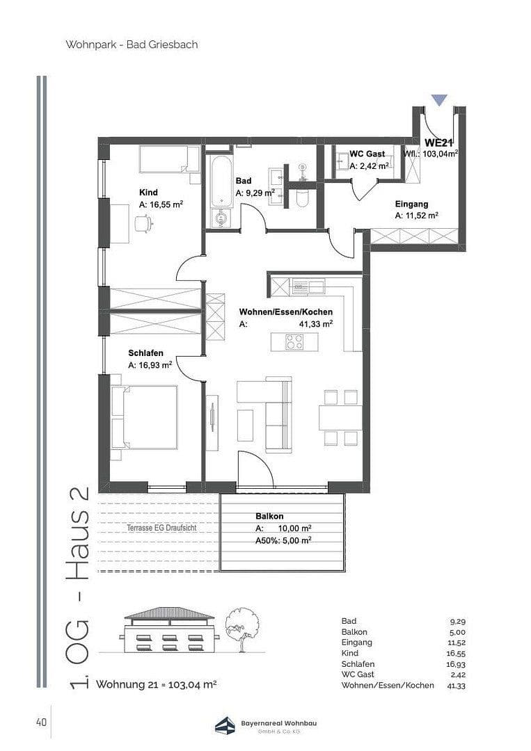
Our sunny 3-room apartment with a south-facing balcony, bedroom, bathroom, and a spacious open plan living-dining-kitchen area is ideally suited for families and couples looking for a place to relax and feel at home! The large garden is available for the exclusive use of the respective owner.
Of course, the TG project offers parking spaces, carport spaces as well as outdoor parking spaces. In addition, each apartment has its own basement compartment.
KfW 40 QNG Standard:
The construction meets all criteria of the current EnEV in the KfW40 QNG energy efficiency class and, with its thermally efficient building envelope, underlines sustainable building practices. As a result, the building is very energy-saving, sustainable and environmentally friendly. The construction method keeps future operating costs very low. The energy concept is supported by a PV system with 10 kWp.
Rental Price Composition:
- Rent for a 2-room apartment: €1,170.00
- Rent for 2 underground garage parking spaces: €130.00
- Rent for fitted kitchen: €65.00
- Additional costs: €190.00
= Total rental price (warm rent): €1,555.00
THERE ARE SEVERAL APARTMENTS AVAILABLE; THESE CAN BE VIEWED AT A PROPERTY TOUR APPOINTMENT ON SITE!
Living & Life in Bad Griesbach
In an unobstructed prime location with a dreamlike view and located close to the Bad Griesbach town center, four multi-family houses with a total of 44 unique, modern residential units are being built.
360-Degree Virtual Tour:
https://bayernarealwohnbau.viewin360.co/share/collection/7bQ8V?logo=bWVkaWEvNTQxNTIyLzY2ZTQtMDI1Ni00MTViLWYxOTIucG5n&info=0&logosize=160&fs=1&vr=1&sd=1&thumbs=1&inst=de
Modern & Upscale Amenities:
+ Modern construction and high-quality fittings according to the KfW 40 NH Efficiency House Standard
+ Thermal insulated bricks
+ Fitted kitchen
+ PV system with 10 kWp
+ Ground floor apartments with terraces and landscaped gardens
+ One elevator per multi-family house
+ Energy-saving heating with pellet heating systems
+ Most apartments are barrier-free
+ High-quality real wood parquet floors / modern tiles
+ Individually adjustable underfloor heating for a pleasant sense of living comfort
+ Barrier-free showers and designer bathroom fittings
+ Some units include a guest toilet
+ Aluminum-plastic windows in anthracite on the outside/white on the inside (triple insulated glazing)
+ Electrically operated roller shutters and venetian blinds
+ Decentralized residential ventilation with heat recovery
+ Carport parking spaces
+ Outdoor parking spaces
One basement compartment per apartment
Property characteristics
| Age | Over 5050 years |
|---|---|
| Condition | New-build |
| Listing ID | 1017458 |
| Usable area | 104 m² |
| Available from | 15/11/2025 |
|---|---|
| Layout | 3+1 |
| EPC | A - Extremely economical |
| Price per unit | €11.25 / m2 |
What does this listing have to offer?
| Balcony | |
| Basement | |
| Lift |
| Wheelchair accessible | |
| Garage | |
| MHD 5 minutes on foot |
What you will find nearby
Still looking for the right one?
Set up a watchdog. You will receive a summary of your customized offers 1 time a day by email. With the Premium profile, you have 5 watchdogs at your fingertips and when something comes up, they notify you immediately.




















