
Flat for sale 3+1 • 78 m² without real estateWiesbaden Wiesbaden Hessen 65203
Welcome to your new home in Wiesbaden-Biebrich! Within walking distance to the palace park, approximately 78 m² of living space distributed over three intelligently designed rooms in a quiet inner courtyard setting offer exactly the living comfort you desire.
The apartment has been comprehensively and high-quality renovated recently and is ready for first occupancy. All essential areas – from the electrical system to the bathroom, as well as floors and surfaces – have been renewed, so you can move in immediately without any extra work and feel right at home.
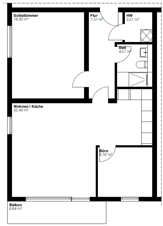
The well-structured floor plan, light-filled rooms, and open-plan kitchen create a pleasant, welcoming atmosphere. A practical utility room with a washing machine connection ensures everyday convenience. The balcony overlooking the landscaped inner courtyard offers a quiet retreat and completes the harmonious overall impression.
The location uniquely combines tranquility with everyday convenience. The palace park is only about 500 m away and invites you to stroll and relax in the greenery. At the same time, you can reach shops, public transport, and downtown Wiesbaden in a short time.
The combination of high-quality renovation, a quiet location, and immediate availability makes this apartment a home where you feel comfortable from the very first moment.
The property is offered commission-free directly by the owner.
The apartment is located on the 1st floor of a very well-maintained multi-family house in the sought-after area of Wiesbaden-Biebrich. Particularly noteworthy is the quiet, recessed inner courtyard location in the second row, which, despite its centrality, provides a pleasant and protected living environment.
Everyday stores such as supermarkets, cafés, and drugstores are conveniently reached on foot. Even destinations a bit farther away, such as downtown Wiesbaden or the main train station, are quickly accessible thanks to the bus stop “Wiesbaden-Biebrich Heppenheimer Str.” located in the immediate vicinity.
The Biebrich Palace Park is only about 500 m away and offers high recreational and relaxation value with its vast green areas and riverside location.
Additionally, the nearby junctions to the A671 and A66 provide quick access to the entire Rhine-Main area.
Overall, the location is characterized by an attractive combination of tranquility, good infrastructure, and central connectivity.
As part of a comprehensive renovation, the apartment was upgraded to a state-of-the-art level in 2026 both technically and visually through, among other measures, the following:
• Complete renovation of the electrical system
• Complete renovation of the bathroom
• Renewal of all walls and ceilings
• New radiators in all rooms
• New water pipes
• New, high-quality vinyl flooring in oak look
• Replacement of all frames and interior doors
• Floor plan optimization
• An entirely new fitted kitchen, which we are happy to offer optionally at an additional cost
We are also pleased to assist you with the financing of this property. Our independent financing consultant will find the best offer for your individual situation from a multitude of financing partners, thus guaranteeing you optimal conditions.
MAAD Real Estate GmbH
Gerichtsstr. 2
65185 Wiesbaden
Registered at the Wiesbaden District Court
HRB 32961
Property characteristics
| Age | Over 5050 years |
|---|---|
| Condition | After reconstruction |
| Floor | 1. floor out of 3 |
| EPC | D - Less economical |
| Price per unit | €4,282.05 / m2 |
| Available from | 28/04/2026 |
|---|---|
| Layout | 3+1 |
| Listing ID | 1017397 |
| Usable area | 78 m² |
What does this listing have to offer?
| Balcony | |
| Garage |
| Basement | |
| MHD 4 minutes on foot |
What you will find nearby
Still looking for the right one?
Set up a watchdog. You will receive a summary of your customized offers 1 time a day by email. With the Premium profile, you have 5 watchdogs at your fingertips and when something comes up, they notify you immediately.










