Flat to rent 2 bedroom • 74 m² without real estateBoschstraße 3 Heldenstein Bayern 84431
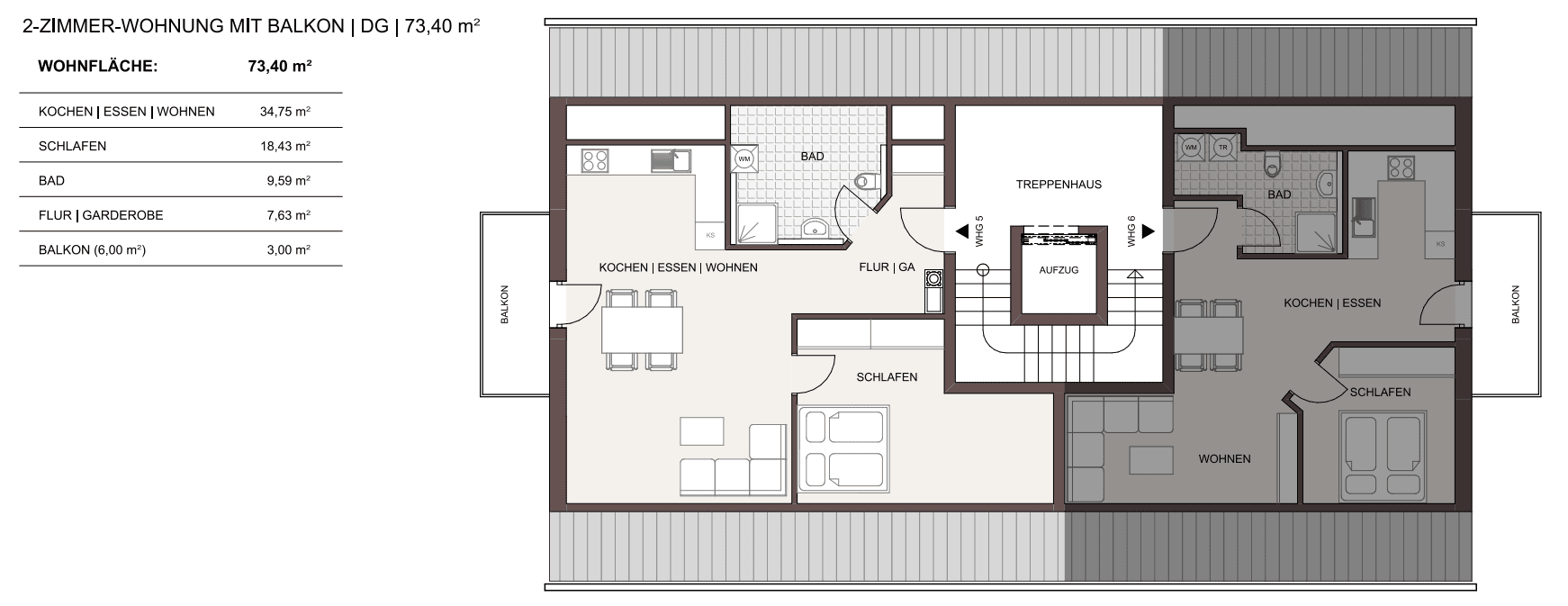
Boschstraße 3 Heldenstein Bayern 84431Public transport 9 minutes of walking • Lift • ParkingFrom 01.08.2026 you can move into this beautiful top-floor apartment in Heldenstein, which impresses with its upscale interior design. The building is located at the very edge with a stunning view of nature. The two inviting rooms can be furnished according to your personal taste. The apartment is barrier-free and even features an elevator that travels from the basement to the top floor. Especially noteworthy is the amazing balcony, where you can wonderfully unwind from everyday life while enjoying a splendid view of nature. The apartment comes with two parking spaces for your car, ensuring convenient parking without the hassle of searching. There is also a basement storage room available. A very good energy certificate and a pellet heating system guarantee low heating costs in the long term.
Heldenstein is an up-and-coming municipality in the Mühldorf district that greatly benefits from its rural, idyllic location as well as the direct connection to the A94 motorway and the short journey to Ampfing for the train connection to Munich. As a result, many young families are settling here—families who are only a short drive away from Munich by car yet still wish to enjoy a rural, peaceful environment. With the influx of new residents and the excellent infrastructure, new businesses and shopping opportunities have been and are being created in Heldenstein. For example, a new Edeka supermarket was built recently, which is just a few minutes’ walk from the property. With the close proximity and optimal connection to Ampfing, Waldkraiburg, and Mühldorf, you truly have everything you need nearby.
Heldenstein is an up-and-coming municipality in the Mühldorf district that greatly benefits from its rural, idyllic location as well as the direct connection to the A94 motorway and the short journey to Ampfing for the train connection to Munich. As a result, many young families are settling here—families who are only a short drive away from Munich by car yet still wish to enjoy a rural, peaceful environment. With the influx of new residents and the excellent infrastructure, new businesses and shopping opportunities have been and are being created in Heldenstein. For example, a new Edeka supermarket was built recently, which is just a few minutes’ walk from the property. With the close proximity and optimal connection to Ampfing, Waldkraiburg, and Mühldorf, you truly have everything you need nearby.
Infrastructure (within a 5 km radius):
• Pharmacy, discount grocery, general practitioner, kindergarten, elementary school, secondary school (Hauptschule), intermediate school (Realschule), grammar school, public transportation
Additional features:
• KfW55 Standard
• Elevator from the basement to the top floor
• Barrier-free access
• High-quality vinyl flooring in a lovely oak effect
• Modern tiling in the bathroom
• Two parking spaces for your cars
• A beautiful balcony with a stunning view of nature
• A central pellet heating system with an excellent energy certificate to keep additional costs low
• Washing machine connection in the bathroom
• Automatic room ventilation
Property characteristics
| Age | Over 5050 years |
|---|---|
| Condition | Very good |
| Floor | 2. floor out of 2 |
| EPC | A - Extremely economical |
| Price per unit | €12.84 / m2 |
| Available from | 01/08/2026 |
|---|---|
| Layout | 2 bedroom |
| Listing ID | 1017136 |
| Usable area | 74 m² |
What does this listing have to offer?
| Balcony | |
| Basement | |
| Parking |
| Wheelchair accessible | |
| Lift | |
| MHD 9 minutes on foot |
What you will find nearby
Still looking for the right one?
Set up a watchdog. You will receive a summary of your customized offers 1 time a day by email. With the Premium profile, you have 5 watchdogs at your fingertips and when something comes up, they notify you immediately.






















