House for sale • 253 m² without real estate, Baden-Württemberg
This extraordinary property in Langenargen combines spacious living with diverse commercial opportunities. Whether you run a business, pursue a space-demanding hobby (classic cars, a studio, workshop) or simply need plenty of room for your ideas, this energy class C property provides you with complete freedom.
Features of the equipment:
“Forget about traditional utility cellars: even the rooms designated as commercial space here benefit from natural daylight and underfloor heating. The intelligent layout allows for a legally secure use under the 51%-commercial regulation, while the transition between living and working areas is fluidly designed.”
A representative model home with an expansive operational manager’s apartment and an XXL garden
Key facts at a glance:
• Location: 88085 Langenargen (central & near the lake)
• Plot: approx. 820 m² (matured with a lounge area)
• Total area: approx. 253 m² (combining living and commercial use)
• Energy efficiency: Class C (future-proof!)
• Parking: 4 parking spaces + carport/lounge
• Purchase price: €995,000 (no commission)
________________________________________
Property Description
Welcome to a property that redefines flexibility. This well-maintained estate was designed as a model home with an integrated operational manager’s apartment and offers the rare opportunity to combine spacious living with commercial freedom at one of the most attractive locations on Lake Constance.
Whether you run an architectural firm, an agency, a practice, or a craft business – here you will find the space you need. Thanks to its legal classification, you not only enjoy tax planning opportunities but also a spatial offering that far exceeds that of conventional single-family homes.
Highlights of the Property
1. Living at a High Level: The private areas impress with bright rooms and an intelligent layout. With energy class C, you enjoy spacious living that is also energy efficient and cost-saving.
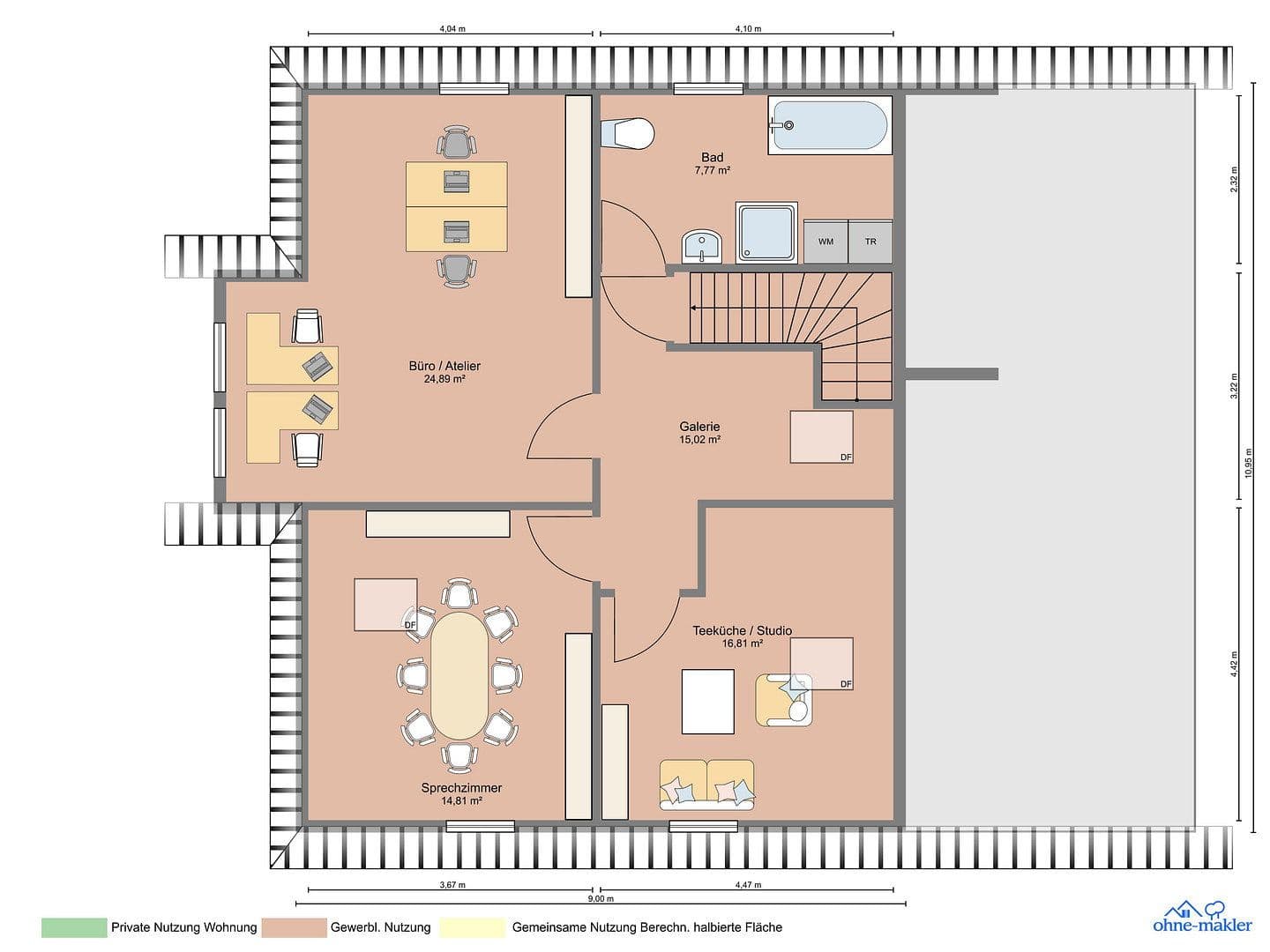
2. Commercial Spaces with Living Standards: No dark storage halls! The areas designated as commercial (approximately 51% of the total area) are fully heated (underfloor heating throughout the entire ground floor) and benefit from abundant natural light. Whether used as a showroom, office, or high-quality storage – the quality of the spaces matches modern residential standards.
3. The Garden – Your Private Oasis: On a plot of 820 m², a green oasis awaits you. A special highlight: the substantial carport has been lovingly transformed into an outdoor lounge. Here, you can enjoy your evenings in complete privacy, while your fleet is safely housed in the three separate parking spaces.
4. The attic is the technological heart for creatives or entrepreneurs. With existing connections for high-voltage electricity and water, the possibilities for use—studio, IT workspace, practice room—are limitless.
5. A special advantage for investors and expanding businesses: The plot offers significant reserves for additional development. Since an extension can ideally be placed on the northeast side, the character of the sunny garden oasis is fully preserved.
The Facts for Your Planning
• Construction: High-quality solid construction / model home standard (solid Ytong roof)
• Usage Concept: Legally secure combination of commercial and residential use (operational manager’s apartment).
• Flexibility: The commercial spaces, thanks to their high-quality equipment (heating/light), can be flexibly integrated into your lifestyle.
• Location Advantage: Enjoy peaceful work in a commercial area with short distances to the lakeshore and the town center.
Langenargen on Lake Constance is one of the most sought-after residential locations in the region. The property is located in a quiet area, guaranteeing you exceptional tranquility, especially after work and on weekends. The lakeshore, the harbor, and the town center are reachable within minutes.
FEATURES & HIGHLIGHTS
• Area: Approx. 253 m² of living/usable space over 3 floors.
• Plot: Approx. 820 m² (southwest orientation).
• Commercial Bonus: Separate business entrances (ground floor & attic) for discreet client access.
• Buildability: High plot coverage and floor area ratio due to the commercial area status – an extension on the north/east side is easily possible.
• Technology: Underfloor heating (entire ground floor/attic bathroom), otherwise central heating, energy class C, high-voltage connection in the attic.
• Outdoor Facilities: Mature garden with year-round blooms, a cozy barbecue area, and a generously paved courtyard driveway.
Why This Property Is Right for You:
This house is aimed at go-getters who value space and independence. While others in Langenargen live close together on small plots, this property offers you the freedom of an 820 m² plot at a price per square meter that is significantly below the regional average.
Private sale – Save approximately €35,000 in broker’s commission!
Is This for You?
• Freelancers (architects, coaches, lawyers, tax consultants)
• Creatives (designers, photographers, artists)
• Startup founders/IT companies
• Craftsmen/retailers
If you’re looking to flourish, this is the place for you!
Property characteristics
| Age | Over 5050 years |
|---|---|
| Listing ID | 1016728 |
| Usable area | 253 m² |
| Total floors | 3 |
| Condition | Good |
|---|---|
| EPC | C - Economical |
| Land space | 820 m² |
| Price per unit | €3,932.81 / m2 |
What does this listing have to offer?
| Balcony | |
| MHD 3 minutes on foot |
| Parking | |
| Terrace |
What you will find nearby
Still looking for the right one?
Set up a watchdog. You will receive a summary of your customized offers 1 time a day by email. With the Premium profile, you have 5 watchdogs at your fingertips and when something comes up, they notify you immediately.














