House for sale 5+1 • 195 m² without real estate, Hesse
This detached single-family house (built in 1956) is located in one of the most sought-after residential areas of Bad Homburg and impresses with its special charm as well as a high degree of privacy. The approximately 788 m² plot is beautifully landscaped and pleasantly shielded from the very quiet residential street and neighbors by hedges, bushes, and trees.
Since 1980, the house has been continuously and comprehensively modernized. It received a natural slate roof; the roof areas were insulated; the electrical wiring was modernized; a floor-to-ceiling insulated glass window was installed on the upper floor along with a small balcony in front of it; the exterior paint was renewed; parquet flooring was laid in all living areas; an additional shower bathroom was added in the basement; the drainage channel was renovated; a water treatment system was installed to protect the water pipes; the basement insulation was renewed; and the entrance received a new free-standing staircase made of light granite, etc.
The living area is approximately 195 m² plus an additional approximately 100 m² of usable space.
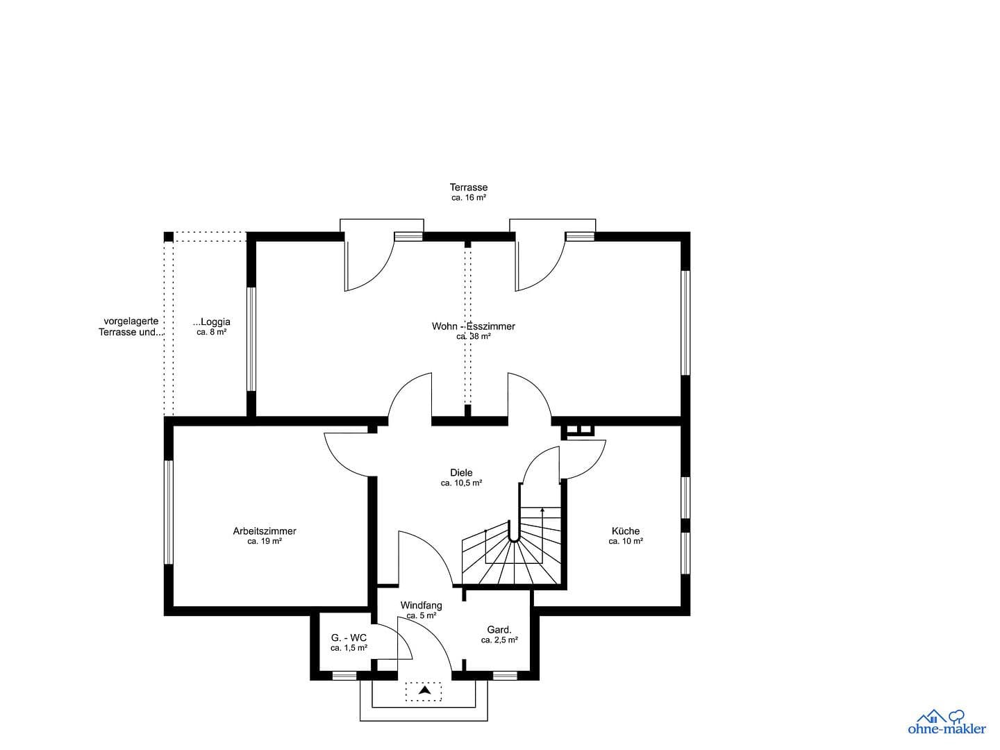
On the ground floor, there is an approximately 38 m² living/dining room with two large windows and two terrace doors. In front, there is a sandstone terrace (approx. 16 m²) equipped with awnings, and to the side, a covered outdoor area (loggia) with an adjoining terrace (approx. 8 m²). Additionally, on the ground floor you will find a spacious study (approx. 19 m²) with a garden view, a fitted kitchen (approx. 10 m²), as well as a generous entrance area with a wardrobe, an anteroom, a guest toilet, and a hallway (approx. 18 m²).
On the upper floor, there is the master bedroom (approx. 16 m²) with its own bathroom/toilet featuring a bathtub, two children’s rooms (one approx. 17 m² with a small balcony and another approximately 13 m²), as well as a shower bathroom/toilet. In front of these rooms is an approximately 12 m² gallery.
The attic has been developed into a large hobby room with an additional storage space accessible via a retractable ladder.
In the basement, there is another shower bathroom/toilet, as well as two converted, heated storage rooms (each approx. 13 m²) and a laundry room (approx. 8 m²).
The property also includes a detached garage with an automatic sectional door, with space in the driveway in front of it for another vehicle. Behind the garage, there is a large outdoor area with a sandstone terrace.
The house is located in the villa district of Ellerhöhe/Zollstock (postal code 61352) in a southwest-facing position away from the street on a very quiet side street. The area is very green and predominantly consists of detached, staggered single-family houses. To ensure the existing high quality of living, the development plan stipulates that the existing garden areas must be preserved and that infill development can only occur on a moderate scale.
You will benefit from the excellent infrastructure of Bad Homburg—the largest city in the Vordertaunus (approx. 55,000 inhabitants)—which offers all kinds of doctors, a new district hospital, kindergartens, all school types, shopping facilities, an extensive cultural program, as well as numerous sports, leisure activities, and public transport options.
The Vordertaunus, with its forests and meadows, is right on your doorstep. The Saalburg Roman fort, rebuilt by Kaiser Wilhelm II along the Limes and the only fully restored Roman fort in the world, can be reached by car in 30 minutes.
The renowned Kaiserin-Friedrich-Gymnasium, the popular Taunus-Therme, the Seedamm pool (outdoor and indoor pool), and the Kurpark with its tennis and golf club are all within a few minutes’ walk, as is the nearby Hardtwald recreational area. The center of Bad Homburg, with its shopping streets and the palace park including the palace of the former Landgraves of Hesse-Homburg, is also within walking distance via the Kurpark. The distance to the center of Frankfurt via the A 661 is approximately 16 km.
Overall, this property offers an excellent macro- and micro-location of lasting value.
• Parquet floors (in light Canadian maple) in all living areas
• Tiled floors in bathrooms and ancillary rooms
• Insulated-glass windows
• Electric wooden shutters on the ground floor
• Fitted kitchen with granite worktops
• Modernized natural gas central heating with hot water preparation
• Water treatment system (built in 2017)
• Awnings for the terrace area
• Fitted wardrobe in the basement
The building’s final energy consumption is 160.5 kWh/(m²a).
The user-friendly water treatment system by perma-trade Wassertechnik, "permasolvent aktiv plus" (built in 2017), protects the water pipes from limescale deposits without chemicals, improves energy efficiency, enhances germ protection through oxygen activation, and revitalizes the drinking water.
The worktops in the white fitted kitchen are made of pink porino granite.
Notes:
• All dimension data is provided without guarantee!
• In order to avoid unnecessary efforts, processing inquiries from interested parties requires that substantive information regarding the financing of the purchase price and the creditworthiness of the interested parties be submitted in advance (see AGB Ohne-Makler, Immobilien-Inserate, Paragraph 4 "Käuferpass").
Property characteristics
| Age | Over 5050 years |
|---|---|
| Layout | 5+1 |
| EPC | E - Wasteful |
| Land space | 788 m² |
| Price per unit | €11,025.64 / m2 |
| Condition | After reconstruction |
|---|---|
| Listing ID | 1016504 |
| Usable area | 195 m² |
| Total floors | 3 |
What does this listing have to offer?
| Balcony | |
| Garage | |
| MHD 2 minutes on foot |
| Basement | |
| Parking | |
| Terrace |
What you will find nearby
Still looking for the right one?
Set up a watchdog. You will receive a summary of your customized offers 1 time a day by email. With the Premium profile, you have 5 watchdogs at your fingertips and when something comes up, they notify you immediately.
















