House for sale 4+1 • 124 m² without real estateDockstraße 25 Lübeck-Kücknitz Herrenwyk Schleswig-Holstein 23569
The offered semi-detached house, originally built in 1940 with a spacious extension from 1985, is situated on a plot of approximately 400 m² (freehold) in the quiet residential area of Lübeck-Kücknitz.
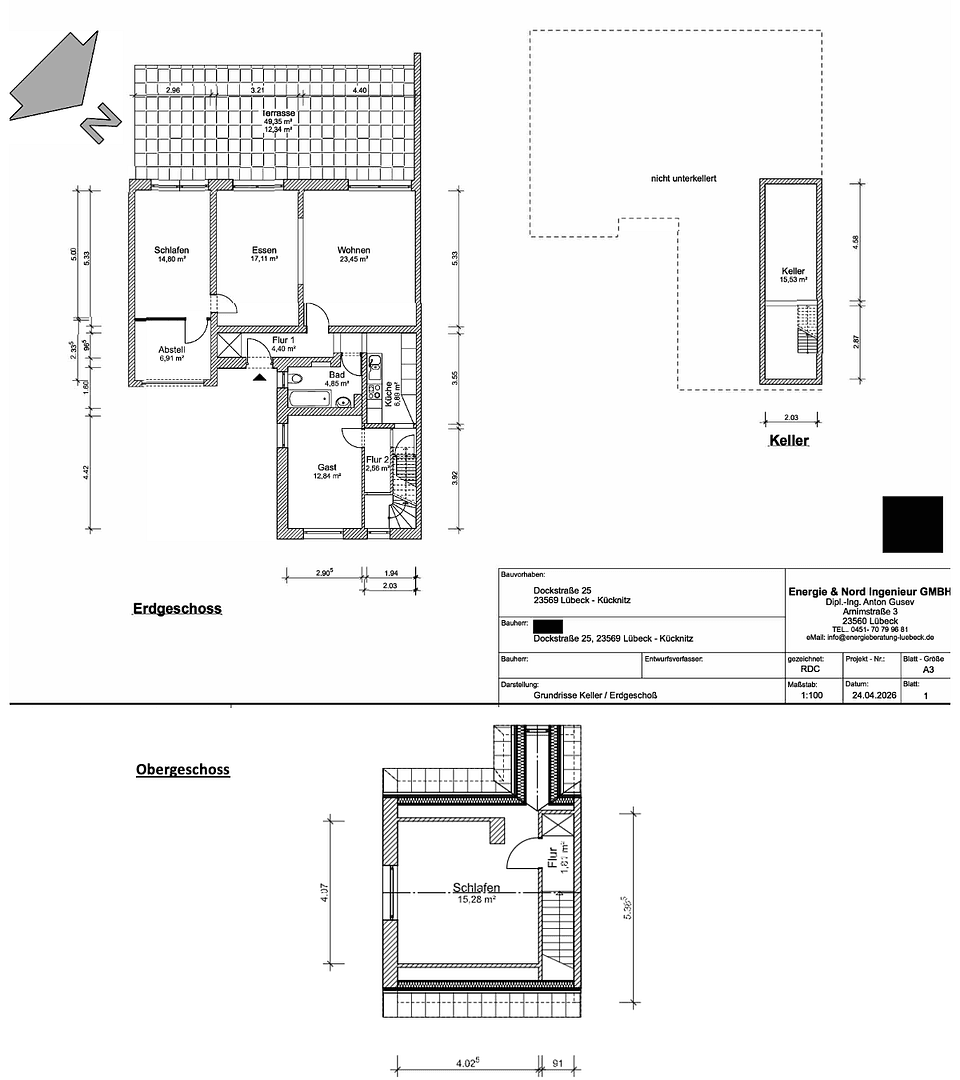
With a living area of about 123 m² and a total of 4 rooms, the property provides a good basis for families or couples who need extra space. The house has a partial basement and has been continuously maintained and modernized over the years. Numerous measures—especially in recent years—ensure an overall well-kept and functional condition.
Particularly noteworthy is the extension, which houses the living room with an integrated dining area. This space creates a generous living atmosphere and is additionally equipped with underfloor heating. From here, there is direct access to the garden, ideal for everyday family life with children or for relaxed hours outdoors.
From the extension, one also accesses the bedroom. This room was originally designed as a garage and was finished with lightweight partition walls. A reversion to the original garage use is fundamentally possible.
The outdoor area impresses with a well-kept garden facing south-west and offers a variety of usage possibilities. In addition to a shed for tools, there is a solid, heated outbuilding available that is suitable, for example, as a hobby room, workshop, or additional storage space.
A wallbox (11 kW) installed in 2023 sensibly complements the existing equipment.
The property is located in Lübeck-Kücknitz, a long-established and quiet residential area with good infrastructure.
Especially relevant for families:
• A primary school as well as a swimming pool are within about a 5-minute walk.
• A local grocery store (Famila) is located about a 10-minute walk away.
Additional shopping opportunities, doctors, and everyday amenities are available in the vicinity.
Public transport connections as well as access to the city of Lübeck are good. The proximity to the Baltic Sea and Travemünde also offers additional leisure value.
Upon entering the house, you arrive at the central hallway, from which the ground floor rooms are accessible. The layout is functional and allows for various uses.
The kitchen was custom-installed in 2019 and offers contemporary use. The full bathroom was completely renewed in 1998.
The living room in the extension forms the central area of the house. The underfloor heating and the low-maintenance tiled floor provide pleasant living comfort.
In the original main house, both the ground floor and the upper floor feature plank floors, which are currently covered with carpet but can be uncovered again if desired.
Behind the kitchen, facing the street, is a children’s room. From here, one can also reach the upper floor of the house. There, there is another living space with an additional small niche on the gable side.
Technically, the property is in solid condition:
• Gas heating (built in 2008, regularly maintained)
• Hot water supplied via the heating system
• Radiators predominantly renewed (2022)
• Electrical wiring largely consists of three-core cables including a residual-current device (RCD)
• The windows are mostly from around 1980 (plastic, double-glazed).
Measures carried out:
• 2024: Renewal of the sewage pipe including inspection chamber
• 2024: Renewal of the rain gutter and downpipes
• 2023: Installation of a wallbox (11 kW)
• 2015: Renovation of the flat roof on the extension
Various invoices as well as further documents and building permits from Lübeck’s building authority are available.
Costs:
• Property tax: €258.81 per year
• Building insurance: approximately €220 per year
Private sale – commission-free.
The property information, documents, plans, etc. provided have been passed on by the owner/seller. No liability is accepted for the accuracy or completeness of the information. It is therefore the responsibility of the interested party/buyer to verify the information provided. The real estate offer is non-binding and subject to errors, prior sale, rental, or other interim dispositions.
Contact:
Please contact us in writing through this platform. Please leave your telephone number so that we can get in touch with you.
Viewing appointments by prior arrangement only!
Property characteristics
| Age | Over 5050 years |
|---|---|
| Condition | Good |
| Listing ID | 1016415 |
| Usable area | 124 m² |
| Total floors | 2 |
| Available from | 01/08/2026 |
|---|---|
| Layout | 4+1 |
| EPC | F - Very uneconomical |
| Land space | 400 m² |
| Price per unit | €2,403.23 / m2 |
What does this listing have to offer?
| Basement | |
| Terrace |
| MHD 4 minutes on foot |
What you will find nearby
Still looking for the right one?
Set up a watchdog. You will receive a summary of your customized offers 1 time a day by email. With the Premium profile, you have 5 watchdogs at your fingertips and when something comes up, they notify you immediately.







































