
Flat for sale 2 bedroom • 43 m² without real estateCoventrystraße 57 Frankfurt am Main Nied Hessen 65934
Coventrystraße 57 Frankfurt am Main Nied Hessen 65934Public transport 3 minutes of walking • Lift • ParkingFor sale is a freshly renovated 2-room apartment in a well-maintained multi-family building built in 1971 in Frankfurt-Nied.
The apartment impresses with its compact, easily rentable size of approximately 43 m², a well-thought-out layout, and stable rental income. Thanks to the existing rental agreement, this property is ideal for investors looking to generate immediate income.
A carport parking space (additional €10,000) completes the offer and further increases its appeal to tenants.
Economics / Yield
Cold rent: €850 / month
Annual cold rent: €10,200
Monthly service charge: €351
Allocable: €235
Non-allocable: €116
Purchase Prices:
Apartment: €169,000
Carport: €10,000
Total Purchase Price: €179,000
Gross Yield: approximately 5.7% – 6%
This is a solid investment with stable cash flow and potential for further development.
Key Facts at a Glance:
• Year Built: 1971
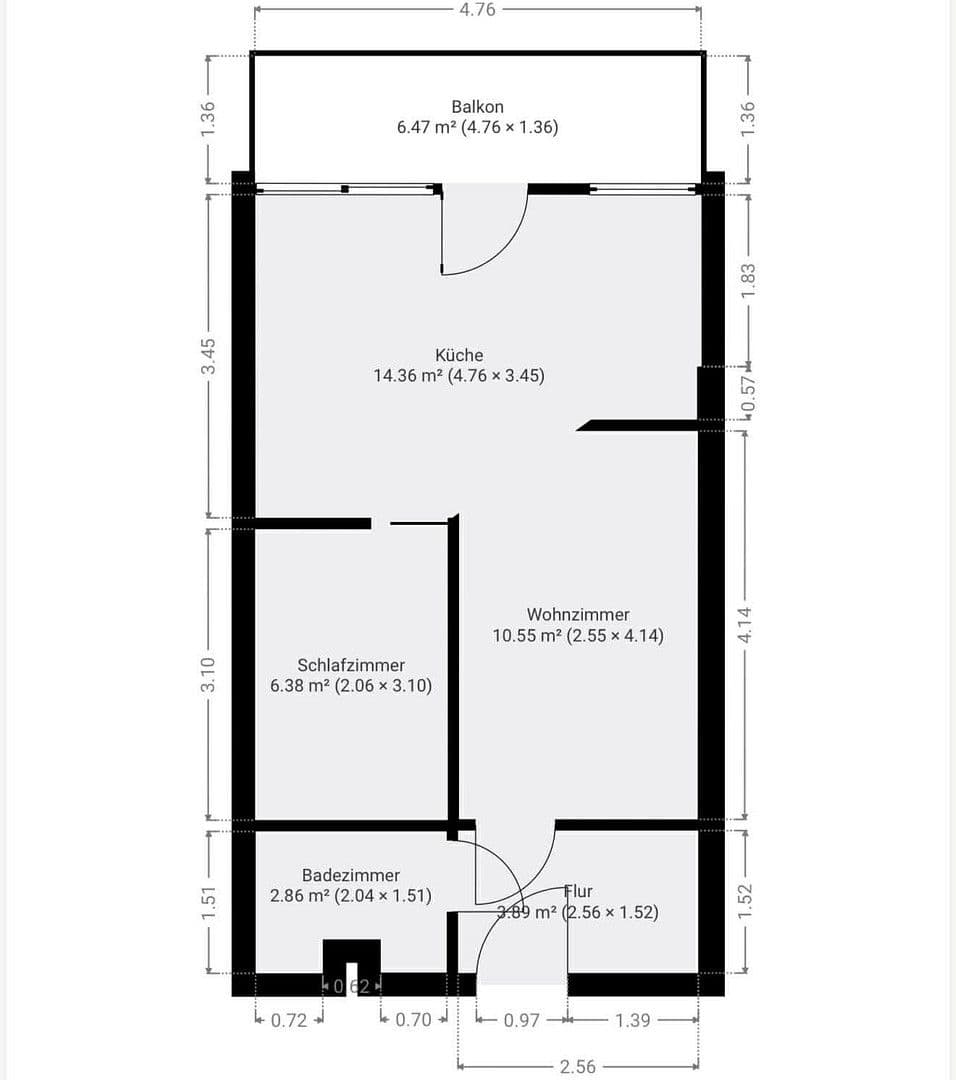
• Living Area: approx. 43 m²
• Rooms: 2
• Condition: freshly renovated
• Rented: Yes
• Parking: Carport (separately)
The apartment is located in the popular district of Frankfurt-Nied, a highly sought-after residential area with excellent infrastructure.
• Shopping opportunities in the immediate vicinity
• Good public transportation connections
• Quick access to downtown Frankfurt
• Close to industrial and commercial areas (high rental demand)
Especially attractive for commuters and professionals – stable tenancy is guaranteed:
• Bright and friendly rooms
• Functional 2-room layout
• Modernized features post-renovation
• Bathroom with contemporary fittings
• Easy-maintenance flooring
• Basement storage room available
• Fitted kitchen with complete appliances
• Carport parking space
This property is ideal for investors seeking a solid and long-term investment in an economically strong region.
A viewing is possible at short notice. We are happy to provide you with further documents.
Real estate agent inquiries are not welcome!
According to § 7 UWG, unsolicited contacts by real estate agents without the explicit consent of the recipient are prohibited!
Property characteristics
| Age | Over 5050 years |
|---|---|
| Condition | After reconstruction |
| Floor | 2. floor out of 6 |
| EPC | E - Wasteful |
| Price per unit | €3,930.23 / m2 |
| Available from | 29/04/2026 |
|---|---|
| Layout | 2 bedroom |
| Listing ID | 1016366 |
| Usable area | 43 m² |
What does this listing have to offer?
| Balcony | |
| Basement | |
| Parking |
| Wheelchair accessible | |
| Lift | |
| MHD 3 minutes on foot |
What you will find nearby
Still looking for the right one?
Set up a watchdog. You will receive a summary of your customized offers 1 time a day by email. With the Premium profile, you have 5 watchdogs at your fingertips and when something comes up, they notify you immediately.






