Flat for sale 3+1 • 77 m² without real estateDüsseldorf Pempelfort Nordrhein-Westfalen 40211
Düsseldorf Pempelfort Nordrhein-Westfalen 40211Public transport 4 minutes of walking • Lift • GarageFor those who appreciate the exceptional:
The newly renovated 3.5-room apartment combines the charm of classic old building architecture with modern living comfort and high-quality materials. And all of this in an absolutely central yet pleasantly quiet downtown location in the highly sought-after Pempelfort.
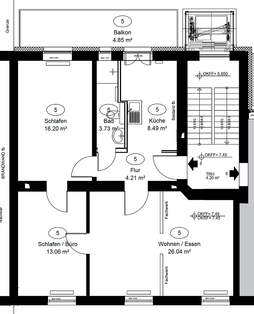
The light-filled 3.5-room apartment is located on the 2nd floor of a representative, newly extended stylistic old building from 1895 and is offered commission-free as a first occupancy after comprehensive refurbishment.
Right upon entering, the apartment impresses with a bright, semi-open kitchen that provides direct access to the spacious, newly constructed balcony overlooking the green inner courtyard. Here, you can enjoy sunlight well into the evening – a true highlight for anyone who values relaxed outdoor moments.
The living-dining area is both generous and atmospheric: Original timber frame elements stylishly segment the space, creating a unique living ambiance without compromising the openness of the layout. The two well-proportioned bedrooms also offer a comfortable space and can be flexibly designed as relaxation areas or workspaces.
The newly built bathroom with a window stands out with its high-quality fixtures and modern design featuring black matte designer fittings and a hansgrohe rainshower pipe, as well as sanitary items by Villeroy & Boch and Duravit. The floor is finished with high-quality porcelain stoneware in a cement tile look, echoing the aesthetics of the original construction period.
Additional features such as oak parquet laid in a herringbone pattern (in a subtle arrangement), natural stone window sills, lofty ceilings, tall cassette doors, and large window surfaces underline the classic old building character and give the apartment its unmistakable feel-good factor.
This apartment is a rare offering: centrally and quietly located and lovingly refurbished with high-quality details. It is perfect for anyone who appreciates quality and wants to enjoy a special living atmosphere in the heart of the city.
It is no wonder that Pempelfort is among Düsseldorf’s most popular established residential areas.
The district, adjacent to the old town and Düsseltal, offers green spaces (e.g., Hofgarten, Maurice Ravel Park, Berty Albrecht Park), several museums, a concert hall, access to the Rhine, the opera, and the old town – all contributing to a high level of recreational and leisure value. In addition, there is a broad and attractive range of shopping and dining options.
The building is situated on a quiet side street, within walking distance to the tram and S-Bahn stop D-Zoo, and is also very well connected by car via Toulouser Allee (A52, A44).
Just one street away are numerous restaurants and cafés. The shopping street Rethelstraße, with its supermarkets, pharmacy, and unique shops, is also only a few minutes’ walk away. Excellent educational and medical infrastructures are available.
The building was extensively renovated and extended by 2 floors from 2023 to 2026. In particular, the following measures were carried out:
• Extension by 2 floors
• New roof structure (mansard roof) and new roof insulation and covering
• Installation of high-quality triple-glazed wood-aluminum windows
• Triple-glazed wooden roof windows
• Renovation and repainting of the street-facing stucco façade
• Addition of a glass elevator
• Decommissioning of the gas heating and connection to the district heating network (to be completed in 2026)
• Mineral insulation of the complete courtyard façade, Blue Angel certified
• Partial insulation of the street-facing façade (stucco façade)
• Insulation of the basement ceiling
• Extension of large balconies on the left side
• New balcony railings, also for existing loggias on the right side
• Upgrade of fire protection (installation of an RWA system and fire protection doors)
• Installation of a video intercom system
• Redesign and renovation of the stairwell as well as the addition of the main staircase
• New custom-made entrance door
• Redesign of the inner courtyard with landscaping, lighting, a terrace, and bicycle storage
Apartment:
• New natural oak parquet laid in a herringbone pattern in the living-dining area, hallway, and bedrooms
• Fine porcelain stoneware in a cement tile look in black and white in the kitchen and bathroom, with large-format wall tiles
• New bathroom with window, featuring a shower with a custom-made glass divider
• Designer fixtures by hansgrohe in matte black
• High-quality sanitary items by Villeroy & Boch and Duravit including a washbasin console
• Towel radiator
• New water and wastewater pipes for the bathroom and kitchen
• New full-span cassette doors with stile door handles
• New triple-glazed wood-aluminum windows
• Window sills in natural stone (marble and Belgian Blue Stone)
• New apartment entrance door RC2, climate class 3, sound insulation class 3
• Large balcony facing the inner courtyard
• Video intercom
• Elevator
• Laundry room
• Bicycle storage
• Basement storage room
An underground parking space in an underground garage on the same street can optionally be taken over.
Property characteristics
| Age | Over 5050 years |
|---|---|
| Condition | After reconstruction |
| Floor | 2. floor out of 5 |
| EPC | B - Very economical |
| Price per unit | €8,493.51 / m2 |
| Available from | 28/04/2026 |
|---|---|
| Layout | 3+1 |
| Listing ID | 1015250 |
| Usable area | 77 m² |
What does this listing have to offer?
| Balcony | |
| Garage | |
| MHD 4 minutes on foot |
| Basement | |
| Lift |
What you will find nearby
Still looking for the right one?
Set up a watchdog. You will receive a summary of your customized offers 1 time a day by email. With the Premium profile, you have 5 watchdogs at your fingertips and when something comes up, they notify you immediately.














