House for sale 7+1 • 247 m² without real estatePflasterwiese 7, , Hesse
Pflasterwiese 7, , HessePublic transport 3 minutes of walking • Parking • GarageHouse with Great Potential in a Quiet Location
For sale is a solid detached house built in 1971 on a generous 875 m² plot in Walsdorf, one of the most sought-after districts of Idstein in the Taunus region. This is the former home of an inventor who registered over 100 patents in the field of battery research and continued to pursue his passion well into his later years.
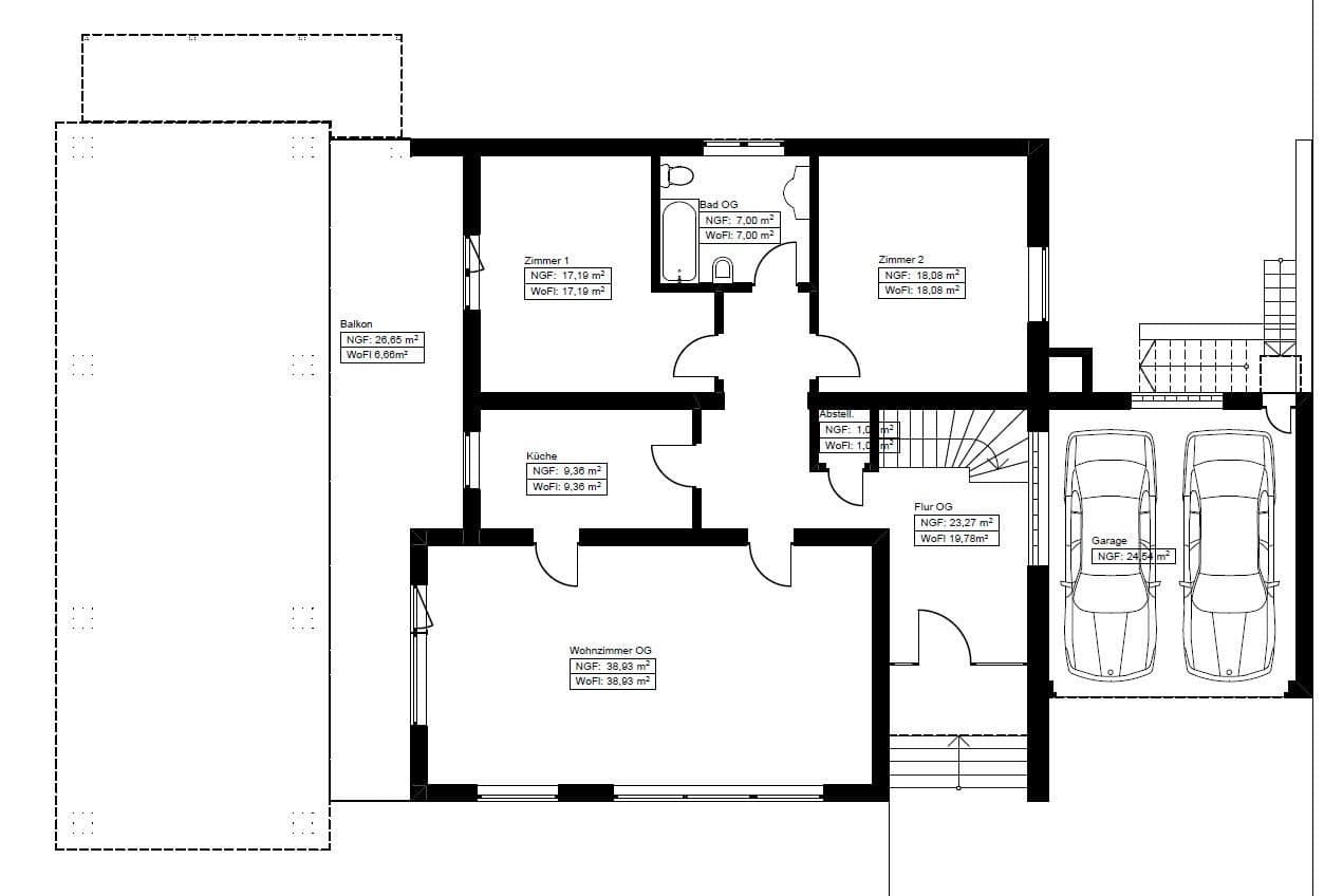
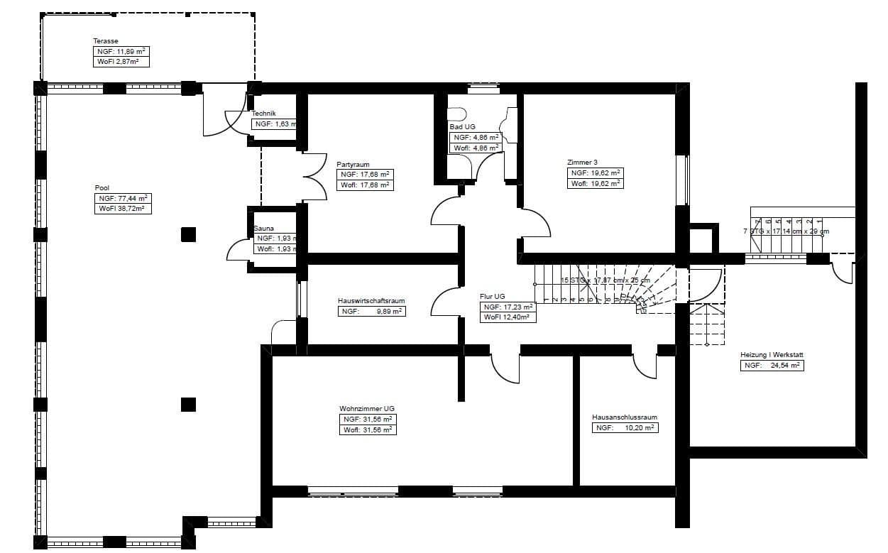
The house offers approximately 247.78 m² of living space (including a heated pool room of 77.44 m², which is only partially counted). The net floor area amounts to 542.59 m² and additionally comprises a terrace, balcony, as well as an undeveloped attic with a net floor area of 148 m² and a potential additional living space of about 93.8 m². There is an opportunity here to create further individual living space – ideal for a large family or home office solutions.
Special Highlights:
- Heated pool room – a genuine bonus for relaxation and leisure all year round
- Spacious double garage (24.54 m²)
- Roof with insulated roof area and double glazing from around 1999/2000
- Gas central heating
The interior of the house remains largely in its original condition, offering room for a modern refurbishment according to your own ideas. The undeveloped attic awaits the implementation of your ideas.
Location and Surroundings:
Walsdorf is located in a quiet yet central area in the Taunus. You enjoy the benefits of a well-established village with good infrastructure and are just a short drive from Idstein (historic old town with castle and half-timbered houses), Wiesbaden, or Frankfurt (approximately 40–50 minutes drive). The surroundings are characterized by forests, meadows, and hiking trails in the Rhein-Taunus Nature Park – perfect for nature lovers and active families.
Additionally, there is a golf course and an equestrian center in the immediate vicinity. The property offers plenty of space for a garden, play areas, and private retreats.
This property is ideal for buyers seeking a solid masonry house with great potential, who are ready to modernize it according to their wishes. The combination of a large plot, pool, and development possibilities in the attic makes it a rare opportunity in this area.
Property characteristics
| Age | Over 5050 years |
|---|---|
| Condition | Good |
| Listing ID | 1015217 |
| Usable area | 247 m² |
| Total floors | 2 |
| Available from | 26/04/2026 |
|---|---|
| Layout | 7+1 |
| EPC | G - Extremely uneconomical |
| Land space | 875 m² |
| Price per unit | €2,753.04 / m2 |
What does this listing have to offer?
| Balcony | |
| Garage | |
| MHD 3 minutes on foot |
| Basement | |
| Parking | |
| Terrace |
What you will find nearby
Still looking for the right one?
Set up a watchdog. You will receive a summary of your customized offers 1 time a day by email. With the Premium profile, you have 5 watchdogs at your fingertips and when something comes up, they notify you immediately.




























