
Flat to rent • 71 m² without real estateBremerhaven Geestendorf Bremen 27570
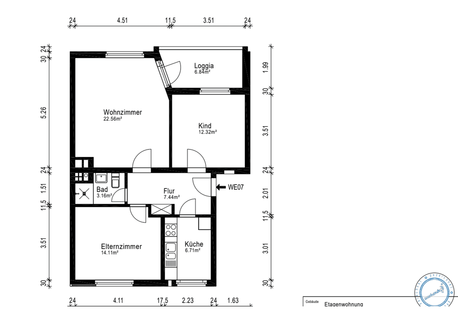
Bremerhaven Geestendorf Bremen 27570Public transport 1 minute of walkingBright 3-room apartment on the 3rd floor on the left side of a well-maintained multi-family house impresses with its practical floor plan and suitability for shared living, offering approximately 70 m² of living space.
The layout is ideal for a shared apartment, as all rooms are well-proportioned and separately accessible:
• Spacious living room (approx. 22.56 m²) – perfect as a common area or large shared room
• Bedroom (approx. 14.11 m²)
• Children's/office room (approx. 12.32 m²) – ideal as an additional shared room or home office
The available space is complemented by a separate kitchen, a bathroom, and a large loggia that provides extra comfort – ideal for relaxed evenings or spending time together.
Thanks to the thoughtful layout, the apartment is perfectly suited for:
Shared apartments (2–3 people)
Additionally, the apartment comes with a storage room in the basement as well as a large attic compartment, offering extra storage space.
The well-maintained multi-family house comprises a total of 8 residential units, ensuring a pleasant and manageable community.
The property is located on Kehdinger Straße in the popular Geestemünde district of Bremerhaven. The location is characterized by a central yet quiet residential atmosphere. The Holzhafen, the church, and the weekly market are just around the corner.
The 3-room apartment on the 3rd floor features functional and proven amenities and has recently been completely refreshed:
- Complete electrical system 2025
- New bathroom 2025
- Newly renovated flooring and walls 2025
- Fitted kitchen
New occupancy after renovation.
A large attic compartment and basement storage space are also included with the apartment.
Please, no inquiries from real estate agents!
Property characteristics
| Age | Over 5050 years |
|---|---|
| Fully furnished | Unfurnished |
| Listing ID | 1015205 |
| Usable area | 71 m² |
| Available from | 22/04/2026 |
|---|---|
| Floor | 3. floor |
| EPC | D - Less economical |
| Price per unit | €12.68 / m2 |
What does this listing have to offer?
| Balcony | |
| MHD 1 minute on foot |
| Basement |
What you will find nearby
Still looking for the right one?
Set up a watchdog. You will receive a summary of your customized offers 1 time a day by email. With the Premium profile, you have 5 watchdogs at your fingertips and when something comes up, they notify you immediately.









