Commercial property to rent • 1 m² without real estateIm Tiefenbruch 5, , Lower Saxony
Im Tiefenbruch 5, , Lower SaxonyPublic transport 2 minutes of walkingIn the commercial area North in Lehrte, various warehouse halls and XXL garages are being built with excellent motorway access.
IMPORTANT
These are not simple prefabricated halls but solidly constructed units made of aerated concrete (24–30 cm wall thickness). The roof is made of 12 cm thick, insulated sandwich panels – ideal for a balanced indoor climate.
General Information:
- Fully paved driveway
- Ground-level access to the halls/garages
- Turning space available
- Video surveillance
- 24/7 access possible
- Excellent motorway connections
- Illuminated property
Please review the features of the garages and the halls with offices.
The following units are available:
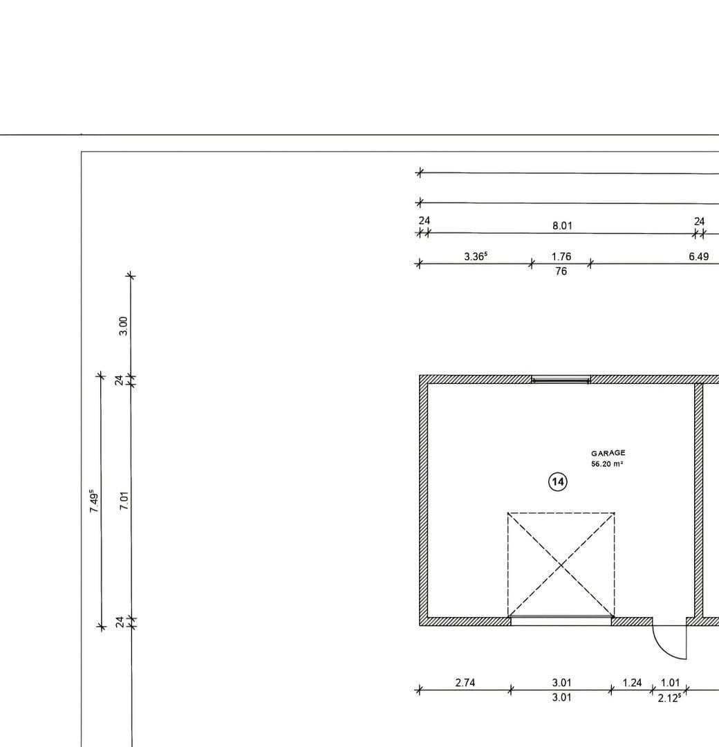
XXL WAREHOUSE / GARAGE TYPE 1:
56 sqm (7 meters deep, 8 meters wide, and approximately 5.50 meters high)
XXL WAREHOUSE / GARAGE TYPE 2:
64 sqm (8 meters deep, 8 meters wide, and approximately 5.50 meters high)
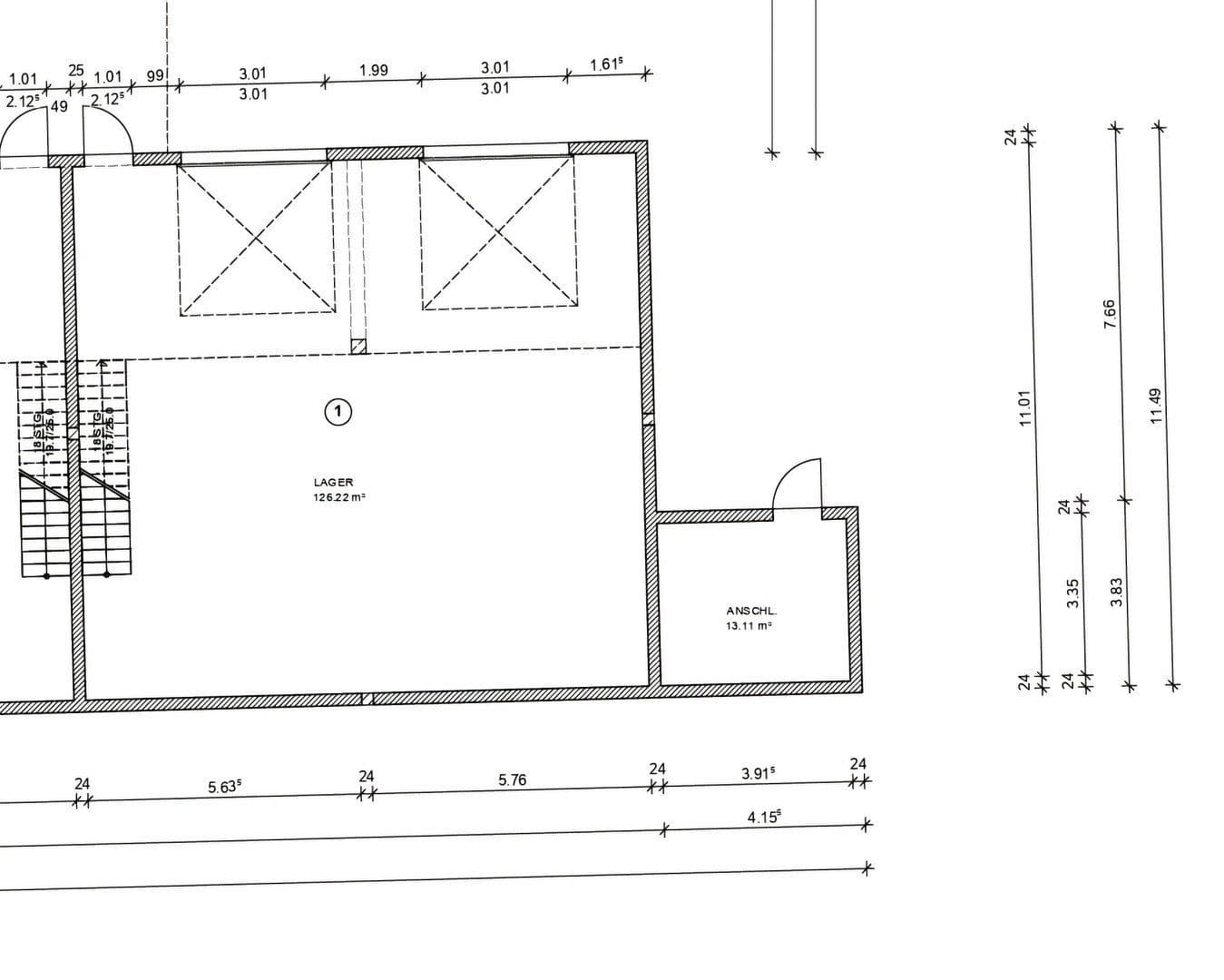
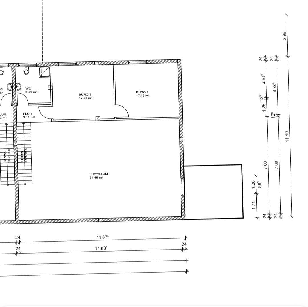
WAREHOUSE WITH OFFICES TYPE 1:
171 sqm (distributed over 126 sqm on the ground floor and 45 sqm on the upper floor)
The upper floor features 2 office rooms and 1 bathroom.
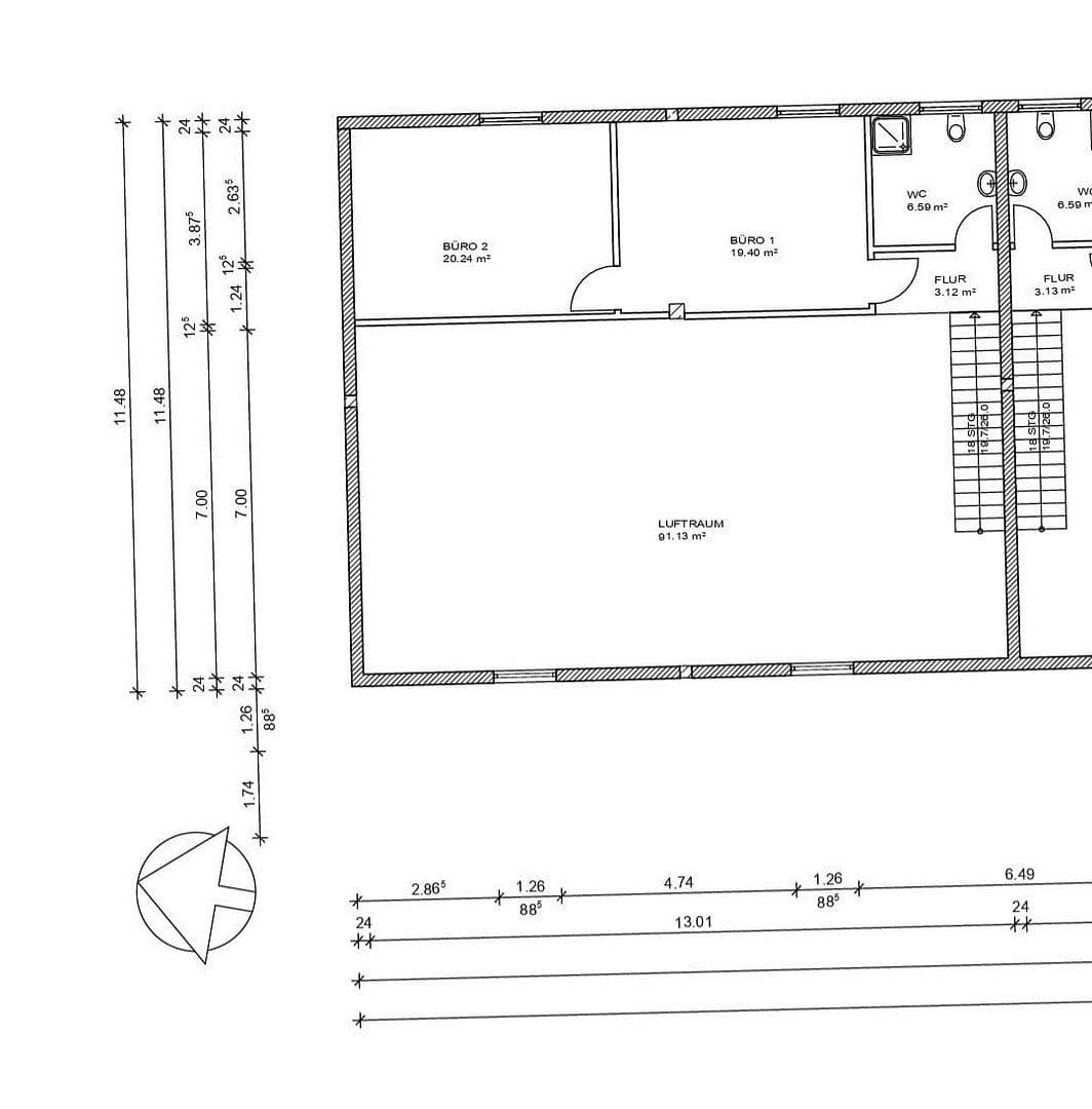
WAREHOUSE WITH OFFICES TYPE 2:
191 sqm (distributed over 141 sqm on the ground floor and 50 sqm on the upper floor)
The upper floor features 2 office rooms and 1 bathroom.
Usage Note:
The units are ideal for storage, logistics, and commercial purposes.
Not permitted are:
- Operation of automotive repair workshops
- Use of lifting platforms
An appointment for a viewing can be arranged upon interest.
Features of XXL WAREHOUSE / GARAGE TYPE 1 and TYPE 2:
- Industrially smoothed concrete floor
- Insulated electric sectional door (clearance: 3.50 meters high and 3 meters wide)
- Additional entrance via a separate door
- Lighting and electrical connection
- Ceiling height over 5 meters
- Insulated roof
- Window positioned over 4 meters high (fixed element)
- Optional sanitary facilities available
WAREHOUSE WITH OFFICES TYPE 1:
171 sqm (distributed over 126 sqm on the ground floor and 45 sqm on the upper floor)
The upper floor features 2 office rooms and 1 bathroom.
WAREHOUSE WITH OFFICES TYPE 2:
191 sqm (distributed over 141 sqm on the ground floor and 50 sqm on the upper floor)
The upper floor features 2 office rooms and 1 bathroom.
Features of WAREHOUSE WITH OFFICES TYPE 1 and TYPE 2:
- Industrially smoothed concrete floor
- 2 insulated electric sectional doors (clearance: 3 meters high and 3 meters wide)
- Additional entrance via a separate door
- Lighting and electrical connection
- Ceiling height of approximately 7 meters
- Insulated roof
- 2 large windows positioned at over 6 meters high (fixed element)
- Bathroom on the first upper floor
- 2 offices on the first upper floor (see floor plan)
- Internet connection in the offices
- Tiled flooring in the offices
- Connections for a kitchenette in the offices
Property characteristics
| Age | Over 5050 years |
|---|---|
| Listing ID | 1015106 |
| Price per unit | €1 / m2 |
| Condition | New-build |
|---|---|
| Land non-residential space | 1 m² |
What does this listing have to offer?
| MHD 2 minutes on foot |
What you will find nearby
Still looking for the right one?
Set up a watchdog. You will receive a summary of your customized offers 1 time a day by email. With the Premium profile, you have 5 watchdogs at your fingertips and when something comes up, they notify you immediately.











