
Flat for sale 2+kk • 53 m² without real estatePavla Beneše, Prague - Letňany
Nabízím k prodeji výjimečný byt 2+kk o podlahové ploše 56,2 m² ve 3.NP moderního bytového domu v klidné a vyhledávané lokalitě Praha 9 – Letňany, ulice Pavla Beneše s cyklostezkou do Lesoparku. Byt je ve velmi dobrém stavu, nadstandardně vybavený a připravený k okamžitému převzetí.
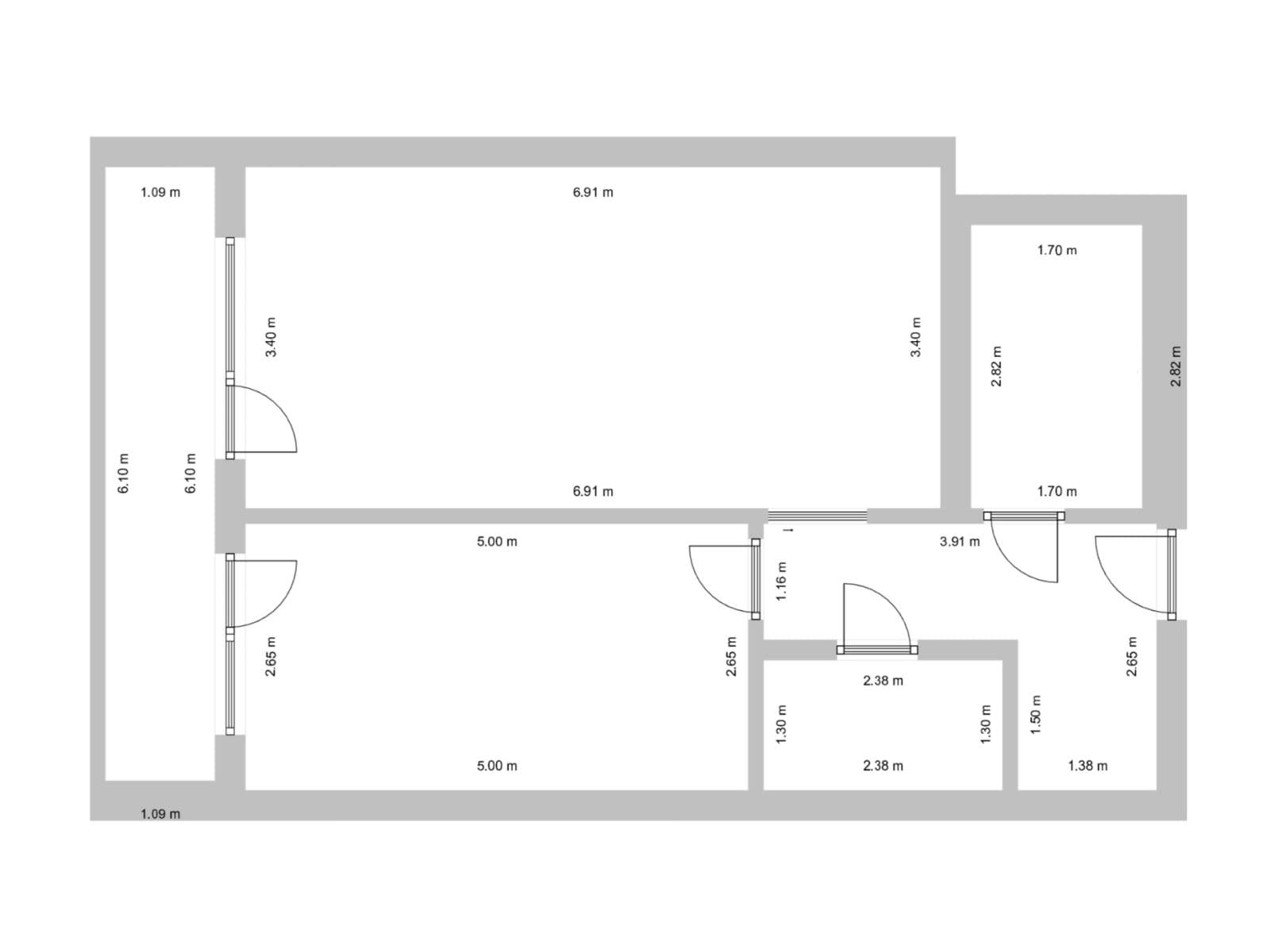
PARAMETRY:
Dispozice: 2+kk
Podlahová plocha: 56,2 m²
Užitná plocha: 52,8 m²
Balkon: 6,7 m² (vstup z obou pokojů)
Pracovna + komora: 3,1 m²
Podlaží: 3. NP
Stav bytu: Velmi dobrý – nadstandardní vybavení
Garáž: ANO – v ceně nemovitosti
Vlastnictví: osobní
Orientace: S/Z
SVJ: 5 800 Kč/měsíc (2 dospělý + 3 děti)
Cena: 8 849 000 Kč
POPIS:
Byt nabízí promyšlenou a funkční dispozici, která maximálně využívá každý metr čtvereční. Vstupní chodba s mnoha úložnými prostory a vestavěnou šatní skříní plynule navazuje na vzdušný obývací pokoj s kamenným obkladem, vinylovou podlahou a obrovskou kuchyní tvaru U s barovým pultem. Z obývacího pokoje máte přímý přístup na prostorný balkon o rozloze 6,7 m². Balkon je přístupný také z ložnice a je největší ze všech bytů 2kk celého domu. Ložnice je dobře prosvětlená a nabízí dostatečný prostor pro šatní skříň a velkou manželskou postel. Součástí bytu je praktická pracovna s komorou (3,1 m²) – ideální pro práci z domova, nebo jako úložný prostor pro sportovní a kutilské vybavení nebo sezónní věci.
Koupelna i kuchyň jsou řešeny v nadstandardním provedení – kvalitní obklady a praktické kalené sklo, přírodní design a kompletní funkční vybavení, které oceníte každý den.
Výjimečný bonus – garáž v ceně nemovitosti.
LOKALITA A OBČANSKÁ VYBAVENOST
Klidná rezidenční část Letňan, přesto s výborná dopravní dostupnost a veškerá občanská vybavenost v dosahu pěší chůze:
• Metro C – Letňany: 4 min busem nebo cca 10 min. pěšky – přímé spojení do centra Prahy
• MHD BUS přímo před domem
• OC Letňany – 8 min chůze
• Mateřská škola: hned vedle domu
• Úřad s policií – naproti přes parkoviště
• Sportovní areály: Jump Park, Horolezecká stěna, plavecký bazén, fitness, tenis, hokej, větrný tunel
• Klidné okolí, rozlehlý Lesopark, vhodné pro rodiny s dětmi i aktivní páry
INVESTIČNÍ POTENCIÁL
Srovnatelné byty v lokalitě se pronajímají za 22 000 až 24 000 Kč/měsíc. Velký zájem párů i singl lidí.
SOUČÁSTÍ PRODEJE
Garáž – v ceně nemovitosti
Pracovna s komorou (3,1 m²)
Balkon 6,7 m² (vstup ze 2 pokojů)
Nadstandardní vybavení bytu
Energetický průkaz PENB (B) k dispozici
KONTAKT A PROHLÍDKY
Prohlídky domlouvám osobně, 7 dní v týdnu včetně večerních hodin. Kontaktujte mě telefonicky nebo přes zprávu – rád zodpovím veškeré dotazy a dohodnu termín prohlídky dle Vašich možností.
Zájem o bydlení v Letňanech je vysoký – neváhejte a ozvěte!
Těší se na Vás
Vojtěch Nováček
Majitel
Property characteristics
| Available from | 21/04/2026 |
|---|---|
| Building construction | Mixed |
| Fully furnished | Fully furnished |
| Listing ID | 1015000 |
| EPC | B - Very economical |
| Usable area | 53 m² |
| Condition | Very good |
|---|---|
| Layout | 2+kk |
| Floor | Ground floor |
| Ownership | Personal |
| Location | Quiet area |
| Price per unit | CZK 166,962.26 / m2 |
Are you choosing a apartment?
Make sure you have all the important information!
What does this listing have to offer?
| Balcony: 6.7 m² | |
| Basement: 3.1 m² | |
| Lift |
| Wheelchair accessible | |
| Garage |
What you will find nearby
Still looking for the right one?
Set up a watchdog. You will receive a summary of your customized offers 1 time a day by email. With the Premium profile, you have 5 watchdogs at your fingertips and when something comes up, they notify you immediately.
























