
House for sale 4+kk • 105 m² without real estate, Bavaria
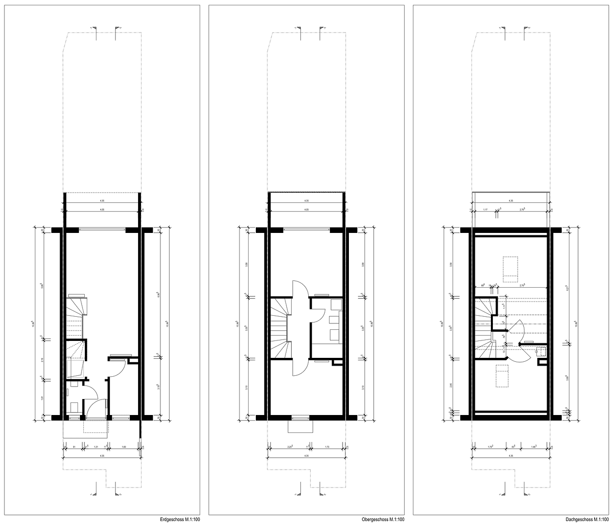
, BavariaPublic transport less than a minute of walking • Parking • GarageCentral and yet quietly situated mid-terrace house with a small garden and a large balcony. The living area totals 104 sqm on a plot of 110 sqm. On the ground floor, you’ll find the living room with access to the terrace and garden, a kitchen, a guest WC, and a storage room. The first floor is divided into two bedrooms, one of which features a large window front and balcony, along with the indoor bathroom. In the attic, there is one large bedroom as well as an additional small room that we use as an office and guest room. There is no basement; however, there is space available in the garden shed and storage room.
In 2024 and 2025, extensive renovation and modernization work was carried out, so you can move in without having to worry about any renovation expenses.
An outdoor parking space is available directly behind the house and is included in the purchase price. It is also possible to purchase an underground parking space (double parker) in the adjacent building for €15,000.
Occupancy could begin on September 1, 2026, or by arrangement.
The house is located in a quiet yet central residential area in Kempten, in a pleasant neighborhood. It is situated south of the city center, just a few steps from the Iller (near the Alte Spinnerei). The street is a cul-de-sac with no through traffic. The pedestrian zone is approximately a 10-minute walk away, and the main train station is less than 15 minutes on foot.
In 2024/25, extensive modernization was carried out, including:
• A new gas heating system by Viessmann
• Parquet flooring that was supplemented, sanded, and newly sealed
• High-quality linoleum flooring in the attic
• A new front door
• A new kitchen with branded appliances (Siemens and Bosch), included in the price
• Two large new roof windows
• New balcony partition walls
All modernization work was performed by local specialist companies. The energy performance certificate was issued before the renovations. Based on our current consumption values, the property would achieve energy efficiency class B.
The price of €569,000 is a minimum price within a capped-price procedure. Offers will only be considered after an on-site viewing, and offers below €569,000 will not be accepted. Inquiries with financing confirmation will be given priority.
Property characteristics
| Age | Over 5050 years |
|---|---|
| Layout | 4+kk |
| EPC | C - Economical |
| Land space | 110 m² |
| Price per unit | €5,419.05 / m2 |
| Condition | After reconstruction |
|---|---|
| Listing ID | 1014461 |
| Usable area | 105 m² |
| Total floors | 3 |
What does this listing have to offer?
| Balcony | |
| Parking | |
| Terrace |
| Garage | |
| MHD 0 minutes on foot |
What you will find nearby
Still looking for the right one?
Set up a watchdog. You will receive a summary of your customized offers 1 time a day by email. With the Premium profile, you have 5 watchdogs at your fingertips and when something comes up, they notify you immediately.












