
Flat to rent 2 bedroom • 82 m² without real estateErich-Böhmke-Str. 28, , Mecklenburg-Vorpommern
Erich-Böhmke-Str. 28, , Mecklenburg-VorpommernPublic transport 3 minutes of walking82 m² with a 10 m² large balcony | Fleischervorstadt | Energy efficiency class A+ | Underfloor heating | Second occupancy
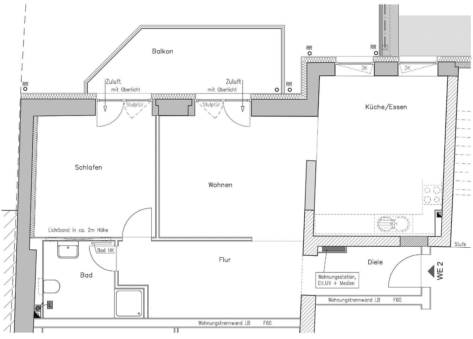
The loft apartment on offer is located on the raised ground floor of a building constructed in 1900 and comprehensively renovated in 2024 in the popular Fleischervorstadt. The renovation was carried out with care and attention to detail: old terrazzo windowsills were reused, newly installed steel beams as well as the rendered masonry of the exterior wall were left exposed. The open-plan kitchen and living area are separated by a historic industrial window, serving as a room divider. A low-maintenance, uniformly flat cement screed combined with underfloor heating provides pleasant warmth.
Both the living room and the bedroom have access to the 10 m² east-facing balcony with morning sun. Floor-to-ceiling curtains allow complete blackout in both the living and sleeping areas. In the hallway, a wall closet extending the full height of the room offers plenty of storage space as well as the possibility to house and connect a washing machine.
The rent is composed as follows:
– Cold rent: 984 €
– The additional costs of 220 € include an equipment surcharge of 80 € (for the fitted kitchen, wall closet in the hallway, custom-made curtains in the living and bedroom), a heating cost prepayment of 30 €, as well as an additional cost prepayment of 200 €.
Perfect for individuals and couples.
Unfortunately not suitable for shared apartments (layout does not allow).
Fleischervorstadt in Greifswald is a popular, quiet district with very good infrastructure and a high quality of life. Shopping opportunities for daily needs as well as doctors and service providers are easily accessible. The public transport network for regional and long-distance travel ensures flexible mobility within the city and beyond. Nearby green spaces and the close proximity to the city center offer a variety of leisure activities.
The apartment features high-end amenities: the fitted kitchen with branded appliances (AEG induction hob, Bosch oven, Bosch Silence dishwasher) has been custom made, and the bathroom offers a barrier-free rain shower with thermostat as well as a washbasin with a metal frame and mirror. A light shelf in the bedroom provides brightness during the day.
It is possible to take over the retro-design refrigerator, the TV with a swiveling wall mount, a kitchen table with chairs, a small desk, and lighting in all rooms for a moderate additional fee from the previous tenant. Details can be discussed in person.
Property characteristics
| Age | Over 5050 years |
|---|---|
| Condition | Very good |
| Floor | 1. floor out of 3 |
| EPC | A - Extremely economical |
| Price per unit | €12 / m2 |
| Available from | 16/05/2026 |
|---|---|
| Layout | 2 bedroom |
| Listing ID | 1014420 |
| Usable area | 82 m² |
What does this listing have to offer?
| Balcony | |
| MHD 3 minutes on foot |
| Basement |
What you will find nearby
Still looking for the right one?
Set up a watchdog. You will receive a summary of your customized offers 1 time a day by email. With the Premium profile, you have 5 watchdogs at your fingertips and when something comes up, they notify you immediately.

























