House for sale • 215 m² without real estateBittlmairstr. 2 Ingolstadt Ingolstadt Bayern 85051
Bittlmairstr. 2 Ingolstadt Ingolstadt Bayern 85051Public transport 3 minutes of walking • ParkingThis modernized triplex represents an attractive investment with stable rental income and low maintenance risks. Thanks to extensive modernization in recent years – especially in 2024 – the property is kept in excellent condition.
The property is fully rented and offers additional development potential through existing graduated lease agreements.
Rental Income:
Current annual net cold rent: approx. €37,200
Features / Advantages:
- Condominium division → individual sale also possible in the future
- Fully rented → immediate income
- Modern fixtures → minimal additional investments required
- Attractive apartment sizes → highly marketable for rentals
- A combination of stability and development potential
The property is located in a sought-after residential area in Ingolstadt, with good infrastructure and stable demand for housing.
Ingolstadt is characterized by a strong economy, particularly due to its proximity to Audi, ensuring sustainable rental appeal.
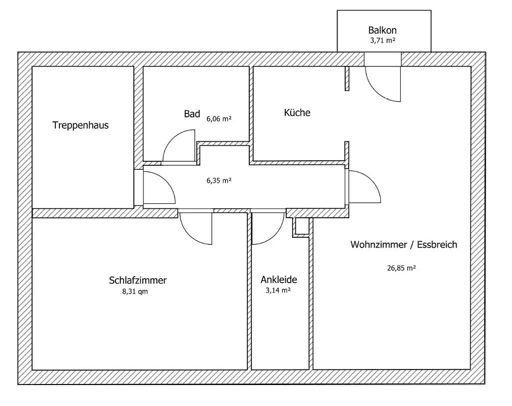
Distribution of the Apartments:
Ground Floor (approx. 75 m²)
• 4 rooms
• Garden usage rights
• Carport parking space
Upper Floor (approx. 75 m²)
• 4 rooms
• Balcony
• Carport parking space
Attic (approx. 56 m², expansion in 2024)
• 2.5 rooms
• Balcony
• Outdoor parking space
Modernizations:
• New gas heating system (Viessmann) – 2021
• Complete attic expansion – 2024
• All bathrooms fully renovated – 2024
• New balconies (steel construction) – 2024
• Partially new windows (ground floor/upper floor) – 2024
• Facade painted – 2024
• No noticeable deferred maintenance.
Property characteristics
| Age | Over 5050 years |
|---|---|
| Condition | After reconstruction |
| Usable area | 215 m² |
| Total floors | 3 |
| Available from | 29/04/2026 |
|---|---|
| Listing ID | 1014393 |
| Land space | 355 m² |
| Price per unit | €4,348.84 / m2 |
What does this listing have to offer?
| Balcony | |
| Parking | |
| Terrace |
| Basement | |
| MHD 3 minutes on foot |
What you will find nearby
Still looking for the right one?
Set up a watchdog. You will receive a summary of your customized offers 1 time a day by email. With the Premium profile, you have 5 watchdogs at your fingertips and when something comes up, they notify you immediately.











