
Flat to rent 3+1 • 93 m² without real estateKöln Weidenpesch Nordrhein-Westfalen 50737
Köln Weidenpesch Nordrhein-Westfalen 50737Public transport 4 minutes of walkingThis high-quality, fully renovated apartment on the first upper floor is presented as a first occupancy after comprehensive modernization and offers a modern home of approximately 96 m² with plenty of light, clear lines, and a well-thought-out layout. Especially ideal for young couples who want to combine urban living with comfort, this apartment provides perfect conditions.
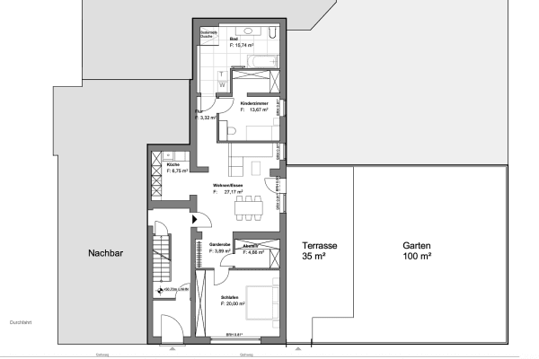
The spacious living and dining area with its open kitchen forms the central hub of the apartment. Large windows create a bright, welcoming atmosphere and an open living space with various design possibilities.
Two well-proportioned bedrooms offer ample space for individual use, whether as a sleeping area, a home office, or a dressing room. A particular highlight is the generous west terrace, accessible from both bedrooms, which invites relaxation, especially in the late afternoon and evening.
The modern daylight bathroom features a level shower and impresses with its clean, timeless design.
High-quality vinyl flooring has been installed throughout the apartment, creating a pleasant living atmosphere while being both low-maintenance and durable.
The building has also been extensively upgraded from an energy perspective. New, efficient uPVC windows, a modern heat pump, and facade insulation ensure a contemporary and energy-efficient living climate.
The apartment is located in Cologne Weidenpesch, a popular district with excellent connections. The nearest train stop is just a few steps away, allowing for quick access to the Cologne city center. Grocery stores and daily amenities are found in the immediate vicinity.
A dedicated parking space is not included with the apartment; however, public parking is available nearby.
An individual basement storage room will also be allocated to the apartment in the future.
The apartment is available for immediate occupancy and offers ideal conditions for anyone looking to move into a modern home without the need for renovations.
The apartment’s location in Cologne Weidenpesch impresses with excellent infrastructure and optimal connectivity to the Cologne city center. Situated along Neusser Straße, it offers a variety of shops, restaurants, and everyday facilities all within walking distance.
Supermarkets such as Rewe and Lidl are just a few minutes’ walk away, ensuring convenient everyday shopping. Numerous restaurants, cafés, and other service providers contribute to a vibrant atmosphere and a high quality of living.
Public transportation is ideally accessible, with Scheibenstraße station reachable in only about two minutes on foot. From there, KVB lines 12 and 15 offer a fast and direct connection to the Cologne city center, making both the city center and other districts easily accessible in a short time.
The Ginsterpfad nature reserve is also quickly accessible, providing a welcome break in a natural setting.
Overall, the location offers a successful combination of urban living, excellent accessibility, and an established, lively neighborhood.
The apartment’s finishes meet modern new-build standards and were implemented in a high-quality, timeless manner during the complete renovation. Bright rooms, clear lines, and a cohesive selection of materials create a pleasant living experience.
Modern vinyl flooring has been laid throughout the apartment, not only providing visual appeal but also being particularly low-maintenance and durable. Large windows allow abundant daylight into the rooms and enhance the friendly living atmosphere.
The open-plan living and dining area with an integrated kitchen zone offers ideal conditions for personalized kitchen design and forms the heart of the apartment.
The daylight bathroom is modernly equipped with a level shower and contemporary sanitary fixtures; its clear design harmoniously integrates into the overall aesthetic of the apartment.
Both bedrooms impress with their ample size and direct access to the spacious west terrace, which adds extra living comfort to the outdoor area.
As part of the energy refurbishment, new, efficient uPVC windows were installed along with a modern heat pump. Combined with the facade insulation, this creates an energy-efficient and future-oriented complete package.
A personal basement storage room will be allocated to the apartment in the future, providing additional storage space.
Property characteristics
| Age | Over 5050 years |
|---|---|
| Layout | 3+1 |
| Listing ID | 1014082 |
| Usable area | 93 m² |
| Condition | After reconstruction |
|---|---|
| Floor | 1. floor |
| EPC | D - Less economical |
| Price per unit | €16 / m2 |
What does this listing have to offer?
| Basement | |
| Terrace |
| MHD 4 minutes on foot |
What you will find nearby
Still looking for the right one?
Set up a watchdog. You will receive a summary of your customized offers 1 time a day by email. With the Premium profile, you have 5 watchdogs at your fingertips and when something comes up, they notify you immediately.













