House to rent 5+1 • 153 m² without real estateBoschstraße 6 Heldenstein Heldenstein Bayern 84431
Boschstraße 6 Heldenstein Heldenstein Bayern 84431Public transport 8 minutes of walking • ParkingBelow is the English translation of the text:
This high-quality, fully basement-equipped house built with solid construction combines two identical residential units, each with 153 m² of living space. One unit faces southwest and the other southeast – both impress with modern living comfort and a well-thought-out layout.
Each unit features its own entrance, a spacious garden, and a sunny south terrace – much like a semi-detached house.
Both units are currently being completed and will be available for rent from 01.06.2026.
HIGHLIGHTS
· Spacious living and dining area with an open kitchen (48 m²) – perfect for living and cooking
· Beautiful exposed rafter ceiling made of waxed spruce wood with a roof window – creating a warm atmosphere and natural light
· Energy efficiency class A+: Modern heat pump, underfloor heating, as well as a PV system with an optional tenant electricity model (GGV)
· Central ventilation system with heat recovery – fresh air all year round, ideal for allergy sufferers
· LED recessed spotlights in the kitchen, entrance area, cloakroom, and guest toilet
· Electric shutters on all windows – app control possible
· High-quality vinyl design flooring in oak look and large-format beige tiles
· Preparation for a wall box for e-mobility
· Water softening system for gentle water
· Fiber-optic Internet
· No commission – no brokerage fees
GROUND FLOOR
A private entrance door on the north side leads you into a bright entrance area, equipped with a practical cloakroom niche. The ground floor offers a guest WC with a daylight window and rimless WC, as well as a room that can be flexibly used according to your wishes. From the large living and dining area, you have direct access to the sunny south terrace.
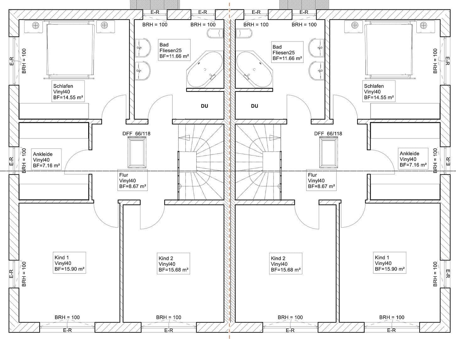
UPPER FLOOR
An open spiral staircase made of lacquered beech wood leads you up to the upper floor. The roof window provides pleasant daylight. Three bedrooms, each approximately 15 m², invite you to relax. Another room can be used flexibly, e.g., as a dressing room. The bathroom features large-format tiles, a bathtub, a walk-in shower with storage areas, two washbasins, and a towel dryer. A rimless WC completes the modern and easy-to-maintain equipment.
BASEMENT
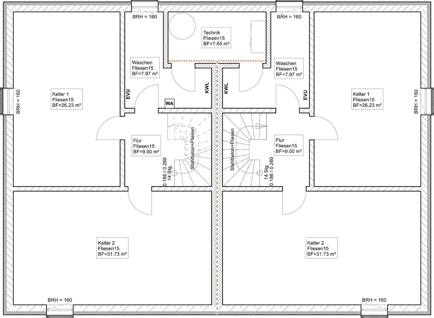
The heat pump in the shared technical room supplies both residential units with hot water and heating. The water softening system is also located there.
The basement offers each unit about 75 m² of usable private space and is fully tiled. In the utility room, you will find the central ventilation system, a utility sink, and connections for a washing machine and dryer. Two generously sized storage rooms provide plenty of space for everything a home brings.
TERRACE, GARDEN & DRIVEWAY
The outdoor facilities will be completed by the end of April. The driveway will be paved. A sunny south terrace invites you to relax – equipped with outdoor lighting, an electrical connection, and a water connection for garden irrigation. The garden offers plenty of room for your time off in nature:
· Southwest unit: approx. 155 m² garden with a 15 m² terrace
· Southeast unit: approx. 190 m² garden with a 15 m² terrace
The house is located in a quiet residential area. Heldenstein is a modern community of 3,000 inhabitants in the district of Mühldorf am Inn, combining rural tranquility with urban proximity.
With the A 94 motorway, Munich is conveniently reachable in about 35 minutes. For those who prefer the train, Munich Ostbahnhof is about 60 minutes away.
For daily needs, everything is well provided. An EDEKA with a butcher’s, bakery, and a cozy inn is located right in the town. Sports fields, a daycare center, kindergarten, and primary school are partly within walking distance, making Heldenstein a particularly family-friendly home. The nearby towns of Ampfing, Waldkraiburg, and Mühldorf also offer a comprehensive range of doctors, a hospital, supermarkets, banks, restaurants, and much more.
DOORS
The aluminum front door with a glass insert is equipped with a doorbell button. A video doorbell is prepared. Inside the house, white interior doors create a bright and friendly atmosphere.
WINDOWS
White plastic windows and a roof window with triple glazing ensure optimal thermal insulation.
CONNECTIONS
Fiber-optic Internet connection with a LAN port in the living room (2×), hallway, home office, and all bedrooms. SAT connections are prepared in the bedrooms and in the living room.
FLOOR COVERINGS
High-quality vinyl design flooring in oak look in the upper floor, home office, as well as in the living and dining areas.
Large-format beige tiles in the entrance area, kitchen, bathroom, and guest WC. The basement staircase and the basement are entirely tiled.
PARKING SPACES
Each half of the house comes with two parking spaces and preparation for an 11-kW wall box.
I look forward to your inquiry! Please feel free to contact me via message.
Important:
· Non-smokers preferred; unfortunately, dogs are not permitted.
· I am looking for tenants who appreciate a long-term home – both parties agree to forgo any termination of the tenancy agreement for 2 years.
Net cold rent: €1660 per month
Advance on additional costs: €280 per month
Two parking spaces: €25 per month each
Rental deposit: €4980 (3 months’ net cold rent)
Broker inquiries are not welcome.
Property characteristics
| Age | Over 5050 years |
|---|---|
| Condition | New-build |
| Listing ID | 1014069 |
| Usable area | 153 m² |
| Total floors | 2 |
| Available from | 01/06/2026 |
|---|---|
| Layout | 5+1 |
| EPC | A - Extremely economical |
| Land space | 684 m² |
| Price per unit | €10.85 / m2 |
What does this listing have to offer?
| Basement | |
| MHD 8 minutes on foot |
| Parking | |
| Terrace |
What you will find nearby
Still looking for the right one?
Set up a watchdog. You will receive a summary of your customized offers 1 time a day by email. With the Premium profile, you have 5 watchdogs at your fingertips and when something comes up, they notify you immediately.





















