
Flat for sale 2 bedroom • 49 m² without real estateArnethgasse 63 Wien 16. Bezirk Wien 1160
Arnethgasse 63 Wien 16. Bezirk Wien 1160Public transport 2 minutes of walking • LiftThis high-quality furnished apartment is located on the 3rd floor (with lift) and is currently being completed. It will be available freshly renovated from around mid-April. Viewings are already possible, and modification requests can still be considered after clarification.
The photos are taken from an already finished apartment with the same furnishings.
As part of the comprehensive renovation, all the conduits (electrical and plumbing) will be replaced, new interior doors installed, and a stylishly tiled bathroom—with a separate WC—will be newly outfitted; both feature modern 30 × 60 cm porcelain stoneware tiles.
The living areas are presented with elegant country-style hardwood parquet flooring, which creates a warm and inviting atmosphere. New triple-glazed windows as well as modern LED ceiling lighting in the entrance hall, kitchen, and bathroom complete the well-thought-out interior design.
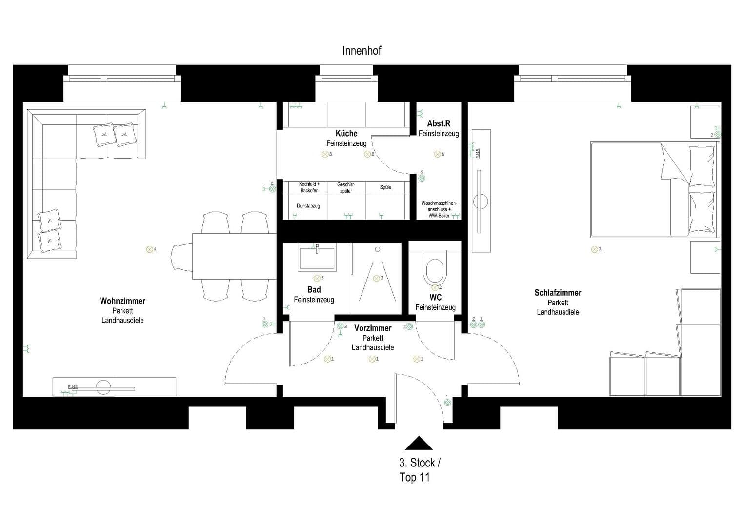
The layout is clearly structured: The rooms are centrally accessed from the entrance area. From there, you can directly access the bedroom and living room as well as the bathroom and WC. The kitchen is connected to a storage room with a washing machine connection, providing additional storage space.
The practical aspects also impress: The apartment comes with a spacious basement compartment for extra storage.
The kitchen is equipped with all necessary connections so that you can realize your personal kitchen vision. A kitchen design can be provided upon request.
The property at Arnethgasse 63 boasts an excellent connection to public transportation: several public transport options are available within walking distance, ensuring direct access to the city center and other districts.
Transport connections:
Approximately 150 m away, you can reach the tram stop “Redtenbachergasse,” which will take you directly to the city center (Schottentor).
Bus lines 46A and 46B quickly connect you to the nearby recreational area Wilheminenberg.
Furthermore, the subway station and commuter rail station Ottakring is only a few minutes' walk away (around 500 m). In just seven minutes of travel time, you can reach the Vienna West train station and the shopping street Mariahilferstraße. In only 14 minutes, you can reach the city center (Station Stephansplatz) without any transfers.
Shopping facilities in the vicinity:
Just a few minutes' walk away are Ottakringer Straße and Thaliastraße, the most popular local shopping streets in the 16th district. There you will find a wide range of shopping opportunities. Supermarkets such as Denns BioMarkt, Spar, Billa, and Penny are within less than a ten-minute walk. Drugstores, sports shops, restaurants, cafés, and a fruit and vegetable market are also within walking distance.
Recreational area Ottakringer Wald:
In the immediate vicinity of the apartment, there are plenty of green retreats, such as the Ottakringer Forest with its well-developed network of paths, and access to City Hiking Trail 4. This recreational area offers a variety of forest playgrounds, barbecue spots, and attractions, for example, Wilhelminenberg Castle or the Jubiläumswarte.
• HARO parquet flooring made of oak wood with a country-style plank look
• Modern porcelain stoneware in the bathroom, WC, kitchen, and storage room
• Ceiling lighting with LED spots in the entrance hall, bathroom, and kitchen
• New triple-glazed windows
• LAUFEN Pro / Villeroy Boch branded sanitary ceramics
• Shower system by Grohe with spray thermostat, rain shower, and hand shower
• Shower partition glazing with nano coating and safety glass (tempered)
• Switches, sockets, and network ports by Berker
MNPV GmbH
Real Estate Purchase and Sale,
Rental, and Real Estate Consulting
FN 649248b
Company Register Court: Commercial Court Vienna
Email Contact: office (at) mnpv.at
Property characteristics
| Age | Over 5050 years |
|---|---|
| Layout | 2 bedroom |
| Listing ID | 1013920 |
| Price per unit | €5,204.08 / m2 |
| Condition | After reconstruction |
|---|---|
| Floor | 3. floor out of 5 |
| Usable area | 49 m² |
What does this listing have to offer?
| Basement | |
| MHD 2 minutes on foot |
| Lift |
What you will find nearby
Still looking for the right one?
Set up a watchdog. You will receive a summary of your customized offers 1 time a day by email. With the Premium profile, you have 5 watchdogs at your fingertips and when something comes up, they notify you immediately.












