
Flat to rent 2 bedroom • 41 m² without real estateTempelhofer Str. 8, , Brandenburg
Tempelhofer Str. 8, , BrandenburgPublic transport 4 minutes of walking • ParkingHere is the translated text:
In this new construction project, we are presenting a modern residential area consisting of a total of 92 residential units distributed among 23 two-story houses. The complex is generously designed and blends harmoniously into a green, quiet environment.
The apartments impress with a thoughtful, everyday-friendly design and offer a pleasant living experience with plenty of light, space, and privacy. Each unit features its own garden area, providing additional green open space – ideal for relaxing, playing, or enjoying cozy moments outdoors.
For added comfort, each apartment is allocated its own parking space, making parking at home hassle-free.
The entire project is implemented to the modern KfW-40 QNG+ standard, thereby meeting the highest demands on energy efficiency and sustainability. This ensures a pleasant indoor climate and contemporary living comfort while keeping energy consumption low.
Overall, this creates a quiet, family-friendly living environment that combines modern living with a connection to nature – ideal for anyone who values comfort, green spaces, and a relaxed residential atmosphere.
The new apartments are located in a quiet, established residential area in Zossen. The surroundings are characterized by single-family homes, plenty of greenery, and a pleasant, family-friendly neighborhood combined with excellent infrastructure.
A particular advantage of the location is the excellent local supply: a Netto supermarket is located directly opposite, while a kindergarten is conveniently accessible on foot in less than 100 meters – ideal for everyday life.
Zossen is situated only about 20–30 km south of the Berlin city limits, offering a perfect combination of nature-oriented living and good connectivity to the capital. Commuters benefit from the proximity to the B96 and the A13 motorway, through which Berlin and BER Airport can be reached in a short time.
With the improved rail connection in 2025 (including an additional curve in regional traffic), public transport accessibility has significantly improved. As a result, BER Airport can now be reached from Zossen in approximately 40 minutes, making the location particularly attractive for commuters and frequent travelers.
The wider area also offers schools, doctors, pharmacies, and additional shopping facilities, ensuring excellent infrastructure.
The idyllic surroundings, with numerous green spaces and lakes, offer high recreational value and invite you to enjoy walks, sports activities, or simply unwind after a stressful day at work.
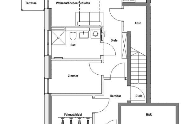
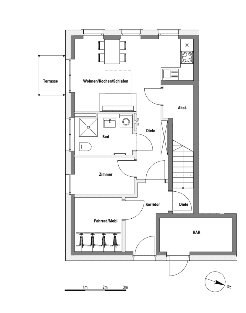
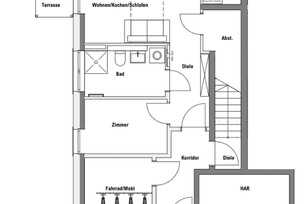
- Terrace with an adjacent, separate rental garden
- Outdoor parking space
- Including fitted kitchen
- Storage room in the apartment
- External shutters at all windows
- Triple-glazed windows
- Parquet flooring, tiled bathroom
- Underfloor heating in all rooms
- Ground-level accessible bicycle room
The depiction of the apartments often includes images of an exemplary apartment. Any changes of any kind are reserved. All information provided in text and images is for preliminary information only and does not constitute a contractual offer or a guarantee of the stated features.
Property characteristics
| Age | Over 5050 years |
|---|---|
| Condition | New-build |
| Listing ID | 1013866 |
| Usable area | 41 m² |
| Available from | 01/06/2026 |
|---|---|
| Layout | 2 bedroom |
| EPC | A - Extremely economical |
| Price per unit | €13.39 / m2 |
What does this listing have to offer?
| Parking | |
| Terrace |
| MHD 4 minutes on foot |
What you will find nearby
Still looking for the right one?
Set up a watchdog. You will receive a summary of your customized offers 1 time a day by email. With the Premium profile, you have 5 watchdogs at your fingertips and when something comes up, they notify you immediately.






