
Flat to rent 3+1 • 63 m² without real estateTempelhofer Str. 8, , Brandenburg
Tempelhofer Str. 8, , BrandenburgPublic transport 4 minutes of walking • ParkingThis modern new-build residential development consists of a total of 92 housing units, distributed across 23 two-storey buildings. The project is generously planned and blends harmoniously into a green and quiet surrounding environment.
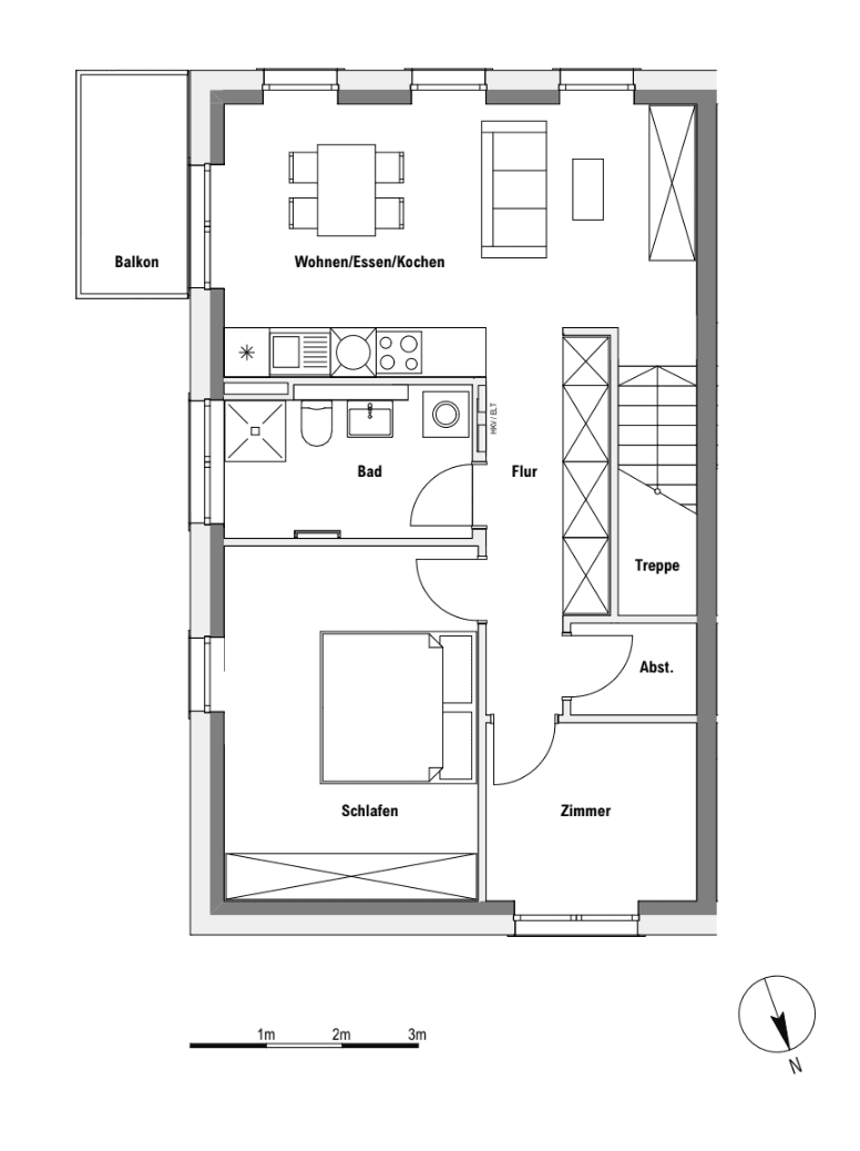
The apartments impress with a well-thought-out, practical layout designed for everyday living, offering a comfortable living experience with plenty of light, space, and privacy. Each unit comes with its own private garden area, providing additional outdoor space – ideal for relaxing, playing, or enjoying peaceful moments outside.
For added convenience, each apartment is assigned a dedicated parking space, ensuring easy and hassle-free parking directly at the residence.
The entire project is being developed in accordance with the modern KfW 40 QNG+ standard, meeting the highest requirements for energy efficiency and sustainability. This ensures a pleasant indoor climate and contemporary living comfort combined with low energy consumption.
Overall, the development creates a quiet, family-friendly residential environment that combines modern living with a close connection to nature – ideal for those who value comfort, green spaces, and a relaxed living atmosphere.
The new-build apartments are located in a quiet and well-established residential area in Zossen. The surroundings are characterised by detached houses, plenty of greenery, and a pleasant, family-friendly neighbourhood combined with excellent infrastructure.
A particular advantage of the location is the outstanding local amenities: a Netto supermarket is located directly opposite the property, while a kindergarten is within less than 100 metres and easily reachable on foot – ideal for everyday convenience.
Zossen lies only around 20–30 km south of Berlin’s city limits, offering an excellent combination of peaceful, nature-oriented living and convenient access to the capital. Commuters benefit from the proximity to the B96 federal road and the A13 motorway, ensuring quick connections to Berlin and Berlin Brandenburg Airport (BER).
Thanks to the improved rail connection introduced in 2025 (including an additional loop in regional transport services), public transport accessibility has been further enhanced. As a result, Berlin Brandenburg Airport (BER) can now be reached from Zossen in approximately 40 minutes, making the location particularly attractive for commuters and frequent travellers.
In the wider area, residents will also find schools, doctors, pharmacies, and additional shopping facilities, ensuring a well-developed and convenient infrastructure.
The idyllic surroundings, with numerous green spaces and lakes, offer a high recreational value and invite residents to enjoy walks, sports activities, or simply unwind after a busy workday.
- Terrace with an adjacent private rental garden
- Outdoor parking space
- Storage room within the apartment
- External blinds on all windows
- Triple-glazed windows
- Wooden flooring, tiled bathroom
- Underfloor heating in all rooms
- Ground-level bicycle storage room
Illustrations of the apartments often feature images of an exemplary apartment. Changes of any kind are subject to reservation. All information in text and image is provided exclusively for preliminary information purposes and does not constitute a contractual offer or a guarantee of features.
Property characteristics
| Age | Over 5050 years |
|---|---|
| Condition | New-build |
| Floor | 1. floor |
| EPC | A - Extremely economical |
| Price per unit | €13.51 / m2 |
| Available from | 01/06/2026 |
|---|---|
| Layout | 3+1 |
| Listing ID | 1013859 |
| Usable area | 63 m² |
What does this listing have to offer?
| Balcony | |
| MHD 4 minutes on foot |
| Parking |
What you will find nearby
Still looking for the right one?
Set up a watchdog. You will receive a summary of your customized offers 1 time a day by email. With the Premium profile, you have 5 watchdogs at your fingertips and when something comes up, they notify you immediately.






