Flat for sale 4+1 • 102 m² without real estate, Lower Saxony
Ground Floor – Condominium with a Beautiful Garden and Semi-Detached House Character on a Large Plot in Weyhe-Melchiorhausen!
Property Overview
Property Type: Condominium with semi-detached house character (in a 3-party condominium community)
Level: Ground floor
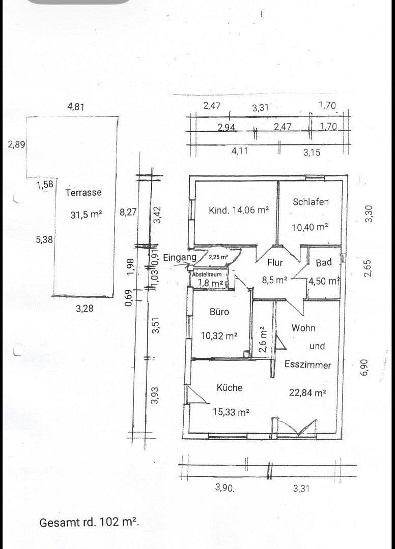
Living Area: approx. 102 m² (Terrace approx. 30 m², partly covered + large outbuilding with parking possibility)
Plot: 727 m²
Rooms: 4
Year Built: approx. 1910
Partially basements
Renovation: Complete in 2017
(all windows replaced, gas condensing boiler with underfloor heating including new screed and floor insulation, ceilings insulated and suspended, bathroom including all pipes renewed, kitchen including pipework renewed, electrical system extended, additional outlets installed)
Large outbuilding, which can also serve as a double carport
Availability: by arrangement
Property Description:
This exceptional condominium with semi-detached house character is located on the ground floor of a former farmhouse built around 1910 in Weyhe-Melchiorshausen. Thanks to the generous plot size of 727 m² and its separate character, the property offers a living experience that is more reminiscent of a single-family home than a typical apartment. The garden is for the exclusive use of the apartment and is not a shared area.
The apartment features approximately 102 m² of living space, distributed over four rooms, a kitchen, and a full bathroom with a window, as well as a partly covered terrace.
In 2017, the property underwent a comprehensive renovation, including heating technology with underfloor heating and a new screed, all windows, bathroom, and kitchen including all connections.
Historic charm meets modern living comfort.
The apartment is currently occupied (but not rented) and is ideal for owner-occupiers; however, renting out is also conceivable.
Features
• Kitchen with fitted kitchen
• Full bathroom with window and tiling
• Parquet and vinyl floors
• Gas heating (condensing boiler replaced in 2017) with underfloor heating and floor insulation including new screed and foundation
• Partially basement (approx. 10 m²)
• Bathroom with whirlpool tub and toilet with shower
• Open kitchen with Grohe Blue water dispenser/drinking water cooler (filtered, chilled water with and without carbonation)
• Complete renovation in 2017
Energy Certificate
The energy certificate (issued before the extensive renovations) is still valid and will be provided upon request. The gas consumption is approximately 11,500–12,000 kWh/year.
Special Features
• Condominium with a house-like character
• Spacious plot – a rare combination
• Modern features after a comprehensive renovation
• A great deal of privacy (with plenty of nature in the immediate surroundings)
• Ideal for families, couples, or discerning owner-occupiers
Other Information
All information has been compiled to the best of our knowledge and is provided for your convenience. No liability is assumed for completeness. Changes and prior sale are reserved.
Since the property is still occupied, some images have been partly cleaned of personal items (using AI) to protect privacy and better showcase the full room sizes.
The address and a detailed exposé with additional photos can be provided upon receipt of your contact details including telephone number and address.
Please check if the location suits your needs. However, we kindly ask that you respect the privacy of the current residents.
Location Description:
The property is located in Weyhe-Melchiorshausen, a popular residential area in the direct vicinity of Bremen. The street is long, offering a quiet, established environment with good infrastructure. Shopping opportunities, schools, kindergartens, and medical care are all quickly accessible.
If you love a quiet, rural location yet appreciate good connectivity, this is the perfect place for you.
Property characteristics
| Age | Over 5050 years |
|---|---|
| Layout | 4+1 |
| Usable area | 102 m² |
| Condition | Good |
|---|---|
| Listing ID | 1013746 |
| Price per unit | €2,892.16 / m2 |
What does this listing have to offer?
| Wheelchair accessible | |
| Parking | |
| Terrace |
| Basement | |
| MHD 2 minutes on foot |
What you will find nearby
Still looking for the right one?
Set up a watchdog. You will receive a summary of your customized offers 1 time a day by email. With the Premium profile, you have 5 watchdogs at your fingertips and when something comes up, they notify you immediately.
























