
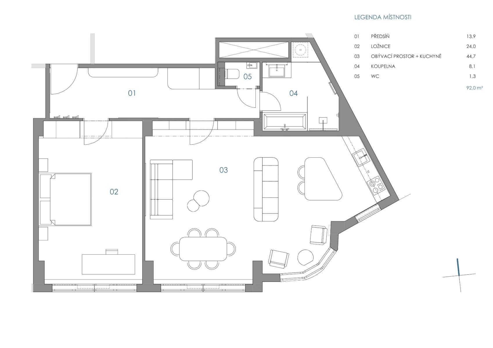
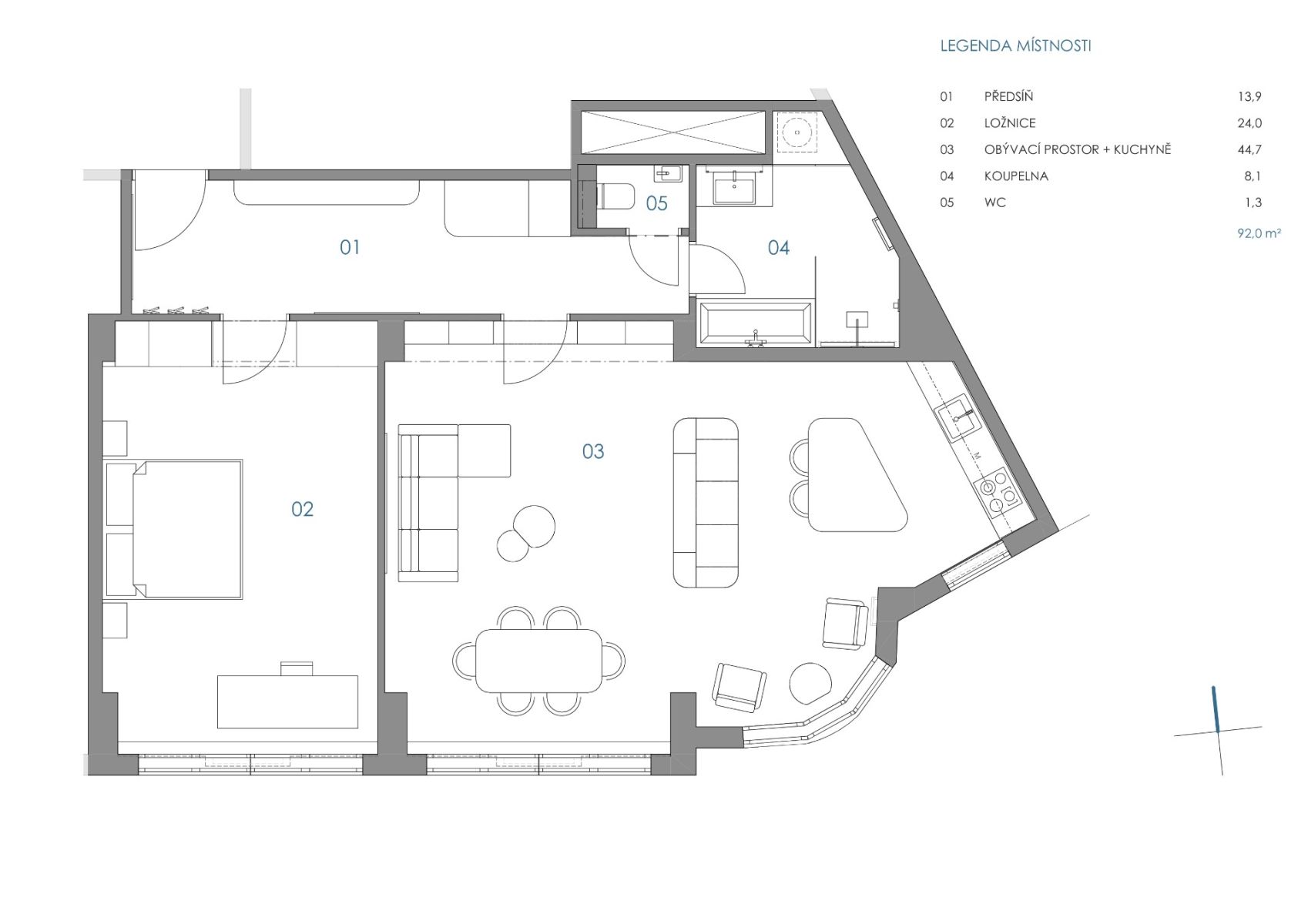
Flat for sale 2+kk • 92 m² without real estateOpatovická, Prague - Nové Město
Nabízíme k prodeji byt 2+kk s výměrou 92m2, který se nalézá ve 3. nadzemním podlaží bytového domu v Opatovické ulici v centru Prahy 1.
Byt je po pečlivé a nákladné rekonstrukci, která zahrnuje:
• Nové omítky stěn i stropů s pečlivým finišem kvalitní výmalbou.
• Kompletně nové rozvody elektriky, včetně rozvaděče a pojistek.
• Nové rozvody vody.
• Nové radiátory topení, včetně termostatických hlavic.
• Dřevěné dubové parkety jsou položeny na nové konstrukci podlah.
• Nové vstupní bezpečnostní dveře včetně zárubně.
• Dílensky zrekonstruovaná okna, doplněná o těsnění a nové zasklení.
• Příprava pro kuchyňskou linku.
• Exklusivní materiály a zařizovací předměty na WC a koupelně, včetně podlahového topení.
• V prostorné koupelně jsou ve vestavěném nábytku připraveny instalace pro pračku a sušičku
Dům postavený ve funkcionalistickém stylu má železobetonovou konstrukci včetně stropů. Je tedy velmi stabilní, podlahy se nehoupou. Byt je nádherně světlý díky velkorysému prosklení.
Vzhledem k rozsahu provedených prací a výběru materiálů je byt je vlastně novostavbou ve funkcionalistickém domě, který se nalézá v samém centru města. Na rekonstrukci denně dohlížel autorizovaný technik.
K dispozici je podrobná projektová dokumentace na veškerý vestavný nábytek, vč. kuchyně.
Po dohodě lze zajistit dokončení interiéru podle připraveného projektu.
V domě je osobní výtah.
Vytápění domu je zajištěno centrální plynovou kotelnou.
V docházkové vzdálenosti několika minut se nalézá vše co nabízí Nové Město Pražské. Nepřeberné množství kulturních a obchodních zařízení, restaurací a kaváren, vzdělávacích institucí od školek po vysoké školy. Přestože se jedná o samotný střed Prahy, turistické trasy tudy nevedou a lokalita je velmi klidná.
K bytu je k dispozici sklepní kóje.
Metro Národní třída 370m
Nespočet tramvajových zastávek 300-450m
Národní Divadlo 350m
Ostrov Žofín 300m
Střelecký ostrov 650m
Kampa 900m
We offer for sale a 2+kk apartment with an area of 92 m², located on the 3rd floor of an apartment building on Opatovická Street in the center of Prague 1.
The apartment has undergone a careful and extensive renovation, which includes:
• New plaster on both walls and ceilings with a meticulous finish using high-quality paint.
• Completely new electrical wiring, including a new distribution board and fuses.
• New water piping.
• New heating radiators, complete with thermostatic valves.
• Wooden oak parquet flooring laid on a new floor structure.
• A new entry security door including its frame.
• Windows restored in a workshop-like manner, enhanced with new seals and glazing.
• Preparations for a kitchen installation.
• Exclusive materials and fixtures in the WC and bathroom, including underfloor heating.
• In the spacious bathroom, the built-in cabinetry is pre-equipped for a washing machine and dryer installation.
The building, constructed in the Functionalist style, features a reinforced concrete structure including the ceilings, ensuring great stability and preventing any floor movement. The apartment is beautifully bright, thanks to its generous glazing.
Due to the extent of the work carried out and the high-quality materials selected, the apartment is essentially a new property in a functionalist building right in the city center. The renovation was supervised daily by an authorized technician. Detailed project documentation is available for all built-in furniture, including the kitchen. Upon agreement, the interior can be completed according to the prepared design.
The building is equipped with a private elevator, and heating is provided by a central gas boiler.
Within just a few minutes’ walking distance, you will find everything that New Town Prague has to offer – a multitude of cultural and commercial facilities, restaurants and cafés, educational institutions ranging from kindergartens to universities. Despite being in the very heart of Prague, tourist routes avoid this area, so the location remains very tranquil.
A cellar locker is also available with the apartment.
Metro Národní třída – 370 m
Numerous tram stops – 300–450 m
National Theatre – 350 m
Žofín Island – 300 m
Shooting Island – 650 m
Kampa – 900 m
Property characteristics
| Available from | 16/04/2026 |
|---|---|
| Building construction | Brick |
| Fully furnished | Partly |
| Listing ID | 1013324 |
| EPC | G - Extremely uneconomical |
| Usable area | 92 m² |
| Condition | After reconstruction |
|---|---|
| Layout | 2+kk |
| Floor | 3. floor out of 6 |
| Ownership | Personal |
| Location | Quiet area |
| Price per unit | CZK 190,108.70 / m2 |
Are you choosing a apartment?
Make sure you have all the important information!
What does this listing have to offer?
| Basement: 4 m² |
What you will find nearby
Still looking for the right one?
Set up a watchdog. You will receive a summary of your customized offers 1 time a day by email. With the Premium profile, you have 5 watchdogs at your fingertips and when something comes up, they notify you immediately.























