
House for sale 4+kk • 117 m² without real estateBremen Vahr Bremen 28329
Bremen Vahr Bremen 28329Public transport 3 minutes of walking • ParkingModern Comfortable Home with Rooftop Terrace – Energy Efficient, Quiet, and Perfect for Families
Welcome to your new home – a stylish and modern townhouse that impresses not only with its high-quality construction but, above all, with a sense of security and quality of life.
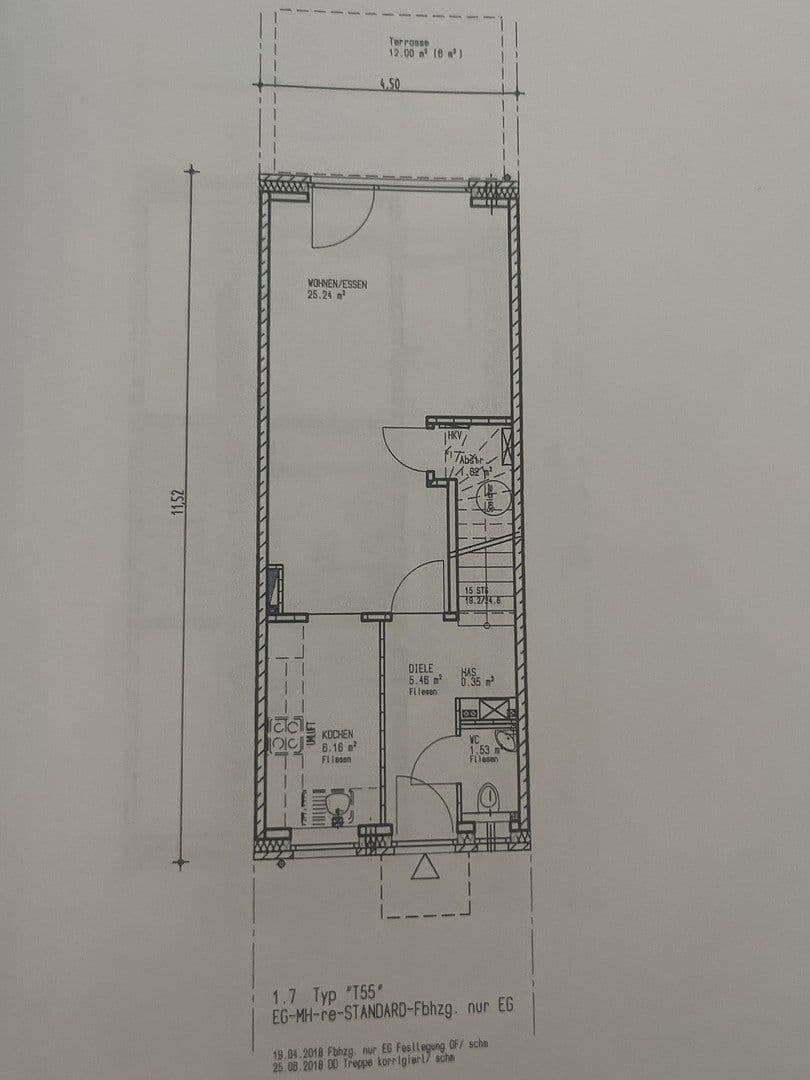
On approximately 120 m² of living space, you’ll find 5 bright rooms, including 3–4 flexibly usable bedrooms – ideal for families, guests, or a home office. Built in 2019, the house meets the KfW-55 standard, which not only gives you peace of mind but also results in noticeably low energy costs.
From the moment you step inside, you can tell that every detail has been considered. A high-quality fitted kitchen, a modern full bathroom, an additional guest WC, and an efficient ventilation system with heat recovery ensure comfort at the highest level.
A true highlight is the exceptional living comfort:
Every room is equipped with a fixed, built-in air conditioning system that enables you to enjoy perfect indoor climate conditions in any season – pleasantly cool in summer and individually adjustable at all times.
The location combines tranquility with excellent connectivity:
In just a few minutes' walk, you can reach kindergartens, schools, shopping opportunities, and public transportation. At the same time, you can enjoy a green, traffic-calmed environment, making it ideal for families. The highway is only a few minutes away – perfect for commuters.
Additional highlights at a glance:
• Energy efficiency class A (only about 42 kWh/m²a)
• District heating – environmentally friendly & future-proof
• Air conditioning in every room (fixed installation)
• Balcony & terrace
• Carport / parking space
• Well-maintained condition – move in immediately and feel at home
• Plot size of approximately 139 m²
This house is more than just a property – it is a place where memories are made.
Property characteristics
| Age | Over 5050 years |
|---|---|
| Layout | 4+kk |
| EPC | A - Extremely economical |
| Land space | 139 m² |
| Price per unit | €3,923.08 / m2 |
| Condition | Good |
|---|---|
| Listing ID | 1013046 |
| Usable area | 117 m² |
| Total floors | 2 |
What does this listing have to offer?
| Parking | |
| Terrace |
| MHD 3 minutes on foot |
What you will find nearby
Still looking for the right one?
Set up a watchdog. You will receive a summary of your customized offers 1 time a day by email. With the Premium profile, you have 5 watchdogs at your fingertips and when something comes up, they notify you immediately.


















