House for sale • 244 m² without real estateDorfstraße, 16 Neuenkirchen Neuenkirchen Mecklenburg-Vorpommern 18569
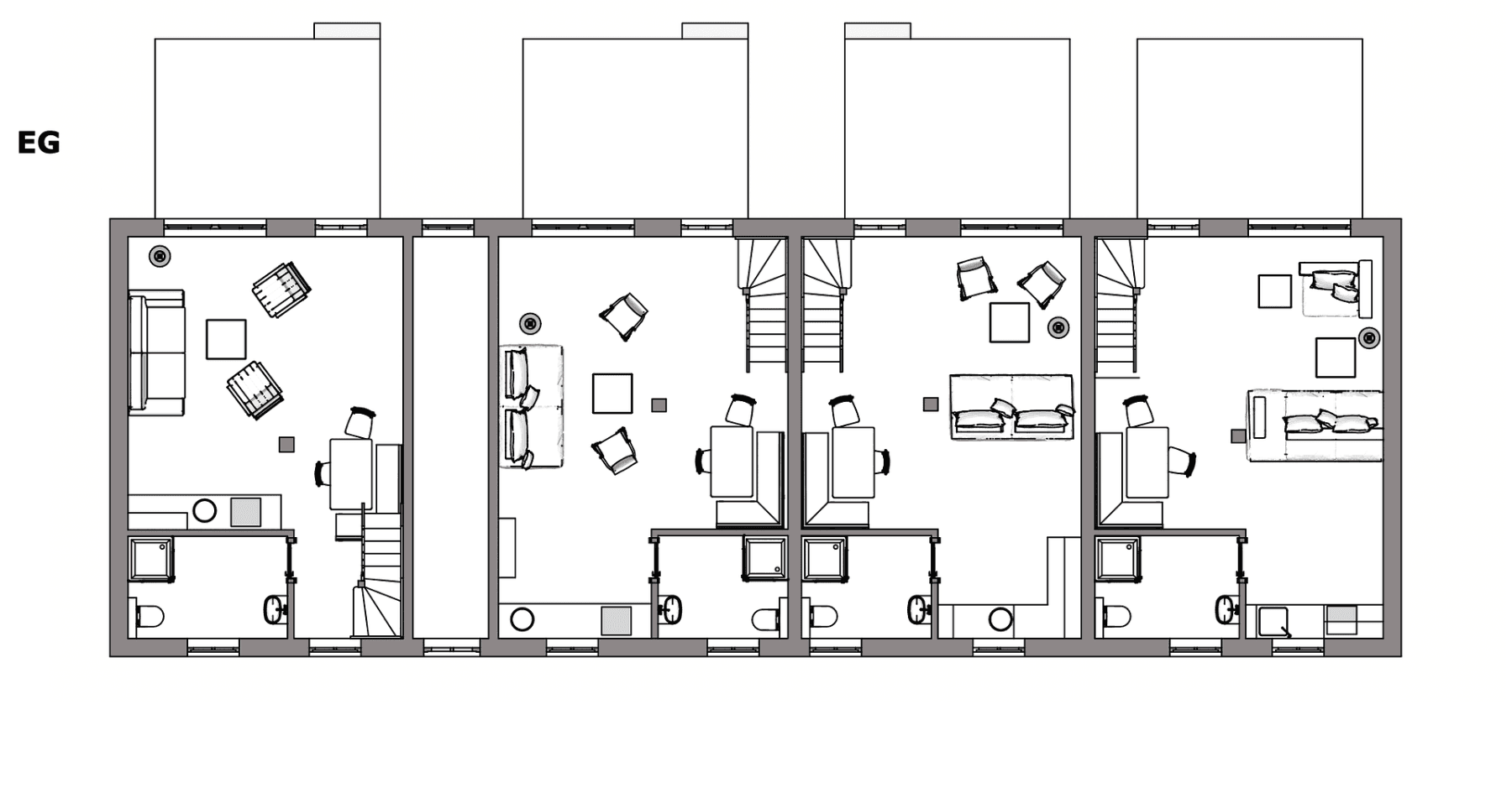
The building complex consists of four row houses that do not have basements. Each residential unit has its own entrance and is schematically similar in layout and equipment: Through a large terrace with an unobstructed view (facing west) over the 1.3-hectare property, you enter the bright, cozy living area, which impresses with its historic beam work—a reminiscence of the old village bakery. On the foundations/walls of that bakery, the new building was constructed in 2002/03, originally conceived as a holiday home.
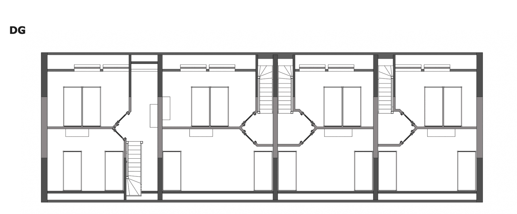
Speaking of the aroma of the oven: The completely and high-quality equipped, open kitchens leave nothing to be desired. Meals are enjoyed in the rustic dining area. On the east side, with large windows, there is a shower room/toilet (shower cabins updated in 2023) in each unit. A wooden staircase leads to the attic, where there are two spacious bedrooms per unit.
A solid garden house of approximately 35 m² currently serves as storage but could also be developed into a fifth holiday unit (connections other than sewage are already in place). Not to mention, the large detached garage with a covered barbecue area offers plenty of space, not only for garden tools, a riding mower, or a workshop.
The label “insider’s tip” for Neuenkirchen and this property in the northwestern, inner-Rügen Bodden landscape may sound a bit clichéd, but for this idyllic corner it is appropriate! Gentle tourism here continues to promise “profitable” relaxation in a lovingly designed and well-developed holiday complex—for the future owners and their guests alike.
The village, with its scattered homesteads, is not a sterile holiday home colony but a little piece of an unspoiled world. Think Bullerbü on Rügen! With a very good inn, a helpful shopkeeper, one of the island's most beautiful village churches, two harbors... all set amidst gentle hills and among protected, labyrinthine lagoons, which we call Bodden.
By arrangement, the entire high-quality furnishing, all equipment, and the proven infrastructure (software, website, service, etc.) can be taken over—ensuring a promising start to the next season. The central heating system consists of a Vaillant gas condensing boiler (liquefied petroleum gas, 2013) with a 200-liter hot water tank. The building already meets energy class D. Broadband internet access has been available in the house since 2023, presently with a 25 Mbit connection with Wi-Fi.
Real estate agents are expressly not wanted. This is a purchase offer from a private seller/operator. To counteract unserious inquiries, we ask for your understanding that only personalized inquiries with a fully verifiable address will be answered. We adhere to the statutory data protection regulations.
Everything else will be provided after you make contact. We will be happy to email you a detailed exposé with current economic figures, to-scale sketches, and of course the exact address. We kindly ask for discretion, and you may, of course, expect the same from us.
Property characteristics
| Age | Over 5050 years |
|---|---|
| Condition | Good |
| EPC | D - Less economical |
| Land space | 13,600 m² |
| Price per unit | €2,807.38 / m2 |
| Available from | 16/04/2026 |
|---|---|
| Listing ID | 1012830 |
| Usable area | 244 m² |
| Total floors | 2 |
What does this listing have to offer?
| Garage | |
| MHD 4 minutes on foot |
| Parking | |
| Terrace |
What you will find nearby
Still looking for the right one?
Set up a watchdog. You will receive a summary of your customized offers 1 time a day by email. With the Premium profile, you have 5 watchdogs at your fingertips and when something comes up, they notify you immediately.
















































