House for sale 3+1 • 98 m² without real estate, Rhineland-Palatinate
, Rhineland-PalatinatePublic transport 3 minutes by car • ParkingThe upscale furnished bungalow was completed and occupied in 2024. The kitchen, equipped with high-quality materials and appliances, as well as the PV system with storage and inverter, are included in the purchase price along with the carport and the equipment shed. The energy supply is extremely optimized through the combined operation of the PV system, storage module, heat pump, and wallbox. The energy costs for heating and hot water are below €1,000 per year. The well-maintained outdoor area, with its natural stone effects and plants, is a real eye-catcher. The large covered terrace becomes the second living room in the summer. Just move in and feel at home!
It is the perfect blend of modern, energy-optimized living comfort and rural village charm, with good neighbors and an active village life featuring regular events for both young and old. The detached bungalow, located in the quiet part of Nastätten with good transport connections to the B 260 (Bäderstraße Wiesbaden – Bad Ems) / B 274 (St. Goarshausen – Limburg) and regular bus service from the local stop, is an ideal retreat on the one hand, while offering a view of the greenery from the home office on the other. Its nature-adjacent location offers opportunities for long walks, bike rides, and other outdoor activities, for example in the extensive hiking area (Wispertrails), along the Rheinsteig, or the Limes.
You do not have to forgo the comforts of a good location either. In Nastätten (an 8-10 minute drive) there are various shopping opportunities including Aldi, Lidl, Edeka, as well as hardware stores, pharmacies, opticians, a hospital, doctors, a primary school and secondary schools, kindergartens, a cinema, and numerous venues. The travel times to attractive locations such as Koblenz, Wiesbaden, Bad Schwalbach, Bad Ems, Limburg, as well as to regional leisure and recreational areas like Loreley/Middle Rhine Valley, Rüdesheim/Rheingau/Bingen, range between 30 and 45 minutes.
Features (see also Miscellaneous)
- Kitchen fitted with high-quality materials and appliances
- Appliances include Siemens oven and dishwasher; a large induction hob with integrated Bora extractor
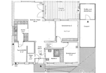
- Open living/dining area
- Daylight bathroom with barrier-free shower in a modern, low-maintenance design
- Continuous flooring of porcelain tiles in wood-look
- Garden shed with power outlet and outdoor lighting – seamless transition from carport to terrace to house
- Attic with potential for conversion
- 4,000-liter rainwater cistern
- Various garden tools
- Some windows additionally shaded from the inside by pleated blinds
- All windows equipped with electric external shutters
- High-quality insect screen on the door to the terrace and on various windows
- App-based integrated energy management system for the PV system with inverter, wallbox, and heat pump
- Manufacturer’s warranty on the basic structure (baseplate, load-bearing exterior and interior walls, ceilings, and roof truss) valid until 2054
Additional notes on the current value assessment/minimum price evaluation:
• Average construction costs per m² for an upscale standard are approximately €3,500 x 98 m² = €343,000
• Land value (bodenrichtwerte-boris.de) for Brunnenstraße, Weidenbach: €65 x 650 m² = €42,250
• Outdoor area/paving: €20,000
The following equipment items, which are generally included in the total price, can be used to reduce the property transfer tax (up to 5% of the purchase price is recognized by the tax office!):
• Kitchen €11,200
• PV system €20,500 (salable as business assets; current value approx. €18,000 plus income value over five years of €2,500)
• Carport/Equipment room €8,000
Property characteristics
| Age | Over 5050 years |
|---|---|
| Layout | 3+1 |
| EPC | A - Extremely economical |
| Land space | 650 m² |
| Condition | Very good |
|---|---|
| Listing ID | 1012719 |
| Usable area | 98 m² |
| Price per unit | €4,571.43 / m2 |
What does this listing have to offer?
| Wheelchair accessible | |
| MHD 3 minutes by car |
| Parking | |
| Terrace |
What you will find nearby
Still looking for the right one?
Set up a watchdog. You will receive a summary of your customized offers 1 time a day by email. With the Premium profile, you have 5 watchdogs at your fingertips and when something comes up, they notify you immediately.

















