
Flat for sale 3+kk • 153 m² without real estateReinbeker Redder 57a Hamburg Lohbrügge Hamburg 21031
Welcome to the “Alte Gärtnerei” Quarter
On Reinbeker Redder Street 55, 55a, 57, 57a in Hamburg, in the Boberg district, the new residential quarter “Alte Gärtnerei” is taking shape, featuring a total of 71 residential units spread across four buildings and an underground garage offering 64 parking spaces.
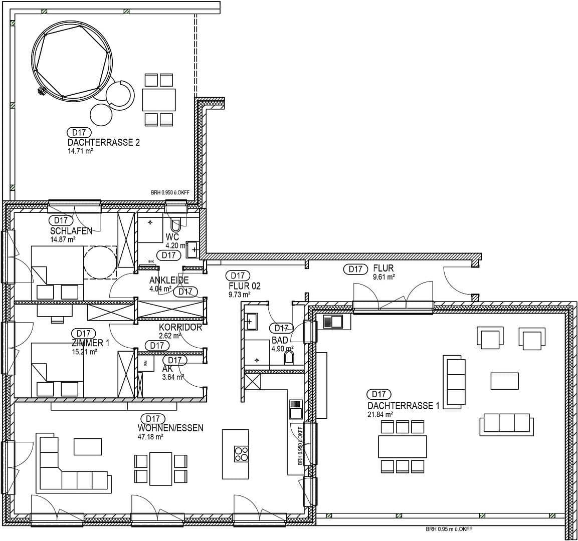
The 3.5-room apartment D17 offered here, located in the “Alte Gärtnerei” residential quarter, is situated on the staggered floor of Building D, which comprises a total of 20 residential units. Apartment D17 impresses with its two spacious roof terraces. The building’s façade has been designed using two different cladding colors. Every detail in the design of the living spaces has been carefully considered to ensure comfortable living.
You first enter the apartment through a light-filled hallway with a view of your south-west facing terrace. Two bathrooms are available for your guests or children. Both bathrooms feature a barrier-free shower and towel radiators, as well as a satin-finished window that ensures plenty of daylight and fresh air.
The orientation of the bedroom toward the quiet residential area guarantees restful nights.
Waking up in the bedroom each morning and gazing out at the 44 m² roof terrace that provides ample privacy will always be something special.
The south-west facing 65 m² main roof terrace offers plenty of possibilities for creating a cozy outdoor meeting space.
This unique roof terrace leaves a lasting impression from the moment you enter the apartment until you linger in the kitchen and living room.
Apartment D17 can be made move-in ready within approximately 14 days if desired.
The sale is commission-free and conducted directly by the developer, and viewings can begin immediately.
Completion of the quarter is scheduled for June 2026.
Nestled between a community allotment garden and single- as well as multi-family houses, the “Alte Gärtnerei” quarter presents itself vividly.
The location at Reinbeker Redder 57a in Hamburg Boberg is as central as it is livable.
Within walking distance, you can explore a charming environment not far from the nearby recreational area Boberger Dünen and the Boberger Ausgleichswiesen.
Located on the border between Hamburg and Schleswig-Holstein, your future tenants will enjoy not only the central location between Hamburg City and Hamburg Bergedorf, but also a high level of leisure and recreational opportunities.
Short distances to nature or leisure activities such as golf, fitness, tennis, or the exclusive Vabali SPA facility give this location a very high recreational value.
Public playgrounds, scenic nature walks, and a locally accessible retail supply complete the “Alte Gärtnerei” location, making it extremely attractive for all generations.
This apartment also includes a storage room of approximately 7.7 m² in the basement.
Features:
- Efficiency house according to the former KfW 55 standard
- Elevator system from the underground garage to the residential floors
- Underfloor heating
- External roller shutters on all windows and terrace doors
- Walls finished with painter’s fleece and a white coating
- Bathrooms: tiled, wall-hung toilet, towel radiators, barrier-free shower unit
- Design vinyl flooring with a wood finish in the living and sleeping areas
- Heat energy supplied via district heating
Additional features will be provided with our construction description.
Special Services:
- Kitchens (self-installation): We are happy to recommend our long-time kitchen fitter.
- Underground garage parking spaces can be purchased additionally from €35,000.
All visualizations, furnishings, furnishing suggestions, graphics, and dimensions are for illustration purposes only and have only an illustrative character—they do not constitute legal basis.
Quick Information:
State: Hamburg, District: Hamburg-Lohbrügge – Boberg area, Quarter: Alte Gärtnerei – 71 residential units, Building: House B – 15 residential units, 1st bicycle storage – 65 parking spaces, 2nd bicycle storage – 113 parking spaces, Underground garage 64 – car parking spaces; Distances: Kindergarten: 1.2 km, Primary school: 1.6 km, Comprehensive school: 2.8 km, Grammar school: 1.7 km, BG Clinic: 1.7 km, Bergedorf Clinic: 3.3 km, University Hamburg Bergedorf: 4.8 km, City Center Bergedorf: 4.5 km, Reinbeker Center: 5.4 km, Hamburg City Center: 14.5 km, Junction A1 Hannover/Lübeck: 3.2 km, Junction A24 Berlin: 8.2 km, Local retail supply: 600 m, Public playground: 450 m.
The client is the project development company Reinbeker Redder 55 mbH.
Realization is carried out by np Projektentwicklung GmbH from Mölln, with over 25 years of experience in multi-family residential construction.
For inquiries regarding this exposé, please contact Mr. Robert Wolff at np Projektentwicklung GmbH from Mölln.
Imprint
Information pursuant to § 5 TMG:
np Projektentwicklung GmbH
Hindenburgstraße 15e
23879 Mölln
Represented by:
Mr. Marcus Pape – Managing Director, np Projektentwicklung GmbH
Contact:
Phone: +49 (0) 4542 99 59 10
Fax: +49 (0) 4542 99 59 199
E-mail: info@np-projektentwicklung.de
Register Entry:
Entry in the Commercial Register.
Register Court: District Court Lübeck
Registration Number: HRB 18431 HL
Property characteristics
| Age | Over 5050 years |
|---|---|
| Layout | 3+kk |
| Listing ID | 1012701 |
| Usable area | 153 m² |
| Condition | New-build |
|---|---|
| Floor | 2. floor out of 3 |
| EPC | B - Very economical |
| Price per unit | €6,176.14 / m2 |
What does this listing have to offer?
| Balcony | |
| Garage | |
| MHD 3 minutes on foot |
| Basement | |
| Lift |
What you will find nearby
Still looking for the right one?
Set up a watchdog. You will receive a summary of your customized offers 1 time a day by email. With the Premium profile, you have 5 watchdogs at your fingertips and when something comes up, they notify you immediately.



























