
Flat for sale 2 bedroom • 50 m² without real estateMannheim Mannheim Baden-Württemberg 68165
The offered 2-room penthouse apartment is located in a well-maintained multi-family house with a good state of upkeep. In 2017, the apartment underwent a comprehensive renovation. Among other things, the water pipes in the kitchen and bathroom were renewed, the electrical system was completely modernized, and the bathroom and kitchen were newly tiled. Corresponding invoices and photographic documentation are available.
The apartment impresses with its excellent location and has therefore always been very rentable. It has been rented to the current tenants since February 2022. The current basic rent is 600 € per month, plus 110 € in additional costs. The service charge amounts to around 229 €. According to the current rent index, a basic rent of about 700 € per month seems realistic.
The building has been continuously maintained and overall presents itself in a very well-kept condition. The property management works reliably and takes diligent care of necessary measures.
The apartment is located in the highly desirable Eastern City area in the immediate vicinity of Friedrichsplatz with its water tower. The location speaks for itself: it offers a central city center with excellent infrastructure and yet quiet, as the apartment is situated in a traffic-calmed side street. In this attractive location, there is always very high tenant demand, which further underscores its long-term rental viability.
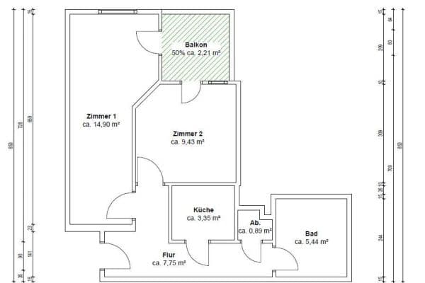
As part of the comprehensive renovation in 2017, the apartment was equipped with a modern fitted kitchen, consisting of an oven, a ceramic hob, and a refrigerator. The apartment is located on the top floor (7th floor), and is therefore a bright, quiet, top-floor dwelling. The elevator runs from the basement up to the 6th floor, and the top floor is easily accessible on foot. In addition, the apartment includes a spacious basement storage room that provides sufficient storage space.
Property characteristics
| Age | Over 5050 years |
|---|---|
| Layout | 2 bedroom |
| EPC | D - Less economical |
| Price per unit | €4,300 / m2 |
| Condition | Good |
|---|---|
| Listing ID | 1012689 |
| Usable area | 50 m² |
What does this listing have to offer?
| Basement | |
| MHD 3 minutes on foot |
| Lift |
What you will find nearby




Flat for saleMina-Karcher-Platz Frankenthal Frankenthal (Pfalz) Rheinland-Pfalz 67227- 3+1
- 86 m²
€227,000 + €550
Still looking for the right one?
Set up a watchdog. You will receive a summary of your customized offers 1 time a day by email. With the Premium profile, you have 5 watchdogs at your fingertips and when something comes up, they notify you immediately.







