Office to rent • 45 m² without real estateGeorg-Huber-Str. 12 Zorneding, Ortsteil Pöring Bayern 85604
Georg-Huber-Str. 12 Zorneding, Ortsteil Pöring Bayern 85604Public transport 4 minutes of walking • ParkingNote: Rental exclusively to commercial tenants with recoverable VAT.
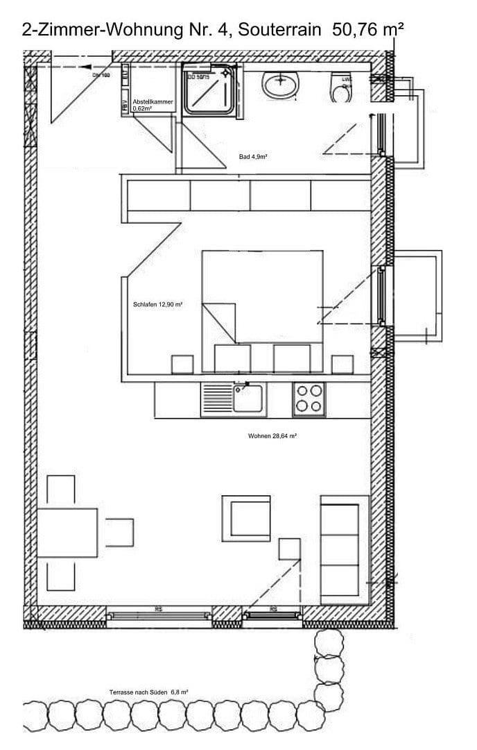
Modern and bright commercial unit located in the basement of a high-quality new building (2022) in Zorneding. The approximately 44.84 m² space is ideal as an office, studio, or practice. Floor-to-ceiling windows on the south side as well as a private south-facing terrace create a pleasant working atmosphere. Occasional overnight stays are also possible.
The building impresses with energy-efficient brick construction (A+), a modern air-source heat pump (no oil/gas), and triple-glazed windows.
Amenities: shower room, fully equipped fitted kitchen, impressive staircase.
Good infrastructure is within walking distance. S-Bahn (S4/S6) about an 8-minute walk, A99 accessible in about 5 minutes.
Costs:
880 € net rent + VAT.
100 € additional costs + VAT.
Mixed-use area on the edge of the Zorneding West commercial district with a very good infrastructure (retail, gastronomy, services). S-Bahn (S4/S6) in 5–8 minutes on foot, A99 reachable in about 5 minutes. Munich city center and the airport are each about 25 minutes away. Recreational opportunities in the immediate vicinity.
Very bright commercial unit with floor-to-ceiling windows and access to the south terrace.
Modern fitted kitchen (including oven, stove, dishwasher, etc.) as well as a bathroom with a window and a walk-in shower.
Further highlights:
• Fiber-optic connection in the building, multimedia outlets available
• Electric sun protection (roller shutters)
• Triple-glazed soundproof windows
• Underfloor heating in all rooms
• Mechanical ventilation with heat recovery
• High-quality vinyl flooring, tiles in the bathroom
• Interior doors in white (silk matte)
No brokers.
Rental available only to commercial tenants with recoverable VAT.
Property characteristics
| Age | Over 5050 years |
|---|---|
| Floor | Floors not specified |
| Land office | 45 m² |
| Condition | Very good |
|---|---|
| Listing ID | 1012660 |
| Price per unit | €19.56 / m2 |
What does this listing have to offer?
| Parking | |
| Terrace |
| MHD 4 minutes on foot |
What you will find nearby
Still looking for the right one?
Set up a watchdog. You will receive a summary of your customized offers 1 time a day by email. With the Premium profile, you have 5 watchdogs at your fingertips and when something comes up, they notify you immediately.






















