House for sale • 217 m² without real estateKatzstraße 23,25, , Rhineland-Palatinate
Katzstraße 23,25, , Rhineland-PalatinatePublic transport 2 minutes of walking • GarageBelow is the English translation of the text marked by the tag:
The offered property is a semi-detached house that particularly impresses with its spacious plot and versatile range of uses. The total area of approximately 4,494 m² is divided between two separate plots, each with its own road access. The building was constructed in 1949 using solid construction methods. In 1967, extensive remodeling and modernization work was carried out, including the renewal of the roof, modernization of the interior, and installation of triple-glazed windows.
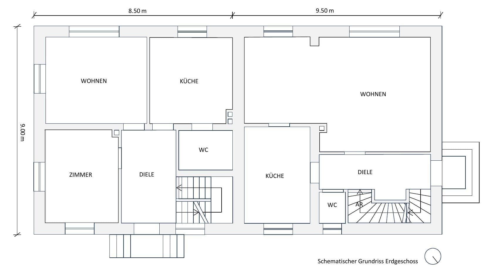
The two-story semi-detached house with its classic gabled roof is oriented east-west and offers a living area of around 217 m², distributed over a total of nine rooms. Each half of the house features a layout that includes an entrance hall, kitchen, WC, bathroom, and living room. Additional rooms complement the overall space—in one half there are three extra rooms and in the other four—providing versatile usage options. The purchase price for the entire property, consisting of the semi-detached house and the plot, is €650,000.
The plot is located in a good area of the city of Speicher, between the center and the outskirts. Situated next to the Protestant church, it impresses with an extremely pleasant and family-friendly environment. The immediate neighborhood is characterized by excellent social infrastructure with a primary school, high school, kindergarten, and a playground. All facilities can be reached safely and conveniently in less than a ten-minute walk without having to cross heavily trafficked roads—a particular advantage for families with children. Medical services are also well provided in the immediate vicinity. Nearby, there is a health center with a physiotherapy practice, a dentist, and other medical facilities. Thus, the location also offers good conditions for senior-friendly housing options.
The plot itself is notable for its generous area and comparatively few restrictions regarding development possibilities. These conditions open up attractive prospects for development of both classic residential buildings and other housing concepts, for example, age-appropriate living. The city center, with its Catholic church, is only about 500 meters away and provides a pleasant local supply with a café and pharmacy. Two supermarkets are located around one kilometer away and are easily accessible, complemented by several restaurants.
The location also impresses from an infrastructural standpoint. A bus stop is reachable within two minutes on foot, ensuring an immediate connection to public transportation. The train station is about 4 kilometers away and can be reached in roughly ten minutes by car. Spangdahlem Air Base is only about 10 kilometers away and represents a significant employer in the region. The next larger town, Bitburg, is reachable within about 20 minutes by car, and the traditional city of Trier—an important economic and employment hub in the region—is about 40 minutes away. The city of Speicher uniquely combines the quality of small-town living with rural charm. The surroundings are characterized by quiet residential areas, a nature-friendly environment, and a well-developed supply structure.
The semi-detached house impresses with its well-maintained features and functional details. The living areas are fitted with a variety of floor coverings, including parquet, tiles, laminate, and linoleum. One half of the house has a well-maintained fitted kitchen complete with fully functional appliances. Both residential units have a guest WC on the ground floor, and the main bathrooms are located on the upper floor. In one unit, the bathroom consists of a shower with a WC, while the other offers a bathroom with a shower and WC. The bathrooms were modernized during the 2010s and present themselves in a contemporary style.
A particular highlight of the property is the outdoor area. The exceptionally large plot offers versatile usage possibilities and ample free space for individual design, complemented by a paved driveway that can also serve as a courtyard or open space. There is a double garage with an electrical connection for vehicles. In terms of technical equipment, a central oil heating system is installed, with its burner having been renewed in 2014. An energy certificate is available. Currently, internet connectivity is provided via a DSL connection, but a fiber optic connection has been applied for and is planned. Additional storage space is available in the partial basement and the attic of the building.
Property characteristics
| Age | Over 5050 years |
|---|---|
| Listing ID | 1012278 |
| Usable area | 217 m² |
| Total floors | 2 |
| Condition | Good |
|---|---|
| EPC | G - Extremely uneconomical |
| Land space | 4,494 m² |
| Price per unit | €2,995.39 / m2 |
What does this listing have to offer?
| Basement | |
| MHD 2 minutes on foot |
| Garage |
What you will find nearby
Still looking for the right one?
Set up a watchdog. You will receive a summary of your customized offers 1 time a day by email. With the Premium profile, you have 5 watchdogs at your fingertips and when something comes up, they notify you immediately.



