House for sale 6+1 • 169 m² without real estateHeinrich-Diehl-Str. 16 Landau in der Pfalz Landau in der Pfalz Rheinland-Pfalz 76829
Heinrich-Diehl-Str. 16 Landau in der Pfalz Landau in der Pfalz Rheinland-Pfalz 76829Public transport 4 minutes of walking • ParkingFor sale is our well-maintained, end-of-terrace house built in 2016 on Heinrich-Diehl-Straße in the popular Landau "Wohnpark am Ebenberg". Over the years, we have continuously upgraded the house and equipped it with high-quality technology (including a PV system and air conditioning).
Property and Communal Areas:
The house sits on a total plot of 2,709 m², which is divided according to the Condominium Act (WEG). The individual plot portion, directly allocated to the house, measures 215.57 m².
• The property includes an exclusive garden area enclosed by a hedge.
• A major advantage of the declaration of division is that the four terraced houses are allowed to make structural changes to their properties without a WEG vote – much like if the plots were actually separated.
• Additionally, there is 500 m² of communal area. Particularly appealing is the communal lawn of over 400 m² located directly behind the private garden, offering plenty of space for children.
• In the front garden, it is possible to build a bicycle shed without major regulatory hurdles. The necessary conduits (water, electricity, network) were already prepared during the installation of the wallbox.
Division of Living and Usable Areas:
The house offers ample space on several levels with a well-thought-out floor plan:
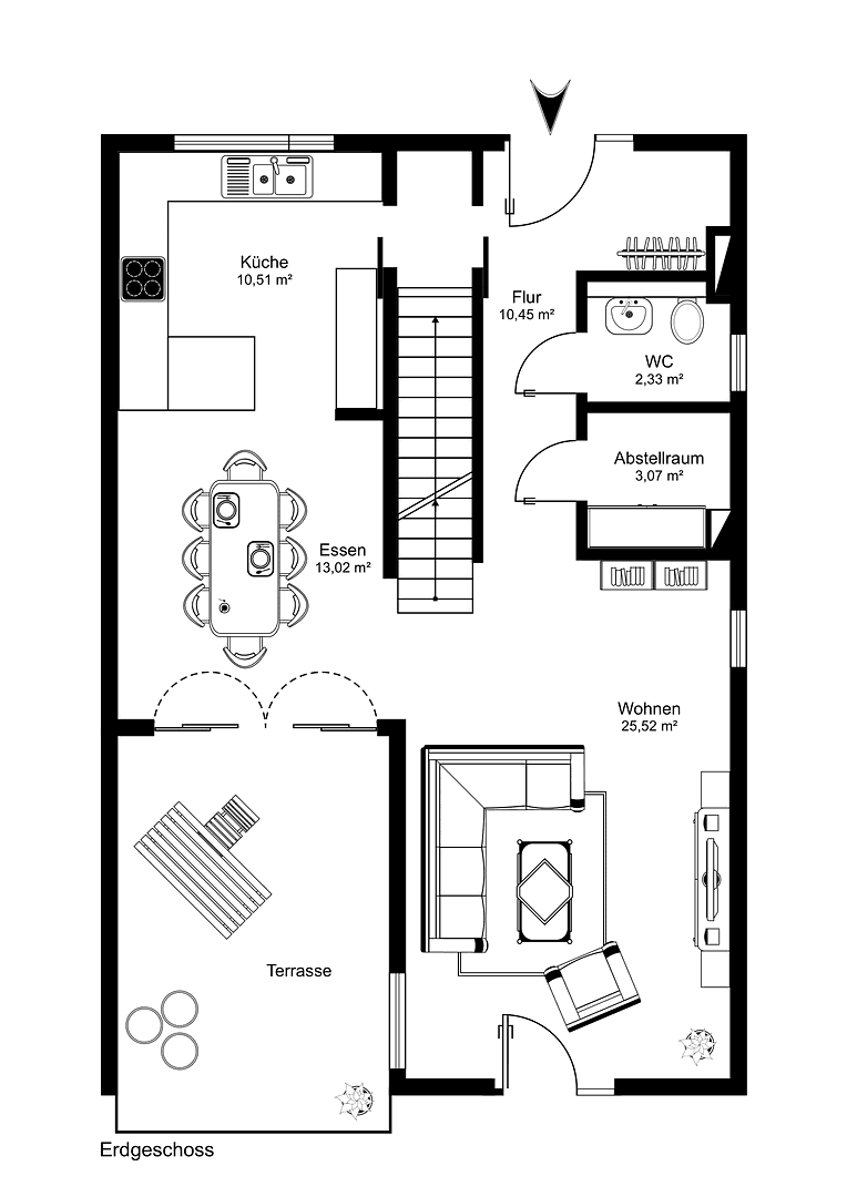
• Ground Floor: The bright living area (approx. 25.5 m²) and dining area (approx. 13 m²) are designed as an open plan that flows into the kitchen (approx. 10.5 m²). A guest WC and a practical storage room complete the ground floor.
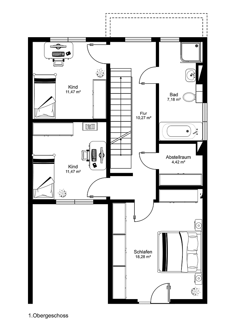
• First Floor: This level features two children’s rooms (each approx. 11.5 m²) and a larger room (approx. 18 m², which can be used, for example, as a bedroom or study). The family bathroom is equipped with both a bathtub and a shower. An additional small storage room provides extra space for toys and other items.
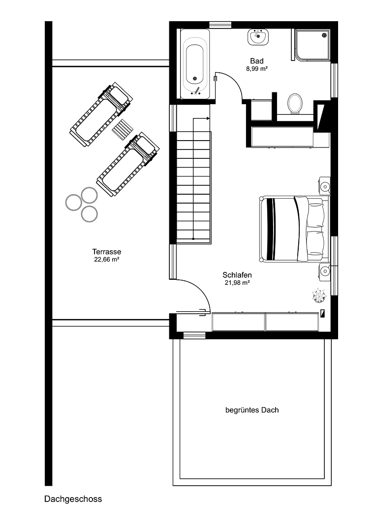
• Attic: The spacious attic studio (approx. 22 m²) with its own bathroom (approx. 9 m², also featuring a bathtub and shower) is ideally suited as a separate parents’ area. From here, you can access the roof terrace (approx. 22.6 m²) with views to both the north and south.
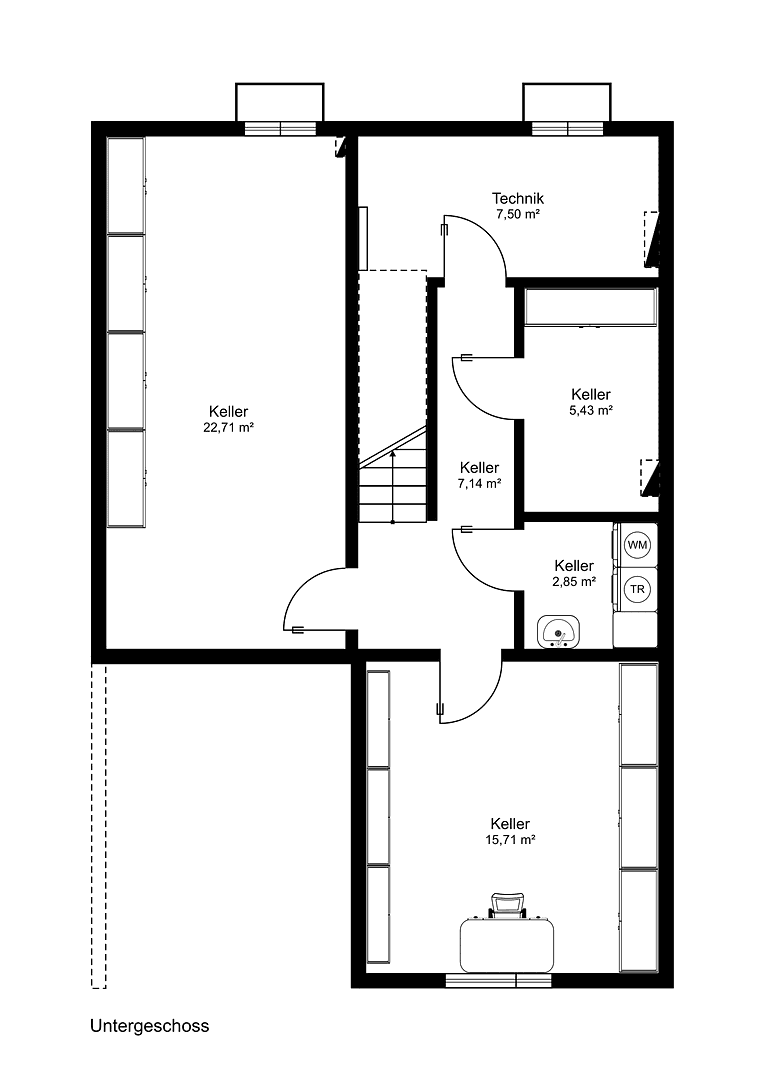
• Basement: The cellar was extensively developed during construction into a living-space-like area. It features two large rooms (approx. 22.7 m² and 15.7 m²) equipped with underfloor heating that are perfect as a home office or hobby room. The 15.7 m² room benefits from a large window that provides plenty of daylight and could easily serve as a fully functional room. There is also a separate technical and laundry room.
Location:
The property is situated right on the site of the former Landesgartenschau in the Südstadt.
• A recreational area is practically at your doorstep.
• Shops for daily necessities (Edeka, bakery), a wine shop, and a daycare center are within walking distance.
• Carsharing options via Stadmobil are available just 50 m away.
• Landau Süd train station can be reached on foot in less than 10 minutes.
• There is excellent transport connectivity to the B10/A65 as well as short distances to the main train station and the Landau center.
Additional Investments – Over €150,000 in Special Features:
Energy & Technology:
• Photovoltaic: System (7.36 kWp, built in 2020) including a 10.2 kWh battery storage system.
• E-mobility: SMA wallbox (built in 2022), suitable for solar-supported charging.
• Air Conditioning: Permanently installed air conditioners (Mitsubishi Electric, built in 2021) in the living room, on the first-floor bedroom, and in the attic studio.
• Ventilation: Central residential ventilation system (Zehnder) with heat recovery.
• Heating: The house is connected to district heating.
Interior Features:
• Flooring: High-quality solid wood parquet (oak country planks) throughout the living area.
• Kitchen: Fitted Nobilia kitchen with Miele appliances and a Berbel extractor hood.
• Custom Solutions: Several custom-made built-in wardrobes crafted by a carpenter in the cloakroom, niches, and tailored bathroom furniture provide optimal storage space.
The purchase price of €845,000 reflects the excellent condition of the property and the extensive investments already made in equipment and technology.
• Available: Immediately
• Sale is commission-free directly from the private owner.
• Please, no broker inquiries.
Property characteristics
| Age | Over 5050 years |
|---|---|
| Condition | Very good |
| Listing ID | 1012276 |
| Usable area | 169 m² |
| Total floors | 4 |
| Available from | 27/04/2026 |
|---|---|
| Layout | 6+1 |
| EPC | B - Very economical |
| Land space | 216 m² |
| Price per unit | €5,000 / m2 |
What does this listing have to offer?
| Basement | |
| MHD 4 minutes on foot |
| Parking | |
| Terrace |
What you will find nearby
Still looking for the right one?
Set up a watchdog. You will receive a summary of your customized offers 1 time a day by email. With the Premium profile, you have 5 watchdogs at your fingertips and when something comes up, they notify you immediately.


































