
Flat to rent 3+1 • 97 m² without real estateTrojanstraße 16, , Lower Saxony
Trojanstraße 16, , Lower SaxonyPublic transport 3 minutes of walkingThe sunlit 3-room apartment with high, airy, vintage ceilings is located in a residential and commercial building in a quiet yet central area. It will be available from 01.05.2026. The property impresses with its well-maintained appearance and harmonious integration into the existing residential neighborhood.
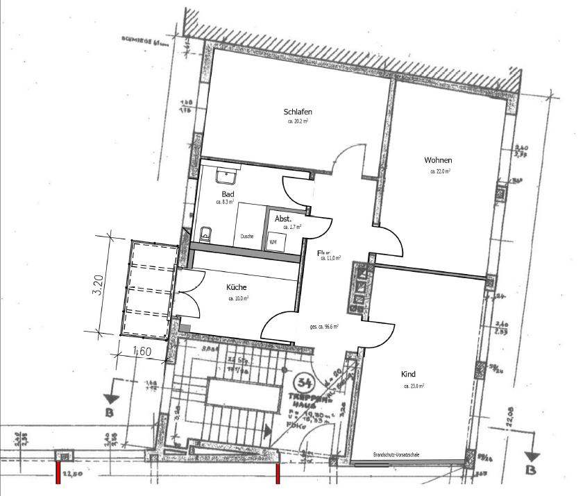
The apartment, situated on the 1st floor, features a well-thought-out layout and modern amenities. Following a recent renovation, all installations and features have been updated to the latest standards, ensuring the apartment is in impeccable condition.
The nearly new fitted kitchen can be taken over for an appropriate fee, making a separate kitchen installation unnecessary. The balcony faces south.
All living spaces have been freshly painted and feature sanded and sealed parquet flooring. The bathroom is equipped with a walk-in shower and new sanitary fixtures. Conveniently, there is a small storage room that uses little space yet proves extremely useful for daily needs.
The apartment is quietly located on a side street, not far from Podbilskistrasse in the List district. The tram stop is within easy walking distance (lines 3, 7, 9), and several shopping options are nearby.
3 rooms
Balcony
Storage room
Kitchen can be taken over
Nearly new bathroom
Parquet flooring
High ceilings
Property characteristics
| Age | Over 5050 years |
|---|---|
| Layout | 3+1 |
| Listing ID | 1012275 |
| Price per unit | €13.51 / m2 |
| Available from | 01/05/2026 |
|---|---|
| Floor | 1. floor |
| Usable area | 97 m² |
What does this listing have to offer?
| Balcony | |
| MHD 3 minutes on foot |
| Basement |
What you will find nearby
Still looking for the right one?
Set up a watchdog. You will receive a summary of your customized offers 1 time a day by email. With the Premium profile, you have 5 watchdogs at your fingertips and when something comes up, they notify you immediately.















