
Flat to rent 2 bedroom • 58 m² without real estateObere Rodstr. 3 Pforzheim Pforzheim Baden-Württemberg 75173
Obere Rodstr. 3 Pforzheim Pforzheim Baden-Württemberg 75173Public transport 1 minute of walkingThis bright and well-proportioned apartment impresses with its pleasant living atmosphere and a thoughtful layout. Two spacious rooms plus a storage room offer diverse usage possibilities and create a comfortable home.
The building was energetically renovated in 2024 with 16 cm external insulation and triple-glazed windows, electric shutters, new wall and floor coverings, as well as a complete renewal of all installations. This ensures manageable ancillary costs. A highlight is the underfloor heating, which provides pleasant warmth during winter.
In addition to the large, cozy living-dining room with its beautiful loft oak vinyl flooring, there is a bright bedroom as well as a storage room for housing the washing machine and dryer. The modern, nearly new kitchen is equipped with practical built-in cabinets and appliances (including an induction cooktop, oven, dishwasher, extractor hood, and a large fridge-freezer combination) and offers ample storage space for daily needs. The kitchen rent adds 80 euros per month to the cold rent. A nice balcony is planned for summer 2026.
The offer is rounded off by a private basement storage room, which provides additional storage space. In the quiet residential area, there are usually ample parking possibilities available.
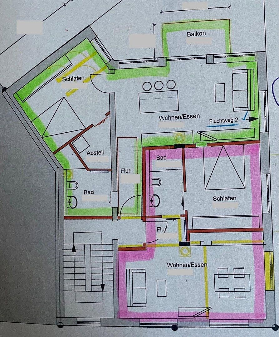
The floor plan is outlined in green on the image.
The eight-family house is ideally located, within walking distance to the city yet on the outskirts near parks and green areas. In addition, a bakery, an ice cream parlor, restaurants and cafés, as well as a supermarket, are all in the immediate vicinity.
- Nearly new oak-effect vinyl flooring
- Underfloor heating
- Electric shutters
- Large bathroom with walk-in shower
- Nearly new fitted kitchen with all electrical appliances
Contact us today to arrange a viewing!
Please provide the number of persons moving in, the reason for your planned move, your occupation and net income, and feel free to tell us a bit about yourself so we can get to know you better as a potential tenant.
Property characteristics
| Age | Over 5050 years |
|---|---|
| Layout | 2 bedroom |
| Listing ID | 1012260 |
| Usable area | 58 m² |
| Condition | Very good |
|---|---|
| Floor | 2. floor out of 2 |
| EPC | B - Very economical |
| Price per unit | €13.62 / m2 |
What does this listing have to offer?
| Balcony | |
| MHD 1 minute on foot |
| Basement |
What you will find nearby
Still looking for the right one?
Set up a watchdog. You will receive a summary of your customized offers 1 time a day by email. With the Premium profile, you have 5 watchdogs at your fingertips and when something comes up, they notify you immediately.










