House for sale • 578 m² without real estateMagdeburg Buckau Sachsen-Anhalt 39104
Magdeburg Buckau Sachsen-Anhalt 39104Public transport 1 minute of walkingBelow is the English translation of the text marked with the tag:
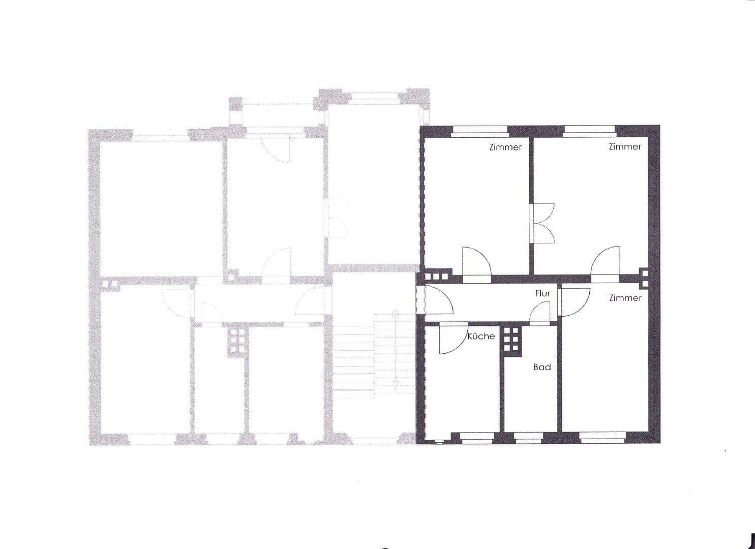
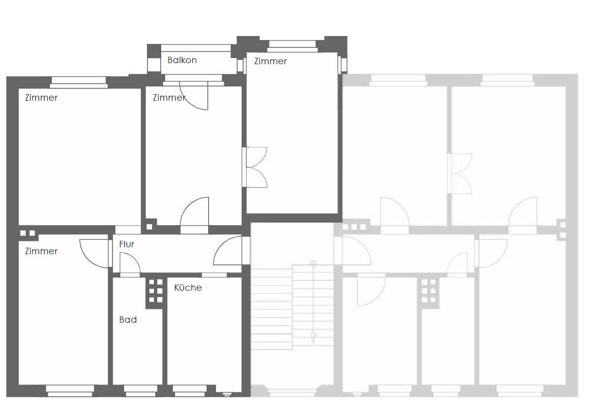
The Schönebecker Str. 2 is a listed building that was constructed in 1893 in the Neo-Renaissance style by the master builder A. Böttcher from Magdeburg. Even at the time of construction, it was a very modern building, as water closets were already available in the apartments. In addition, the girls were allowed to sleep in the “girls’ chamber” behind the kitchen (with its own window) instead of being accommodated on the roof. The floor plans were only slightly altered during the renovation – the girls’ chamber and the WC were combined to create a large bathroom, as is common today. During the renovation, care was taken to ensure that the original character of the building, with its bourgeois charm, was preserved. The platforms were uncovered, as was the stucco work of the entrance hall, and the terrazzo floors in the entrance hall were restored and polished.
Apartments → The apartments are located on the 1st to 3rd floors. The three-room apartments offer approximately 68 m², while the four-room apartments have about 83 m², including a bay window room. All rooms can be accessed from the hallway, and the front house rooms also have original, preserved, and refurbished French doors. Every apartment features a French balcony (in the bedroom), and the larger apartments also have a balcony with views of the Pionierpark or the banks of the Elbe. The wooden floors – original larch planks – have been refurbished and lacquered, and the stucco has been faithfully restored to its original form. All apartments enjoy a green view of the Pionierpark or, at the rear, of the landscaped inner courtyard. The apartments are bright and come equipped with marble bathrooms. The living and sleeping areas on all floors feature a ceiling height of 3.40 m. All windows have been newly made in accordance with monument protection standards and feature sound insulation class IV. The apartment walls have been extensively smoothed over – no more wallpapering! Each apartment is connected to a cost-effective in-house satellite cable system.
Loft → A very modern loft apartment with a total area of 64 m² is located on the raised ground floor. Except for the bedroom (which has two entrances) and the bathroom, there are no doors in the apartment. The apartment is very spacious due to its open floor plan. In addition to the high-quality features – for example, all floors are laid with Brazilian slate and the bathtub has been “lowered” for easier entry – the truly unique layout also includes underfloor heating. The deliberate omission of conventional apartment fittings makes this a “allergy-friendly apartment.” Together with the high-quality windows (sound insulation class IV), the harmonious layout, and the generous ceiling height, it creates an exceptionally light living atmosphere. The park on the opposite side of the street, with its Elbe riverside, perfectly complements the urban recreational appeal!
Shop → The shop itself offers a sales area of about 15 m². Directly behind it is an apartment unit with approximately 48 m². The shop, which can be entered directly from the street, is ideally suited for various functions.
Schönebecker Str. / corner with Porsestrasse,
opposite greenhouses/society house,
a few minutes’ walk to the Elbe, 5 minutes to the city center,
trendy and popular location in Buckau;
magnificent façade, representative entrance hall with stucco and terrazzo, many faithfully restored and refurbished elements;
beautiful, tasteful apartments in a historic building, featuring stucco, original period doors, wooden planks, and marble bathrooms.
Fully let, annual net rent: €60,151, with an annual increase of 2%.
Property characteristics
| Age | Over 5050 years |
|---|---|
| Listing ID | 1012166 |
| Land space | 306 m² |
| Price per unit | €2,508.65 / m2 |
| Condition | After reconstruction |
|---|---|
| Usable area | 578 m² |
| Total floors | 4 |
What does this listing have to offer?
| Balcony | |
| MHD 1 minute on foot |
| Basement |
What you will find nearby
Still looking for the right one?
Set up a watchdog. You will receive a summary of your customized offers 1 time a day by email. With the Premium profile, you have 5 watchdogs at your fingertips and when something comes up, they notify you immediately.

























