
- 3+1
- 85 m²
Save CZK 300,000
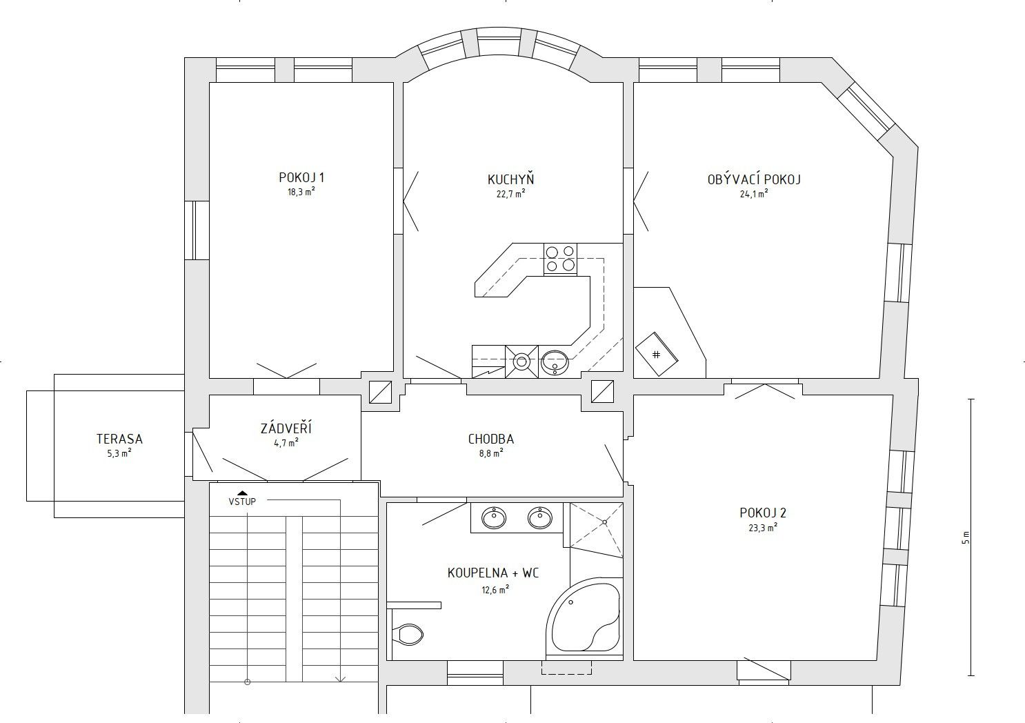
Nabízím k prodeji slunný byt 3+1 s užitnou plochou 116,5 m² v OV. Byt se nachází v 2. NP třípodlažní cihlové budovy se čtyřmi bytovými jednotkami v centru města Jablonec nad Nisou. K bytu dále náleží kryté parkovací stání 22,6 m², zastřešená terasa 5,3 m², dvě kůlny o celkové ploše 9,6 m², dřevník (8 m³) a podíl na společných částech zahrady.
Dispozice bytu dle schématu, podlahové plochy tvoří dřevěné parkety, korek a dlažba.
Vytápění a ohřev TUV je zajištěno vlastním kombinovaným plynovým kotlem, k dispozici jsou také krbová kamna.
V blízkosti veškerá občanská vybavenost (např. mateřská školka 200 m, základní škola 450 m), v místě je dobrá dopravní dostupnost zastávka MHD 150 m, vlaku Liberec – Harrachov 500 m, tramvaje Liberec – Jablonec 650 m, rychlý přístup k rychlostní silnici směr Praha.
Volný okamžitě. V případě zájmu mně neváhejte kontaktovat.
| Available from | 12/04/2026 |
|---|---|
| Building construction | Brick |
| Fully furnished | Partly |
| Listing ID | 1011595 |
| EPC | G - Extremely uneconomical |
| Usable area | 116 m² |
| Condition | Very good |
|---|---|
| Layout | 3+1 |
| Floor | Ground floor |
| Ownership | Personal |
| Location | Centre |
| Price per unit | CZK 53,879.31 / m2 |
Are you choosing a apartment?
Make sure you have all the important information!
| Garage |
| Terrace: 5.3 m² |



Still looking for the right one?
Set up a watchdog. You will receive a summary of your customized offers 1 time a day by email. With the Premium profile, you have 5 watchdogs at your fingertips and when something comes up, they notify you immediately.