Flat to rent 4+1 • 105 m² without real estate, Saarland
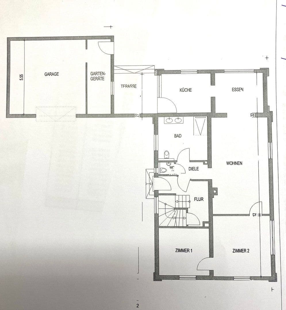
, SaarlandPublic transport 1 minute of walking • Parking • GarageThe former two-family house in an excellent location in Köllerbach was completely modernized and tastefully refurbished in 2022. On the ground floor of the two-party house is the high-quality furnished apartment with an attractive floor plan. This residential unit comes with 2 parking spaces (35.00 € per space) and a single garage (90.00 €). The garage and parking spaces are rented in addition to the cold rent. The light-flooded apartment offers immediate access to the spacious living area as soon as you enter your own hallway. From there, you reach the adjacent dining room with a dreamy view of the garden and a connection to the kitchen, from which you have a splendid view over the entire garden. As a special highlight, the kitchen provides access to its own terrace, from which 2 steps lead into the generous communal garden. The apartment is completed by a pleasant bedroom with an adjoining very spacious dressing room or also a study. Exclusive equipment and materials shape the overall impression of all rooms. In the basement, there is a laundry room as well as storage space. The property includes a large shared garden, which is jointly used and maintained by Apartment 1 and Apartment 2.
- Distant views
- Spacious, elegant bathroom with a daylight window
- Guest WC
- Floors
- Sun terrace
- Electric shutters
- Triple-glazed windows
- Heating
- Water pipes
- Electrical wiring
- Fiber optic provision
- Doors
- Garage (90.00 €)
- 2 outdoor parking spaces (each 35.00 €)
- Intercom system
- Satellite system
- Smoke detector warning system
- NR desired
- No pets
The apartment is conveniently located with respect to the state capital Saarbrücken (approx. 13 km). Saarbrücken can be reached regularly and inexpensively by the Saarbahn from the neighboring town of Riegelsberg. The infrastructure is well-equipped with everything you need, from grocery stores to doctors and pharmacies.
The apartment is not suitable for children, as there is only one through room instead of a dedicated children's room. Please note the layout of the apartment.
A high-quality fitted kitchen, already installed, can be taken over from the previous tenant.
Property characteristics
| Condition | After reconstruction |
|---|---|
| Listing ID | 1011461 |
| Price per unit | €8.95 / m2 |
| Layout | 4+1 |
|---|---|
| Usable area | 105 m² |
What does this listing have to offer?
| Garage | |
| MHD 1 minute on foot |
| Parking | |
| Terrace |
What you will find nearby
Still looking for the right one?
Set up a watchdog. You will receive a summary of your customized offers 1 time a day by email. With the Premium profile, you have 5 watchdogs at your fingertips and when something comes up, they notify you immediately.


























